Hohe Räume · Ausgebautes Dachgeschoss · Eigenes abgeschlossenes Gartenareal · Scheune mit großem Potenzial
Diese charmante Wohnimmobilie innerhalb eines historischen Backstein-Hofensembles ist etwas für Menschen, die bewusst nicht das Gewöhnliche suchen.
Sie befindet sich auf einem traditionsreichen Hof in Evessen, bestehend aus insgesamt sechs Wohneinheiten – massiv gebaut, charakterstark und geprägt von echter Hofatmosphäre.
Schon beim Betreten spürt man den unverwechselbaren Charme:
alte Holzdielen, beeindruckend hohe Räume und ein Eingangsbereich mit echten historischen Pflastersteinen. Solche Details findet man heute kaum noch – sie verleihen dieser Immobilie eine Seele, die kein Neubau imitieren kann.
Dieses Zuhause ist nicht glatt, nicht austauschbar – es ist ein Ort, der Geschichte atmet und Menschen anspricht, die etwas Einzigartiges suchen.
Aufteilung & Räume
Erdgeschoss
Das Erdgeschoss wirkt durch die hohen Decken besonders großzügig und offen:
Eingangsbereich mit historischem Pflastersteinboden
Wohnzimmer
Essbereich
offener Küchenbereich
Obergeschoss
Im ersten Obergeschoss befinden sich zwei Zimmer, flexibel nutzbar als:
Kinderzimmer, Arbeitszimmer,Gästezimmer
Zudem gibt es auf dieser Etage ein praktisches Duschbad, wodurch der gesamte Schlaf-/Wohnbereich funktional sinnvoll ergänzt wird.
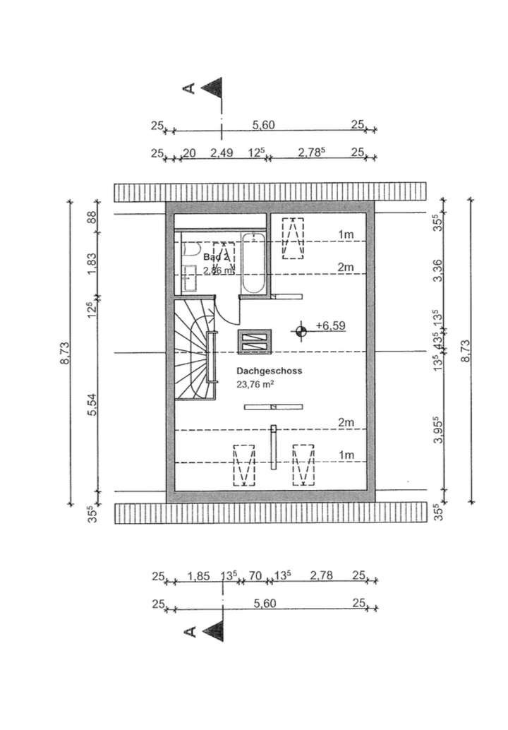
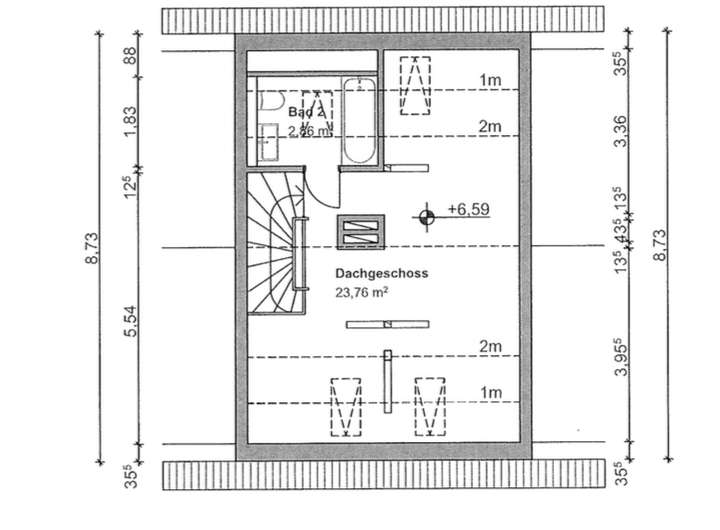
Dachgeschoss – das absolute Highlight
Der ausgebaute Dachboden ist der beeindruckendste Bereich der Immobilie:
hohe, offene Decken
rustikale Balkenkonstruktion
große Dachflächenfenster
lichtdurchflutete Atmosphäre
modernes Badezimmer
Dieser Raum eignet sich perfekt als:
Elternschlafzimmer
Atelier
Rückzugsort
großzügiger Loft-ähnlicher Wohnraum
Hier bekommt man sofort das Gefühl, an einem besonders schönen Ort zu sein.
Keller
Ein kleiner Teilkeller bietet zusätzlichen Stauraum für Vorräte, Geräte oder Werkzeuge.
Außenbereich – das einzigartige, abgeschlossene Gartenareal
Ein absolutes Highlight dieser Immobilie ist das private, vollständig abgeschlossene Gartenareal, das exklusiv zu dieser Wohneinheit gehört.Ein durch ein Tor geschützter Bereich – ruhig, sicher, privat.
Ein Ort, an dem man sich abends aufhalten, entspannen, gärtnern oder die Natur genießen kann.
Perfekt geeignet für:
gemütliche Sommerabende Grillen Gemüseanbau (Tomaten, Beete & kleine Selbstversorgung),Blumen- und Obstpflanzungen,Familienzeit,einen geschützten Rückzugsort
Dieser Garten ist ein echtes Geschenk – ein Bereich, den man in dieser Form extrem selten findet.
Ein eigener, privater Rückzugsort mitten im Hofensemble – einzigartig und genial.
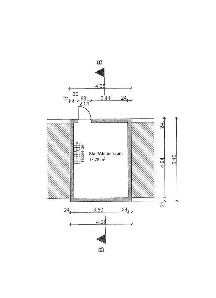
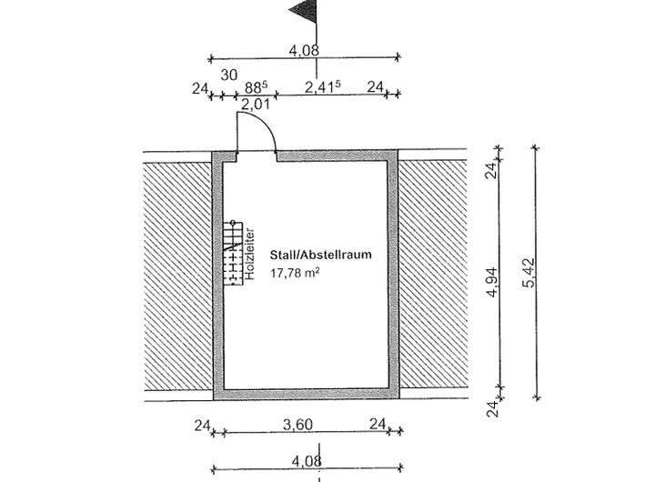
Zusätzliche Scheune – großes Potenzial für individuelle Ideen
Zur Immobilie gehört eine eigene Scheune, bestehend aus Erdgeschoss und nicht ausgebautem Spitzboden.
Sie ist aktuell im ursprünglichen Zustand und bietet dadurch großes Potenzial für:Werkstatt,Hobbyraum,
Atelier,Lager
kreative Projekte
Für Menschen mit Vision:
Ein stilvoller Ausbau – zum Beispiel als Homeoffice oder kleines Studio – ist theoretisch denkbar.
Dies setzt jedoch voraus:
einen Bauantrag
sowie die Genehmigung durch das zuständige Bauamt
Es ist keine Garantie, aber eine realistische Möglichkeit, die diese Immobilie noch vielseitiger macht.
Gestaltung & Potenzial – ein Ort zum Selbstverwirklichen,
Hier geht es nicht darum, einen Neubau zu kaufen.
Hier geht es darum, ein historisches Zuhause mit eigenem Stil, Farben, Ideen und Kreativität wieder richtig schick zu machen.
Mit etwas Geschmack und fleißigen Händen lässt sich dieses Objekt zu einem Highlight verwandeln, das es in dieser Form kein zweites Mal gibt.
Die Substanz ist hervorragend, die Raumhöhe beeindruckend, der Dachbereich ein Traum – und die Kombination aus Wohnfläche, Gartenareal und Scheune ist ein Gesamtpaket, das man heute kaum noch findet.
Seltenes Backstein-Juwel in Evessen – mit Garten, Scheune & ganz viel Potenzial
38173 Evessen
Die vollständige Adresse der Immobilie erhalten Sie vom Anbieter.
Auf Karte anzeigen
Die vollständige Adresse der Immobilie erhalten Sie vom Anbieter.
Finanzierungszertifikat
In nur zwei Minuten zu Ihrem persönlichen Finanzierungszertifkat.
Infos
| Haustyp | Reihenmittelhaus |
|---|---|
| Etagenzahl | 3 |
| Wohnfläche ca. | 110 m2 |
| Nutzfläche | 38,55 m2 |
| Grundstücksfläche | 302 m2 |
| Bezugsfrei ab | nach Vereinbarung, kurzfristig |
| Zimmer | 5 |
| Schlafzimmer | 3 |
| Badezimmer | 2 |
| Garage/Stellplatz | Außenstellplatz |
| Anzahl Garage/Stellplatz | 2 |
Kosten
| Kaufpreis |
195.000 € |
|---|---|
| Provision |
3,57% inkl. MwSt. Für diese Immobilie beträgt die Provision 3,57 % des Kaufpreises inkl. MwSt. für den Käufer sowie 3,57 % des Kaufpreises inkl. MwSt. für den Verkäufer. Die Provision ist verdient und fällig mit Abschluss des notariellen Kaufvertrags. |
Finanzierungsrechner:
Kaufpreis:
600.000 €
Eigenkapital:
600.000 €
Monatliche Rate
0 €
Effektiver Jahreszins
0 %
Sollzinsbindung
10 Jahre
Bausubstanz & Energieausweis
| Baujahr | 1900 |
|---|---|
| Letzte Sanierung | 2005 |
| Objektzustand | Renovierungsbedürftig |
| Qualität der Austattung | Normal |
| Heizungsart | Gas-Heizung |
| Wesentliche Energieträger | Erdgas leicht |
| Energieausweis | liegt vor |
| Energieausweistyp | Bedarfsausweis |
| Energieverbrauchskennwert | 155,9 kWh/(m²*a) |
| Energieeffizienzklasse | E |
155,9
kWh/(m²*a)
Energieeffizienzklasse E
- A+
- A
- B
- C
- D
- E
- F
- G
- H
- 0
- 25
- 50
- 75
- 100
- 125
- 150
- 175
- 200
- 225
- >250
Beschreibung des Objekts
Ausstattung
Dieses charmante Zuhause in Evessen bietet eine solide Grundlage und viel Potenzial für ein modernes, persönlich gestaltetes Wohnambiente. Die vier gut geschnittenen Zimmer lassen sich flexibel nutzen – ideal für Paare, Familien oder Homeoffice. Im Inneren sind Renovierungsarbeiten einzuplanen, insbesondere Malerarbeiten und optische Auffrischungen. Genau das macht die Immobilie attraktiv für alle, die ihr Zuhause nach eigenen Vorstellungen gestalten möchten.
Der sehr schöne Garten ist ein echtes Highlight: ruhig, grün und mit viel Platz zum Entspannen oder für eigene Ideen. Praktische Nebengebäude/Abstellflächen ergänzen das Angebot.
Evessen bietet ein herzliches Dorfleben, eine Kita vor Ort, Schulen in der Nähe sowie eine direkte Busverbindung nach Braunschweig (Linie 730). Einkaufsmöglichkeiten sind im Ort und in Sickte, Cremlingen oder Wolfenbüttel schnell erreichbar.
Ein Haus mit viel Charme und Entwicklungsmöglichkeiten – perfekt für alle, die ein gemütliches Zuhause im Grünen suchen.
Lage
Evessen – ländlich ruhig, überraschend gut angebunden
Evessen liegt idyllisch am Rand des Elm und gehört zu den Dörfern, die sofort ein Gefühl von Ruhe und Geborgenheit vermitteln. Umgeben von Feldern, Wiesen und einer gewachsenen Dorfgemeinschaft findet man hier das, was viele suchen: Natur, Nachbarschaft und ein entschleunigtes Lebensgefühl.
Trotz der ländlichen Lage ist Evessen verkehrstechnisch überraschend stark:
Die Buslinie 730 verbindet den Ort direkt mit Braunschweig – ohne Umsteigen, in rund 30–35 Minuten bis ins Zentrum. Auch Wolfenbüttel ist in etwa 15 Minuten mit dem Auto erreichbar.
Für den täglichen Einkauf bietet Evessen einen Dorfladen mit langer Öffnungszeit. Alles Weitere ist schnell erreicht:
Sickte: ca. 8 Minuten – REWE, Aldi, Bäcker, Apotheke
Cremlingen: ca. 12 Minuten – Lidl, Edeka, weitere Märkte
Wolfenbüttel: ca. 15 Minuten – komplette Innenstadtversorgung
Braunschweig: ca. 20–25 Minuten – große Einkaufszentren, Kultur, Ärzte, Schulen
Familien freuen sich über die eigene Kita im Ort, während Grundschule und Oberschule im nahen Sickte liegen – bequem per Bus erreichbar.
Evessen lebt von seinem aktiven Miteinander: Sportvereine, Feuerwehr, Feste und gemeinsame Projekte sorgen dafür, dass man hier schnell Anschluss findet. Spaziergänge im Elm, kurze Wege und die freundliche Atmosphäre machen den Ort besonders attraktiv für alle, die ländlich wohnen möchten, ohne auf Komfort und gute Erreichbarkeit zu verzichten.
Evessen – ein ruhiges, herzliches Dorf mit echter Nähe zur Stadt. Ideal für Familien, Pendler und alle, die Natur und Gemeinschaft schätzen.
Sonstige Angaben
Provision:
Der Käufer und der Verkäufer zahlen jeweils 3,57 % des Kaufpreises inkl. MwSt.
Die Provision ist sofort nach der notariellen Beurkundung fällig und zahlbar.
TK IMMOBILIEN – Thorsten Kühne hat mit dem Verkäufer einen Maklervertrag in gleicher Höhe abgeschlossen (zulässige Doppeltätigkeit gemäß § 656c BGB).
Angaben & Haftung:
Alle Objektangaben, Pläne, Maße und Flächen stammen vom Eigentümer.
TK IMMOBILIEN übernimmt keine Haftung für deren Richtigkeit, Vollständigkeit oder Aktualität.
Irrtum und Zwischenverkauf bleiben vorbehalten.
Energieausweis:
Ein gültiger Energieausweis liegt vor und wird bei der Besichtigung eingesehen.
Noch eine Immobilie zu verkaufen?
Gerne unterstützen wir Sie professionell beim Verkauf Ihres eigenen Objekts.
Wir freuen uns auf Ihre Nachricht und stehen Ihnen jederzeit für ein persönliches Gespräch zur Verfügung.
Grundriss
Erdgeschoß
>
>
Obergeschoß
>
>
Dachgeschoß
>
>
Schnitt
>
>
EG Scheunelaechen
>
>
DG Scheune
>
>
Schnitt Scheune
>
>
Adresse
38173 Evessen
Interessante Orte
Preis- und Lageinformationen
Preistrend für Bestandsimmobilien in Evessen