Objektnr: 1062274
Erleben Sie die Verwirklichung Ihrer Wohnträume in dieser exquisiten Doppelhaushälfte, die keine Ansprüche unerfüllt lässt. In einer der begehrtesten Adressen der Stadt erwartet Sie dieses herausragende Neubauprojekt in Lemsahl-Mellingstedt, welches all das verkörpert, was ein perfektes Familienheim ausmacht. In ruhiger Stadtrandlage genießen Sie hier eine harmonische Verbindung zwischen entspanntem Wohnen und der unmittelbaren Nähe zu allen wesentlichen Einkaufs- und Versorgungsmöglichkeiten.
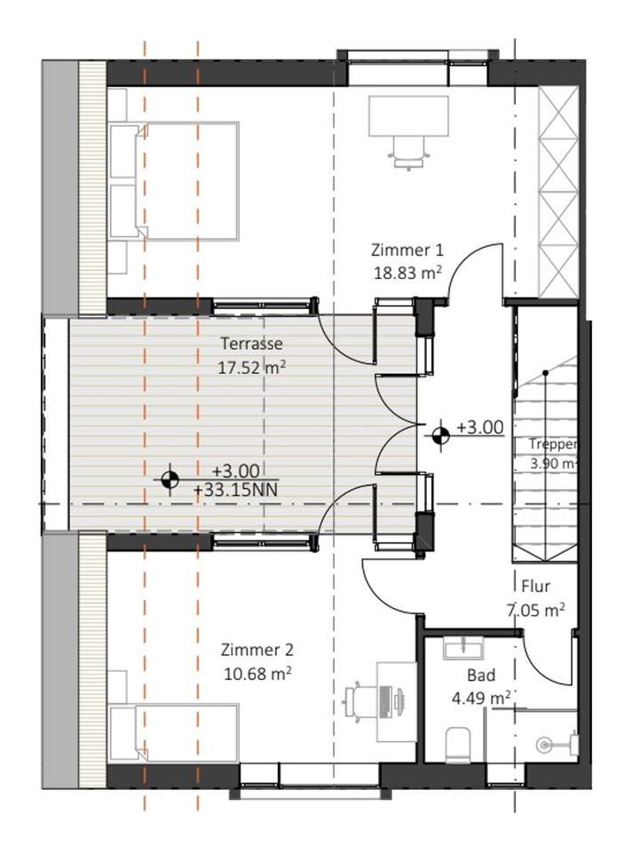
Das geplante Bauvorhaben besticht durch eine hochmoderne Bauweise und eine nachhaltige Fernwärmeheizung, welche höchste Energieeffizienz und einen klimapositiven Wohnkomfort gewährleistet. Die Wohnfläche von etwa 131 m² verteilt sich auf vier lichtdurchflutete Zimmer, darunter zwei behagliche Schlafzimmer, die sowohl Paaren als auch kleineren Familien großzügigen Raum bieten. Zwei elegante Badezimmer mit Dusche runden das Raumkonzept auf vollendete Weise ab.
Während der edle Holzparkettboden in Kombination mit einer wohligen Fußbodenheizung höchsten Komfort bietet, tragen zahlreiche durchdachte Details zu einem unvergleichlichen Wohngefühl bei. Das etwa 349 m² große Grundstück mit einer Südterrasse, einer nach Westen ausgerichteten Dachterrasse und einem Garten lädt Sie ins Freie ein.
Hinweis: Im Kaufpreis sind nicht enthalten die Anschlusskosten (Strom, Wasser), Garten, Küche und Ersatzzahlung für Bäume.
Exklusive NEUBAU-Doppelhaushälfte/KfW-40-Standard + Dachterrasse in Lemsahl-Mellingstedt 2025
22397 Hamburg
Die vollständige Adresse der Immobilie erhalten Sie vom Anbieter.
Auf Karte anzeigen
Die vollständige Adresse der Immobilie erhalten Sie vom Anbieter.
Finanzierungszertifikat
In nur zwei Minuten zu Ihrem persönlichen Finanzierungszertifkat.
Infos
| Haustyp | Doppelhaushaelfte |
|---|---|
| Etagenzahl | 2 |
| Wohnfläche ca. | 131 m2 |
| Grundstücksfläche | 349,1 m2 |
| Bezugsfrei ab | nach Absprache |
| Zimmer | 4 |
| Schlafzimmer | 2 |
| Badezimmer | 1 |
Kosten
| Kaufpreis |
699.000 € |
|---|---|
| Provision | Nein |
Finanzierungsrechner:
Kaufpreis:
600.000 €
Eigenkapital:
600.000 €
Monatliche Rate
0 €
Effektiver Jahreszins
0 %
Sollzinsbindung
10 Jahre
Bausubstanz & Energieausweis
| Baujahr | 2025 |
|---|---|
| Objektzustand | Erstbezug |
Beschreibung des Objekts
Ausstattung
+ Neubauprojekt nach neuesten Energieeffizienzanforderungen (KfW40, Wärmepumpe)
+ Die offene Grundrissgestaltung sorgt für viel Licht und eine tolle Atmosphäre
+ Familienfreundlicher Garten im Grünen sowie 2 Terrassen in Süd- bzw. West-Ausrichtung
+ Hochwertige Ausstattung des Hauses umfasst 2 Bäder, bodentiefe Fenster, einen Holzparkettboden, eine Fußbodenheizung und Platz für ihren PkW
+ KfW-Darlehen möglich
Lage
Lage: Zentral in den idyllischen Walddörfern
Bildung und Betreuung: Kindergarten und Schule in max. 800 m Entfernung
Nahversorgung: Supermarkt, Apotheke und Postfiliale in weniger als ca.5 Gehminuten erreichbar
Anbindung: ÖPNV, Autobahn, Fernstraßen in unmittelbarer Umgebung, sowie direkte Anbindung in die Hamburger City
Sonstige Angaben
Vereinbaren Sie noch heute einen Besichtigungstermin!
_____________________________________________________
Alle Angaben sind ohne Gewähr und basieren ausschließlich auf Informationen, die uns von unserem Auftraggeber zur Verfügung gestellt wurden. Wir übernehmen keine Gewähr für die Vollständigkeit, Richtigkeit und Aktualität der Angaben.
Grundriss
Grundriss Skkzze EG
>
>
Grundriss Skizze OG
>
>
Adresse
22397 Hamburg
Interessante Orte
Preis- und Lageinformationen
Preistrend für Bestandsimmobilien in Lemsahl-Mellingstedt