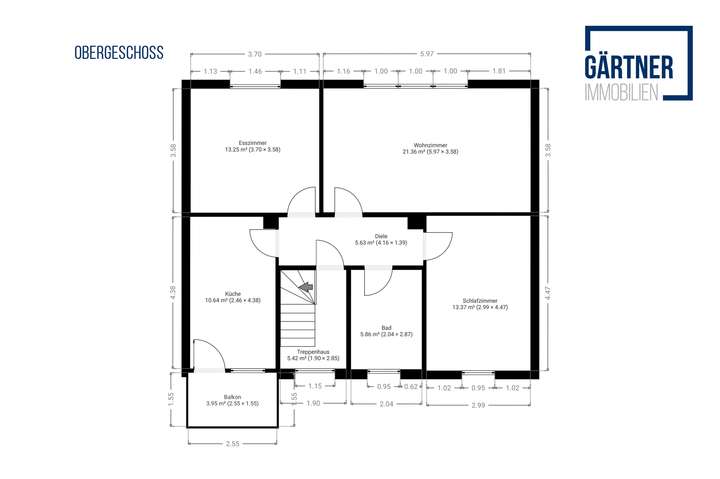
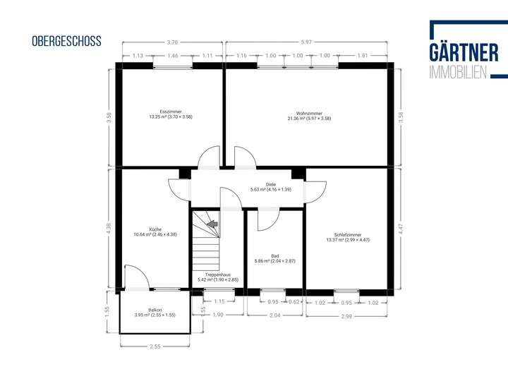
Dieses gepflegte und vollständig vermietete Dreiparteienhaus mit einer Wohnfläche von ca. 176 m² und einem Grundstück von ca. 322 m² befindet sich ruhiger und beliebter Wohnlage von Maintal-Dörnigheim. Im Erdgeschoss des Hauses erwarten Sie eine gemütliche 3-Zimmer-Wohnung mit ca. 47 m², eine separate Küche, ein Balkon und ein Tageslichtbad, das über das Treppenhaus zu erreichen ist. Im Obergeschoss befindet sich eine schöne 3-Zimmer-Wohnung mit ca. 72 m², eine separate Küche, ein Balkon und ein Tageslichtbad mit Dusche. Die Wohnung im Dachgeschoss verfügt auf einer Wohnfläche von ca. 57 m² ebenfalls über drei Zimmer, eine separate Küche und ein Tageslichtbad mit Dusche. Das Haus ist Teil unterkellert. Hier stehen den Mietern kleine Abstellräume zur Verfügung. Als PKW Unterstellmöglichkeiten stehen zwei Einzelgaragen mit einem Anbau sowie ein überdachter Freisitz zur Verfügung.
Maintal-Dörnigheim: Gepflegtes, voll vermietetes Dreiparteienhaus in ruhiger und beliebter Mainnähe
63477 Maintal
Die vollständige Adresse der Immobilie erhalten Sie vom Anbieter.
Auf Karte anzeigen
Die vollständige Adresse der Immobilie erhalten Sie vom Anbieter.
Finanzierungszertifikat
In nur zwei Minuten zu Ihrem persönlichen Finanzierungszertifkat.
Infos
| Haustyp | Mehrfamilienhaus |
|---|---|
| Etagenzahl | 2 |
| Wohnfläche ca. | 176 m2 |
| Grundstücksfläche | 322 m2 |
| Bezugsfrei ab | Nach Absprache |
| Zimmer | 9 |
| Anzahl Garage/Stellplatz | 3 |
Kosten
| Kaufpreis |
398.000 € |
|---|---|
| Provision |
3,57 % |
| Mieteinnahmen | 1.456 € |
Finanzierungsrechner:
Kaufpreis:
600.000 €
Eigenkapital:
600.000 €
Monatliche Rate
0 €
Effektiver Jahreszins
0 %
Sollzinsbindung
10 Jahre
Bausubstanz & Energieausweis
| Baujahr | 1933 |
|---|---|
| Objektzustand | Gepflegt |
| Heizungsart | Zentralheizung |
| Wesentliche Energieträger | Gas |
| Energieausweis | liegt vor |
| Energieausweistyp | Bedarfsausweis |
| Energieverbrauchskennwert | 308,3 kWh/(m²*a) |
| Energieeffizienzklasse | H |
308,3
kWh/(m²*a)
Energieeffizienzklasse H
- A+
- A
- B
- C
- D
- E
- F
- G
- H
- 0
- 25
- 50
- 75
- 100
- 125
- 150
- 175
- 200
- 225
- >250
Beschreibung des Objekts
Ausstattung
- Gepflegtes Dreiparteienhaus
- Vollständig vermietet
- Monatliche Mieteinnahmen gesamt: Euro 1.456,-
- Balkone im Erd- und Obergeschoss
- Hell geflieste Tageslichtbäder mit Dusche
- Kunststoff-Fenster mit Isolierverglasung
- Gas-Zentralheizung (Erneuerung empfohlen)
- Dachaufstockung (Baujahr 1965)
- Teil unterkellert
- Zwei PKW-Einzelgaragen mit Anbau und Freisitz
- Ruhige und beliebte Wohnlage
Lage
Das Objekt befindet sich in ruhiger und beliebter Wohnlage von Maintal-Dörnigheim, nur wenige Meter vom Main entfernt.
- Bahn-Anbindung direkt nach Frankfurt nur wenige Minuten entfernt
- Beliebter Standort östlich von Frankfurt mit guter Anbindung an die A66 / A45 / A3
- Vielfältige Einkaufsmöglichkeiten in unmittelbare Nähe zu dem Objekt
- Kindergärten / Tagesstätten, Schulen in wenigen Minuten erreichbar
- Freibad und Hallenbad sowie große Spielplätze und Vereinssport
- Sehr gute Gastronomie mit Bars und Restaurants
Sonstige Angaben
Für nähere Informationen oder einen Besichtigungstermin stehen wir Ihnen gerne jederzeit zur Verfügung.
Grundriss
Erdgeschoss
>
>
Obergeschoss
>
>
Dachgeschoss
>
>
Adresse
63477 Maintal
Interessante Orte
Preis- und Lageinformationen
Preistrend für Bestandsimmobilien in Maintal