Willkommen in diesem charmanten Einfamilienhaus, das sich über drei Wohnetagen erstreckt und mit viel Raum, Liebe zum Detail und einer guten Portion Ausbaureserve überzeugt.
Im Erdgeschoss erwartet Sie eine großzügige Wohnküche – der perfekte Ort für gemeinsames Kochen, gute Gespräche und spontane Feste. Ein zusätzliches Zimmer sowie ein Badezimmer und ein Gäste-WC runden diesen Bereich ab und sorgen dafür, dass es nie zu eng wird.
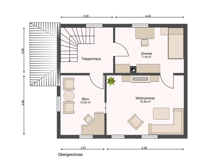
Im Obergeschoss trifft Gemütlichkeit auf Funktionalität: Ein einladendes Wohnzimmer mit Kachelofen sorgt für wohlige Wärme an kalten Tagen, während der nahtlose Übergang in ein weiteres Zimmer für mehr Platz sorgt. Ein zusätzliches Büro auf dieser Etage rundet das Raumangebot ab.
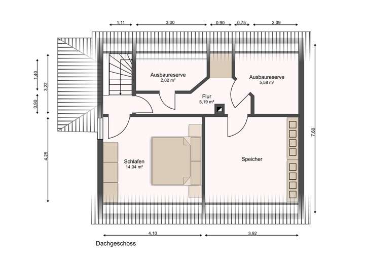
Das Dachgeschoss bietet aktuell ein Zimmer, aber vor allem: jede Menge Potential! Die übrige Fläche eignet sich hervorragend als Ausbaureserve, zumal die Rohinstallation für Küche und Badezimmer bereits vorhanden sind – ob als separater Rückzugsort für Teenagerträume, Gästezimmer oder Hobbybereich, hier können Sie Ihre Ideen frei entfalten.
Praktisch geht es im Kellergeschoss weiter, wo sich ausreichend Abstellmöglichkeiten befinden – perfekt für alles, was nicht täglich gebraucht wird, aber trotzdem seinen Platz haben soll.
Auch von außen zeigt das Haus Charakter: Die Fassade mit Holz- und Schieferverkleidung verleiht dem Gebäude eine warme, natürliche Ausstrahlung. Der kleine, zur Straße hin abgegrenzte Hof, lädt zum Verweilen im Freien ein. Und wer mehr Platz zum Genießen sucht, findet ihn auf der Dachterrasse über der großen Doppelgarage/ Werkstatt – ein echtes Highlight mit Blick über die Nachbarschaft.
Dieses Wohnhaus ist kein Neubau von der Stange – es ist ein Zuhause mit Geschichte, Seele und vielen Möglichkeiten. Wer Charme, Individualität und Raum für eigene Ideen sucht, wird sich hier schnell zuhause fühlen.
*** Charme, Wärme und jede Menge Möglichkeiten***
56348 Weisel
Die vollständige Adresse der Immobilie erhalten Sie vom Anbieter.
Auf Karte anzeigen
Die vollständige Adresse der Immobilie erhalten Sie vom Anbieter.
Finanzierungszertifikat
In nur zwei Minuten zu Ihrem persönlichen Finanzierungszertifkat.
Infos
| Haustyp | Einfamilienhaus |
|---|---|
| Wohnfläche ca. | 101 m2 |
| Nutzfläche | 61 m2 |
| Grundstücksfläche | 264 m2 |
| Zimmer | 6 |
| Badezimmer | 1 |
Kosten
| Kaufpreis |
165.000 € |
|---|---|
| Provision |
7.140,00 Euro inkl. MwSt.
Käuferprovision |
Finanzierungsrechner:
Kaufpreis:
600.000 €
Eigenkapital:
600.000 €
Monatliche Rate
0 €
Effektiver Jahreszins
0 %
Sollzinsbindung
10 Jahre
Bausubstanz & Energieausweis
| Baujahr | 1862 |
|---|---|
| Heizungsart | Zentralheizung |
| Wesentliche Energieträger | Gas |
| Energieausweis | liegt vor |
| Energieausweistyp | Bedarfsausweis |
| Energieverbrauchskennwert | 231,0 kWh/(m²*a) |
Beschreibung des Objekts
Ausstattung
-Holzfenster 2-fach verglast
-Gasheizung aus 2012, Firma Buderus
-Therme mit Solar (2 Stück)
-Kaminofen im Wohnzimmer
-Doppelgarage mit Dachterrasse und Starkstromanschluss
Lage
Das Wohnhaus befindet sich in Ortsrandlage von Weisel.
Weisel, mit rund 1.000 Einwohnern, liegt in ca. 400 m Höhe auf der Rheinhöhe, in unmittelbarer Nähe des weltberühmten Loreleyfelsens und des Rheinsteigs. Die Gemeinde ist somit der optimale Startpunkt für eine Wanderung durch die Weinberge des Mittelrheintals oder eine Schifffahrt auf dem Rhein.
Gastronomie, Arzt, Tierarzt und eine Bankfiliale sind angesiedelt.
Mehrere Handwerksbetriebe haben ihren Sitz in Weisel.
Der Kindergarten ist direkt vor Ort, die Grundschule, Realschule und ein Gymnasium sind
in St. Goarshausen bzw. im Ortsteil St. Goarshausen-Heide sowie in Nastätten zu finden.
Vielfältige Einkaufsmöglichkeiten, Ärzte und Krankenhaus bietet in ca. 12 km Entfernung das Mittelzentrum Stadt Nastätten.
Sonstige Angaben
Gefällt Ihnen unser Angebot? Dann zögern Sie nicht und melden sich bei uns.
Wir zeigen Ihnen das Anwesen in einem gemeinsamen Termin vor Ort und begleiten Sie bei den folgenden Schritten zum Kauf Ihres eigenen Zuhauses.
Sie haben Fragen zur Finanzierung oder suchen einen Finanzierungspartner? Auch hier stehen wir Ihnen gerne zur Seite.
Oder haben Sie gleichzeitig eine Immobilie zum Verkauf? Wir kümmern uns darum!
Wir haben dieses Exposé mit Sorgfalt und nach bestem Wissen erstellt. Das Angebot erfolgt freibleibend, alle Angaben beruhen auf uns erteilten Informationen von Dritten.
Zwischenverkauf und Irrtum bleiben vorbehalten.
Wir weisen darauf hin, dass vorhandene Grundrisse nicht maßstabsgetreu sind, Maße, Angaben und Details abweichen können. Für die Richtigkeit, Vollständigkeit und Aktualität der Angaben können wir keine Gewähr übernehmen, auch nicht für mögliche Folgenutzungen der Immobilie.
Die Funktionsfähigkeit der technischen Anlagen haben wir bestmöglich erfragt, können jedoch im Einzelfall hierfür keine Gewähr übernehmen.
Selbstverständlich erhalten Sie bei näherem Interesse die Möglichkeit, das Haus durch Experten Ihrer Wahl ausführlich prüfen und begutachten zu lassen. Für die Klärung Ihrer offenen Fragen stehen wir Ihnen gerne zur Verfügung.
Doch nicht die richtige Immobilie? Dann schauen Sie sich unser weiteres Angebot an: www.zimmermann-immobilien.eu
Grundriss
45105_752972_1983382_132-1157_
>
>
45105_752972_1983383_132-1157_
>
>
45105_752972_1983384_132-1157_
>
>
45105_752972_1983385_132-1157_
>
>
Adresse
56348 Weisel
Interessante Orte
Preis- und Lageinformationen
Preistrend für Bestandsimmobilien in Weisel