Dieser gepflegte Bungalow befindet sich in einer bevorzugten und ruhigen Wohnlage von Usingen. Zum Haus gehören eine praktische Einzelgarage sowie ein zusätzlicher Außenstellplatz.
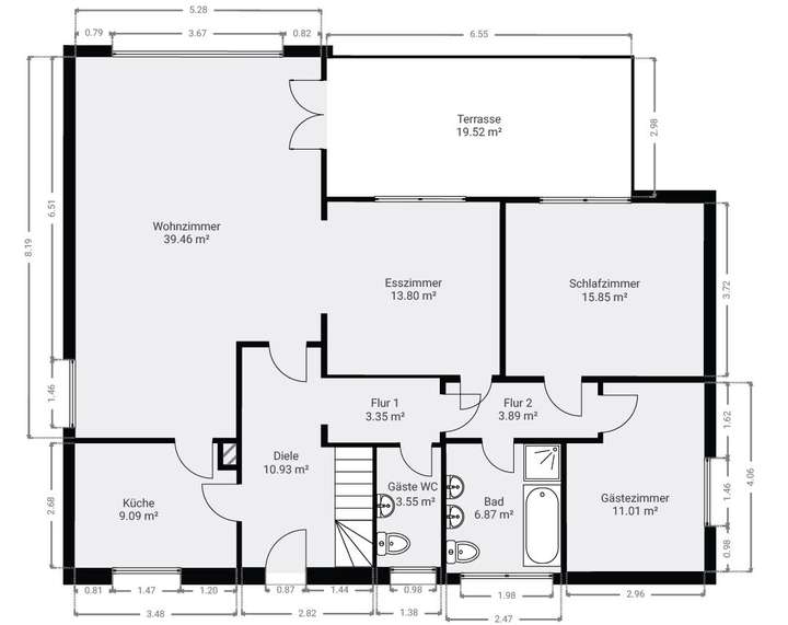
Bereits die großzügige Eingangsdiele bietet ausreichend Platz für eine Garderobe und führt Sie zu einem Gäste-WC. Von hier aus gelangen Sie in die separate Küche, in das angrenzende Esszimmer sowie in den weitläufigen Wohnbereich. Ein beeindruckendes Panoramafenster eröffnet Ihnen einen herrlichen Blick in den Garten und auf den Taunus. Vom Wohnzimmer aus betreten Sie die überdachte Terrasse, die nahtlos in den liebevoll angelegten Garten übergeht – ideal für entspannte Stunden im Freien.
Im Erdgeschoss stehen Ihnen zudem zwei gut geschnittene Schlafzimmer sowie ein Tageslichtbad zur Verfügung, das ausreichend Platz für eine Badewanne, eine Dusche und zwei Waschbecken bietet.
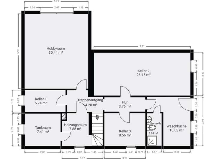
Das Untergeschoss überrascht mit einem vielseitig nutzbaren Hobby- oder Gästezimmer, das über ein eigenes Duschbad verfügt. Ergänzt wird die Etage durch den Heizungsraum, einen großzügigen Waschraum mit Platz für Waschmaschine und Trockner sowie mehrere Abstellräume. Auch der Einbau einer Sauna ist hier problemlos möglich.
Der Spitzboden bietet zusätzlichen Stauraum und erweitert damit die vielseitigen Nutzungsmöglichkeiten des Hauses.
Attraktiver Bungalow in begehrter Wohnlage von Usingen!
61250 Usingen
Die vollständige Adresse der Immobilie erhalten Sie vom Anbieter.
Auf Karte anzeigen
Die vollständige Adresse der Immobilie erhalten Sie vom Anbieter.
Finanzierungszertifikat
In nur zwei Minuten zu Ihrem persönlichen Finanzierungszertifkat.
Infos
| Haustyp | Bungalow |
|---|---|
| Etagenzahl | 1 |
| Wohnfläche ca. | 125 m2 |
| Nutzfläche | 107,53 m2 |
| Grundstücksfläche | 803 m2 |
| Zimmer | 4 |
| Schlafzimmer | 3 |
| Badezimmer | 2 |
| Garage/Stellplatz | Garage |
| Anzahl Garage/Stellplatz | 1 |
Kosten
| Kaufpreis |
655.000 € |
|---|---|
| Provision |
3,57% inkl. MwSt. Wir haben einen provisionspflichtigen Maklervertrag mit dem Verkäufer in gleicher Höhe abgeschlossen. |
Finanzierungsrechner:
Kaufpreis:
600.000 €
Eigenkapital:
600.000 €
Monatliche Rate
0 €
Effektiver Jahreszins
0 %
Sollzinsbindung
10 Jahre
Bausubstanz & Energieausweis
| Baujahr | 1968 |
|---|---|
| Objektzustand | Gepflegt |
| Heizungsart | Zentralheizung |
| Wesentliche Energieträger | Öl |
| Energieausweis | liegt vor |
| Energieausweistyp | Bedarfsausweis |
| Energieverbrauchskennwert | 206,6 kWh/(m²*a) |
| Energieeffizienzklasse | G |
206,6
kWh/(m²*a)
Energieeffizienzklasse G
- A+
- A
- B
- C
- D
- E
- F
- G
- H
- 0
- 25
- 50
- 75
- 100
- 125
- 150
- 175
- 200
- 225
- >250
Beschreibung des Objekts
Lage
Usingen liegt inmitten der Urlaubsregion Hochtaunus. Als ehemalige Residenz- und Kreisstadt kann sie auf eine über 1.200-jährige Historie zurückblicken. Die vielen wunderschönen Fachwerkhäuser und historischen Gebäude bieten eine reizvolle Kulisse. Bereits von Weitem ist das Wahrzeichen der Stadt, die Laurentiuskirche zu erkennen.
In ca. 35 Kilometern erreichen Sie Frankfurt. Die A3 und die A5 erreichen Sie in ca. 22 Kilometern, den internationalen Flughafen Frankfurt in ca. 45 Kilometern. Mit den RMV-Linien 5 (über Friedrichsdorf) und 15 (Taunusbahn) erreichen Sie die umliegenden Gemeinden und Frankfurt. Park & Ride Möglichkeiten finden Sie direkt an den Bahnhöfen.
Für den „täglichen Bedarf“ finden Sie im Innenstadtbereich und in den Stadtteilen Supermärkte, Apotheken, Restaurants und Gaststätten. Das Einzelhandelsangebot reicht von Bekleidung über Raumbedarf bis hin zu Produkten des regionalen Anbaus.
Das schulische Angebot beinhaltet zwei Grundschulen, eine Haupt- und Realschule, ein allgemeinbildendes Gymnasium und eine berufliche Schule. Vielfältige Kinderbetreuungsangebote können genutzt werden.
Von Usingen aus sind Sie schnell im Grünen. Eine besondere Attraktion oberhalb des Stadtteils Eschbach sind die Eschbacher Klippen. Schnell zu erreichen sind beispielsweise das Römerkastell Saalburg, der Freizeitpark Lochmühle in Wehrheim oder der Vogelpark Hochtaunus in Weilrod. Aber auch der Feldberg oder die Städte Bad Homburg und Frankfurt sind einen Tagesausflug wert.
Sonstige Angaben
Gerne stehen wir Ihnen für ein Beratungs- und Besichtigungstermin zur Verfügung.
Sie möchten selbst eine Immobilie verkaufen?
Wir ermitteln einen seriösen und marktgerechten Wert Ihrer Immobilie. Mit einem individuell für Sie abgestimmten Vermarktungsplan optimieren wir die Verkaufschancen. Als Tochtergesellschaft der Frankfurter Volksbank Rhein/Main unterstützt uns hierbei unser umfangreiches Netzwerk. Gerne begleiten wir Sie auf dem Weg zum erfolgreichen Verkauf Ihrer Immobilie und stehen Ihnen auch noch nach dem Beurkundungstermin zur Verfügung.
Für alle Fragen zur Finanzierung stehen Ihnen die Spezialisten der Frankfurter Volksbank Rhein/Main zur Verfügung. Hier stellen wir gerne einen Kontakt her.
Sprechen Sie uns an – wir freuen uns auf Sie!
Grundriss
Erdgeschoss
>
>
Untergeschoss
>
>
Adresse
61250 Usingen
Interessante Orte
Preis- und Lageinformationen
Preistrend für Bestandsimmobilien in Usingen