Willkommen in einem besonderen Zuhause:
Dieses sehr stilvolle und charmante Einfamilienhaus aus dem Baujahr 1933 verbindet historischen Charakter mit einer herausragenden, einmaligen Lage, wie man sie in Hamburg nur selten findet.
Eingebettet in eine ruhige Sackgasse im begehrten Stadtteil Volksdorf, erwartet Sie ein Refugium für Familien, das Ruhe, Natur und städtischen Komfort auf eine einzigartige Weise verbindet.
Das über 1.000 qm große Grundstück bietet am Ende einen privaten Zugang zu den Volksdorfer Teichwiesen, einem einzigartigem Naturjuwel mit besonderer geologischer und ökologischer Bedeutung.
Idylle pur - unmittelbar vor Ihrer eigenen Haustür.
Wir freuen uns sehr, Ihnen dieses Schmuckstück näher zu bringen.
Tradition trifft Anspruch - Ein seltenes Unikat in herausragender Lage von Volksdorf
22359 Hamburg
Die vollständige Adresse der Immobilie erhalten Sie vom Anbieter.
Auf Karte anzeigen
Die vollständige Adresse der Immobilie erhalten Sie vom Anbieter.
Finanzierungszertifikat
In nur zwei Minuten zu Ihrem persönlichen Finanzierungszertifkat.
Infos
| Haustyp | Einfamilienhaus |
|---|---|
| Wohnfläche ca. | 200 m2 |
| Nutzfläche | 90 m2 |
| Grundstücksfläche | 1.084 m2 |
| Bezugsfrei ab | 01.01.2026 |
| Zimmer | 8,5 |
| Badezimmer | 2 |
Kosten
| Kaufpreis |
1.690.000 € |
|---|---|
| Provision |
2,8% |
Finanzierungsrechner:
Kaufpreis:
600.000 €
Eigenkapital:
600.000 €
Monatliche Rate
0 €
Effektiver Jahreszins
0 %
Sollzinsbindung
10 Jahre
Bausubstanz & Energieausweis
| Baujahr | 1933 |
|---|---|
| Objektzustand | Gepflegt |
| Heizungsart | Zentralheizung |
| Wesentliche Energieträger | Öl |
| Energieausweis | liegt vor |
| Energieausweistyp | Bedarfsausweis |
| Energieverbrauchskennwert | 156,2 kWh/(m²*a) |
| Energieeffizienzklasse | E |
156,2
kWh/(m²*a)
Energieeffizienzklasse E
- A+
- A
- B
- C
- D
- E
- F
- G
- H
- 0
- 25
- 50
- 75
- 100
- 125
- 150
- 175
- 200
- 225
- >250
Beschreibung des Objekts
Ausstattung
Dieses stilvolle Einfamilienhaus aus dem Jahre 1933 ist ein architektonisches Kleinod, welches mit seinem authentischen Charme, seiner Großzügigkeit und einer seltenen Lage überzeugt.
Auf drei voll ausgebauten Ebenen plus Keller und begehbarem Spitzboden entfaltet sich ein vielseitiger Wohnraum mit insgesamt 8,5 Zimmern, zwei Bädern (ein Vollbad mit zusätzlicher Dusche im 1. OG und ein Duschbad im Dachgeschoss) sowie einem Gäste-WC, mehreren repräsentativen Aufenthaltsbereichen - ideal somit für Familien mit viel Platzbedarf.
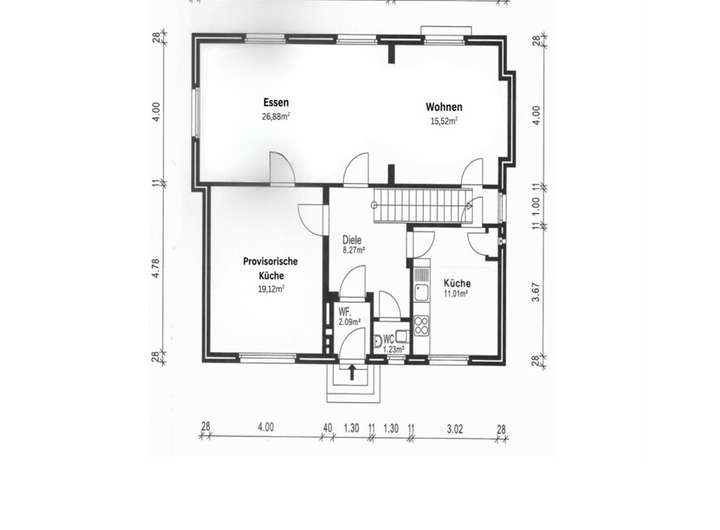
Schon der lichte und gehobene Eingangsbereich vermittelt einen ersten Eindruck von der besonderen Atmosphäre dieses Hauses. Der Empfang und die durchlaufende, originale Holztreppe ist klar gegliedert und hat den ursprünglichen Charme der Bauzeit bewahrt. Für Sie haben wir aktuell eine offene Küche in einem Stagingkonzept zur Ansicht gestaltet, damit Sie sich die zukünftige Wohnsituation im Erdgeschoss offen und mit dem angrenzendem Wohn- und Essbereich für Ihre Bedürfnisse vorstellen können. Fast alle Fenster geben hier einen unverwechselbaren Blick zur Terrasse, in den gepflegten Garten und weiter hinaus auf die sanft geschwungenen Linien des angrenzenden, unmittelbarem, direkt am Grundstück beginnenden Naturschutzgebietes.
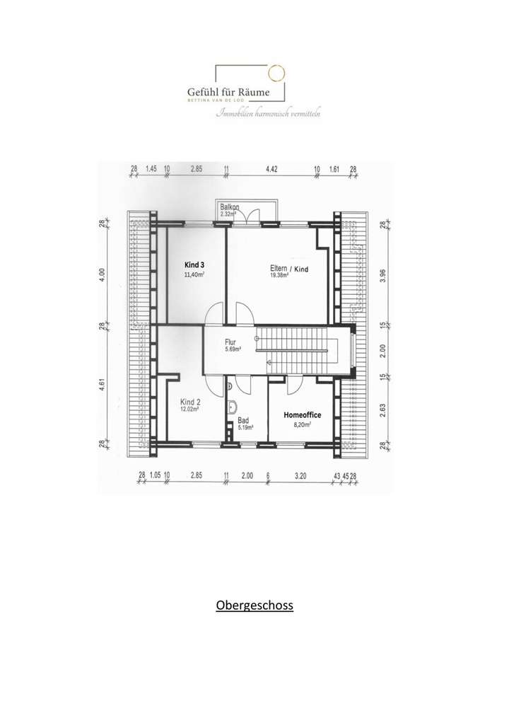
Das erste Obergeschoss beherbergt insgesamt vier Zimmer - drei mögliche Kinderzimmer zwischen 8,11 qm und über 17 qm Wohnfläche mit Balkon. Das modernisierte Vollbad mit Wanne und separater Dusche wurde vor ca. 10 Jahren saniert und rundet diese Familienebene funktional und ästhetisch ab.
Das ausgebaute Dachgeschoss verfügt über ein großes, über 20 qm großes Dachzimmer. Mit seinen offenen Dachbalken und einem erneut wirklich besonderen, fast verträumten Ausblick auf die Teichwiesen, bietet sich hier eine sehr stimmungsvolle Wohnqualität. Ein weiteres Zimmer mit ca. 12 qm sowie ein Duschbad ergänzt diese Ebene harmonisch. Über eine ausziehbare Treppe gelangt man in einen Spitzboden, welcher ebenfalls Stauraum bietet.
Lage
Die Lage dieses Einfamilienhauses zeichnet sich durch eine seltene Kombination aus privatem Raum, Naturverbundenheit und urbaner Nähe sowie direkter und fußläufiger U-Bahnanbindung aus.
In einer ruhigen, kaum befahrenen Sackgasse gelegen, bietet dieses Anwesen eine Atmosphäre der Zurückgezogenheit und Geborgenheit. Die Umgebung ist geprägt von gepflegten Einfamilienhäusern und viel Grün, was ein besonderes Wohn- und Familienklima schafft.
Die Volksdorfer Teichwiesen gehören zu einem der artenreichsten Gebiete Hamburgs und ermöglichen tägliche Naturerlebnisse. Trotz der ruhigen Lage sind Einkaufsmöglichkeiten, Schulen und öffentliche Verkehrsmittel in wenigen Minuten erreichbar, was den Alltag mit Kindern komfortabel gestaltet. Die Nähe zu weitläufigen Grünflächen und Spazierwegen ermöglicht es, die Natur unmittelbar zu erleben und bietet gleichzeitig einen Raum für Erholung und Freizeitaktivitäten.
Ein absolutes Alleinstellungsmerkmal ist der direkte Zugang vom Grundstück direkt in das Naturschutzgebiet. Ein Gartentor am hinteren Ende des Grundstücks öffnet sich direkt zum Naturpfad, der unmittelbar in dieses geschätzte Naturparadies führt. Die Volksdorfer Teichwiesen gehören zu den ökologisch wertvollsten Flächen Hamburgs. Auf rund 27 Hektar erstrecken sich Feuchtwiesen, kleine Teiche und naturnahe Waldstücke, die seltenen Tier- und Pflanzenarten einen geschützten Lebensraum bieten.
Autobahn und Flughafen erreicht man in ca. 20 Min, das Hamburger Stadtzentrum in ca. 30 Minuten. Die U-Bahnstation Volksdorf, diverse Busanbindungen und sämtliche Einkaufsmöglichkeiten sind fußläufig in wirklich wenigen Minuten erreichbar.
Diese besondere, sehr beliebte und einzigartige Lage vereint das Beste aus zwei Welten:
Die Ruhe und Exklusivität eines zurückgezogenen Wohnsitzes mit praktischer Nähe zur städtischen Infrastruktur. Ein idealer Ort für Familien, die Wert auf Privatsphäre und echte Lebensqualität legen.
Sonstige Angaben
Besondere architektonische Details aus dem Baujahr 1933 sind im gesamten Haus erhalten geblieben. Dieses Zeitalter liegt an der Schnittstelle zwischen der klassischen Moderne, dem späten Bauhaus-Einfluss und teils noch handwerklich geprägten Stilformen der 1920er. Diese Bauart weist oft eine besonders gelungene Mischung aus Schlichtheit, Funktionalität und traditionellen Elementen auf.
Genau diese Mischung findet sich in diesem Zuhause wieder:
Die original Pitchpine-Dielenböden in fast allen Wohnräumen mit den hohen Decken. Die mit solider Zimmerarbeit gefertigte und sehr gepflegte Holztreppe, welche sich durch das gesamte Haus zieht und damit einen wesentlichen Charakter verleiht. Die Kastendoppelfenster mit Vorfenster in jedem Raum.
Diese architektonischen Details erzählen die Geschichte aus dem Baujahr und geben dieser Immobilie einen besonderen Charakter. Ein Haus, weit mehr als ein Zuhause - ein Ort mit Haltung, Geschichte und Raum für neue Kapitel.
Wir haben uns mit Fachfirmen abgesprochen und können Ihnen aktuelle und konkrete Angebote für die Erneuerung der Ölheizung sowie der Fensterelemente vorlegen. Diese geben wir gern bei näherem Interesse und nach erfolgter Besichtigung an Sie weiter.
Weitere Dokumente
EnergieausweisGrundriss
Grundriss Keller
>
>
Grundriss Erdgeschoss
>
>
Grundriss Obergeschoss
>
>
Grundriss Dachgeschoss
>
>
Adresse
22359 Hamburg
Interessante Orte
Preis- und Lageinformationen
Preistrend für Bestandsimmobilien in Volksdorf