Objektnr: 1069478
Diese luxuriöse Villa in Bestlage von Dreieich beeindruckt bereits beim Eintreten mit einer Architektur, die Großzügigkeit, Design und klare Linien perfekt miteinander verbindet. Auf insgesamt 480 m² Wohnfläche entfaltet sich eine moderne Wohnwelt, die in jedem Detail Eleganz, Ruhe und stilvolle Zurückhaltung ausstrahlt. Der weitläufige Wohn- und Essbereich auf einer Ebene wird durch raumhohe Fensterfronten, viel Tageslicht und den durchgehenden fugenlosen Designerboden geprägt – ein Zusammenspiel, das eine Atmosphäre schafft, die gleichzeitig repräsentativ und wohltuend entspannend wirkt.
Der offen gestaltete Wohnbereich mit seinem eleganten, modernen Gaskamin bildet das emotionale Zentrum des Hauses. Hier verschmelzen Wohnen, Entspannen und Genießen zu einem besonderen Lebensgefühl. Die angrenzende hochwertige Designküche fügt sich harmonisch in dieses architektonische Konzept ein: puristisch, technisch hochwertig ausgestattet und perfekt für ein modernes Lifestyle-Wohnen.
Im Obergeschoss befindet sich der private Spa-Bereich – ein bewusst reduzierter, klar strukturierter Rückzugsort für Ruhe und Regeneration. Großzügige Flächen, edle Materialien und der Ausblick über die Umgebung verleihen diesem Bereich eine besondere atmosphärische Tiefe. Ergänzend dazu beeindruckt das luxuriöse Masterbad mit einer Walk-In-Dusche, Regenduschköpfen aus Decke und Wand sowie einer stilvollen beheizbaren Sitzbank, die den Komfort eines exklusiven Boutique-Hotels bietet.
Der Außenbereich vermittelt echtes Resort-Flair: Die rund 140 m² große Hauptterrasse, zwei weitere Terrassen im Erdgeschoss sowie eine weitere Terrasse direkt am Spa-Bereich schaffen zahlreiche Rückzugsorte für Outdoor-Living auf höchstem Niveau. Ein Swim Spa und ein separater Jacuzzi fügen diesem Ensemble eine zusätzliche Ebene an Luxus und Erholung hinzu.
Technisch erfüllt das Haus höchste Ansprüche. Das professionelle KNX-Smart-Home-System, bedienbar über fest verbaute iPads oder weltweit über das Smartphone, sorgt für maximale Kontrolle und Komfort. LAN-Anschlüsse in vielen Räumen, eine zentrale Staubsaugeranlage sowie ein praktischer Wäscheschacht verdeutlichen die durchdachte Planung. Ein weiterer Raum ist bereits vollständig für ein hochwertiges Heimkino vorbereitet – inklusive aller notwendigen Leitungen und Technikvorbereitungen.
Das ca. 1.005 m² große Grundstück ist elegant gestaltet und bietet absolute Privatsphäre. Eine beheizbare Garage mit Platz für bis zu drei Fahrzeugen sowie zusätzliche Stellplätze im Hof unterstreichen den gehobenen Anspruch dieser Immobilie und bieten großzügige Parkmöglichkeiten für Bewohner und Gäste.
Diese Villa ist mehr als ein Zuhause – sie ist ein modernes, luxuriöses Refugium für Menschen, die Exklusivität, architektonische Klarheit und ein außergewöhnliches Wohngefühl erwarten. Ein Ort, der sich nicht über Lautstärke definiert, sondern über Stil, Ruhe und kompromisslose Qualität.
High-Class Living in Dreieich – Wellness, Ruhe & modernster Wohnkomfort
63303 Dreieich
Die vollständige Adresse der Immobilie erhalten Sie vom Anbieter.
Auf Karte anzeigen
Die vollständige Adresse der Immobilie erhalten Sie vom Anbieter.
Finanzierungszertifikat
In nur zwei Minuten zu Ihrem persönlichen Finanzierungszertifkat.
Infos
| Haustyp | Einfamilienhaus |
|---|---|
| Etagenzahl | 3 |
| Wohnfläche ca. | 480 m2 |
| Grundstücksfläche | 1.005,14 m2 |
| Bezugsfrei ab | nach Absprache |
| Zimmer | 6 |
| Schlafzimmer | 3 |
| Badezimmer | 4 |
| Garage/Stellplatz | Garage |
| Anzahl Garage/Stellplatz | 6 |
Kosten
| Kaufpreis |
3.290.000 € |
|---|---|
| Provision |
3,57 % Die Provision i.H.v. 3,57 % inkl. MwSt. ist mit Kaufvertragsbeurkundung fällig, sofern der Verkaufspreis über 83.000,00 € liegt. Liegt der Verkaufspreis dagegen bei/unter 83.000,00 €, ist die fest vereinbarte Mindestprovision i.H.v. mind. 5.950,00 € inkl. MwSt. mit Kaufvertragsbeurkundung fällig. Die Mindestprovision fällt insg. nur einmal an, wodurch Verkäufer und Käufer die Mindestprovision dann jeweils mit 2.975,00 € inkl. MwSt. tragen. |
Finanzierungsrechner:
Kaufpreis:
600.000 €
Eigenkapital:
600.000 €
Monatliche Rate
0 €
Effektiver Jahreszins
0 %
Sollzinsbindung
10 Jahre
Bausubstanz & Energieausweis
| Baujahr | 2013 |
|---|---|
| Bauphase | Haus fertig gestellt |
| Objektzustand | Neuwertig |
| Qualität der Austattung | Luxus |
| Heizungsart | Zentralheizung |
| Wesentliche Energieträger | Gas |
| Energieausweis | liegt vor |
| Energieausweistyp | Bedarfsausweis |
| Energieverbrauchskennwert | 72,1 kWh/(m²*a) |
| Energieeffizienzklasse | B |
72,1
kWh/(m²*a)
Energieeffizienzklasse B
- A+
- A
- B
- C
- D
- E
- F
- G
- H
- 0
- 25
- 50
- 75
- 100
- 125
- 150
- 175
- 200
- 225
- >250
Beschreibung des Objekts
Ausstattung
+ Weitläufiger Wohn- & Essbereich mit fugenlosem Designerboden & Gaskamin
+ Privater Spa-Bereich mit Terrasse & herrlichem Weitblick
+ Großes Resort-Feeling: 140 m² Hauptterrasse, Swim Spa & Jacuzzi
+ KNX-Smart-Home – komplette Haussteuerung per iPad & weltweit per App
+ Luxuriöses Masterbad mit Walk-In-Dusche & beheizbarer Sitzbank
Lage
Lage: Ruhige Sackgassenlage mit minimalem Verkehr – ideal für Ruhe, Privatsphäre & Familien
Bildung und Betreuung: Kindergarten & Schule liegen beide in einem Radius von max. 800 m
Nahversorgung: Supermarkt, Apotheke, Post und Bank sind im Umkreis von ca. 800 m erreichbar
Anbindung: Bushaltestelle, Bahnhof und die Autobahn sind schnell und komfortabel erreichbar
Sonstige Angaben
Vereinbaren Sie noch heute einen Besichtigungstermin!
_____________________________________________________
Alle Angaben sind ohne Gewähr und basieren ausschließlich auf Informationen, die uns von unserem Auftraggeber zur Verfügung gestellt wurden. Wir übernehmen keine Gewähr für die Vollständigkeit, Richtigkeit und Aktualität der Angaben.
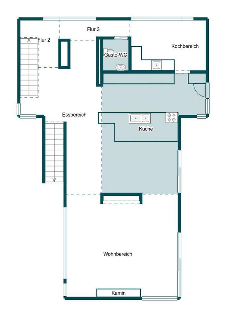
Grundriss
Grundriss Skizze EG
>
>
Grundriss Skizze 1.OG
>
>
Grundriss Skizze 2.OG
>
>
Grundriss Skizze 3.OG
>
>
Adresse
63303 Dreieich
Interessante Orte
Preis- und Lageinformationen
Preistrend für Bestandsimmobilien in Dreieich