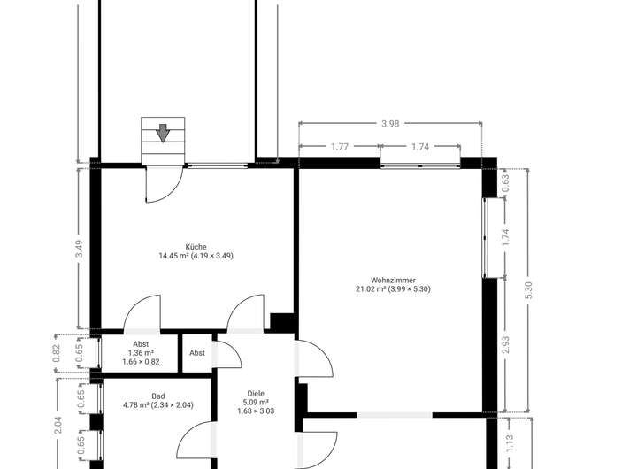
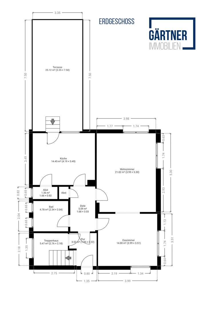
Dieses freistehende, modernisierungsbedürftige Ein- / Zweifamilienhaus mit ca. 151 m² Wohnfläche und einem wunderschönen Grundstück von ca. 694 m² befindet sich in absolut begehrter und ruhiger Wohnlage im Hanauer Musikerviertel. Im Erdgeschoss des Hauses erwarten Sie ein offener Wohn- und Essbereich sowie eine großzügige Küche mit Zugang auf die Terrasse und den Garten. Des Weiteren sind zwei kleine Abstellräume und ein hell gefliestes Tageslichtbad mit Dusche vorhanden. Im Obergeschoss befinden sich ein geräumiges Schlafzimmer mit Balkon, zwei helle Kinder- bzw. Arbeitszimmer, ein Tageslichtbad mit Wanne sowie ein separates WC. Das Dachgeschoss verfügt über ein Gäste-Zimmer und einen Dachboden, der weiteres Ausbaupotenzial bietet. Das Haus ist voll unterkellert. Hier stehen Ihnen neben dem Heizungs- / Waschraum vier Abstellräume zur Verfügung. Für Ihre PKWs sind drei Garagen mit davorliegenden Stellplätzen vorgesehen.
Hanau-Musikerviertel: Modernisierungsbedürftiges Ein- / Zweifamilienhaus mit Garten in bester Lage
63452 Hanau
Die vollständige Adresse der Immobilie erhalten Sie vom Anbieter.
Auf Karte anzeigen
Die vollständige Adresse der Immobilie erhalten Sie vom Anbieter.
Finanzierungszertifikat
In nur zwei Minuten zu Ihrem persönlichen Finanzierungszertifkat.
Infos
| Haustyp | Einfamilienhaus |
|---|---|
| Etagenzahl | 2 |
| Wohnfläche ca. | 151 m2 |
| Grundstücksfläche | 694 m2 |
| Bezugsfrei ab | Nach Absprache |
| Zimmer | 6 |
| Anzahl Garage/Stellplatz | 5 |
Kosten
| Kaufpreis |
649.000 € |
|---|---|
| Provision |
3,57 % |
Finanzierungsrechner:
Kaufpreis:
600.000 €
Eigenkapital:
600.000 €
Monatliche Rate
0 €
Effektiver Jahreszins
0 %
Sollzinsbindung
10 Jahre
Bausubstanz & Energieausweis
| Baujahr | 1958 |
|---|---|
| Objektzustand | Renovierungsbedürftig |
| Heizungsart | Zentralheizung |
| Wesentliche Energieträger | Gas |
| Energieausweis | liegt vor |
| Energieausweistyp | Bedarfsausweis |
| Energieverbrauchskennwert | 351,2 kWh/(m²*a) |
| Energieeffizienzklasse | H |
351,2
kWh/(m²*a)
Energieeffizienzklasse H
- A+
- A
- B
- C
- D
- E
- F
- G
- H
- 0
- 25
- 50
- 75
- 100
- 125
- 150
- 175
- 200
- 225
- >250
Beschreibung des Objekts
Ausstattung
- Freistehendes Ein- / Zweifamilienhaus
- Wunderschöner Garten
- Große überdachte Terrasse im Erdgeschoss
- Kleiner Balkon im Obergeschoss
- Zwei Tageslichtbäder mit Dusche oder Wanne
- Dachgeschoss teilweise ausgebaut
- Tolle, großzügige Grundrisse
- Kunststoff-Fenster mit Isolierverglasung
- Gas-Zentralheizung (Baujahr 2019)
- Voll unterkellert
- Drei PKW-Garagen mit davorliegenden Stellplätzen
Lage
Das Objekt befindet sich in absolut begehrter und ruhiger Wohnlage im Hanauer Musikerviertel.
- Der Park Wilhelmsbad und das Mainufer sind nur wenige Minuten entfernt
- Bahn-Anbindung direkt nach Frankfurt
- Beliebter Standort östlich von Frankfurt mit guter Anbindung an die A66 / A45 / A3
- Vielfältige Einkaufsmöglichkeiten in unmittelbarer Nähe zum Objekt
- Kindergärten / Tagesstätten und Schulen in wenigen Geh-Minuten erreichbar
- Freibad und Hallenbad sowie große Spielplätze und Vereinssport
- Sehr gute Gastronomie mit Bars und Restaurants
Sonstige Angaben
Für nähere Informationen oder einen Besichtigungstermin stehen wir Ihnen gerne jederzeit zur Verfügung.
Grundriss
Erdgeschoss
>
>
Obergeschoss
>
>
Dachgeschoss
>
>
Untergeschoss
>
>
Adresse
63452 Hanau
Interessante Orte
Preis- und Lageinformationen
Preistrend für Bestandsimmobilien in Hanau