Willkommen in Ihrem neuen Zuhause, einem herausragenden Neubau, der speziell für Käufer mit Sinn für Raffinesse, Leidenschaft und Präzision entworfen wurde. Diese Immobilie verkörpert modernen Luxus und bietet ein einzigartiges Wohnerlebnis für anspruchsvolle Käufer.
Neubau-Einfamilienhaus – Schlüsselfertig & hochwertig!
56348 Patersberg
Die vollständige Adresse der Immobilie erhalten Sie vom Anbieter.
Auf Karte anzeigen
Die vollständige Adresse der Immobilie erhalten Sie vom Anbieter.
Finanzierungszertifikat
In nur zwei Minuten zu Ihrem persönlichen Finanzierungszertifkat.
Infos
| Haustyp | Einfamilienhaus |
|---|---|
| Wohnfläche ca. | 123 m2 |
| Nutzfläche | 0 m2 |
| Grundstücksfläche | 980 m2 |
| Zimmer | 4 |
| Schlafzimmer | 3 |
| Badezimmer | 2 |
| Anzahl Garage/Stellplatz | 0 |
Kosten
| Kaufpreis |
449.000 € |
|---|---|
| Provision | Nein |
Finanzierungsrechner:
Kaufpreis:
600.000 €
Eigenkapital:
600.000 €
Monatliche Rate
0 €
Effektiver Jahreszins
0 %
Sollzinsbindung
10 Jahre
Bausubstanz & Energieausweis
| Baujahr | 2026 |
|---|---|
| Bauphase | Haus in Planung (projektiert) |
| Qualität der Austattung | Gehoben |
| Heizungsart | Wärmepumpe |
Beschreibung des Objekts
Ausstattung
Jedes unserer Fertighäuser wird speziell für Sie geplant und ist perfekt auf die Anforderungen und Vorgaben Ihres Bauvorhabens angepasst – Bebauungspläne, eine besondere Grundstückslage und die gewünschten Eigenleistungen werden im Detail geprüft und berücksichtigt.
Jedes schlüsselfertige Danhaus verfügt standardmäßig über:
- massive Klinkerfassade im Standard enthalten, auf Wunsch auch mit Holz- oder Putzfassade lieferbar
- Heizungstechnik auf Ihre Wünsche hin konfigurierbar
- auf Wunsch auch mit Fußbodenheizung mit Kühleffekt im Sommer lieferbar
- Kontrollierte Be- und Entlüftung
- Elektroinstallation fertig hergestellt
- Hochwertige Ausstattung mit Markenfabrikaten
- 3-Scheiben-Wärmeschutzglas
- Rollläden im Standard enthalten, auf Wunsch auch mit Elektroantrieb lieferbar
- Schwimmender Estrich mit Wärmedämmung verlegt
- Sanitärinstallation inkl. Sanitär-Objekte von Markenherstellern fertig hergestellt
- Innentüren, Wohnungstüren und Fensterbänke montiert
- Fliesen und Fußleisten fertig verlegt
Diesem Angebot liegt die beliebte Danhaus-Ausbaustufe "Schlüsselfertig" zugrunde. Diese kann selbstverständlich noch entsprechend Ihrer geplanten Eigenleistungen angepasst werden.
Lage
Dieses Hausprojekt ist auf einem realen Baugrundstück vorgesehen oder befindet sich aktuell in der Planungsphase – wahlweise kann es selbstverständlich auch auf Ihrem eigenen Grundstück realisiert werden. Das Grundstück erwerben Sie direkt vom jeweiligen Eigentümer. Der angegebene Hauspreis versteht sich inkl. Grundstück.
Aus Datenschutz- und Diskretionsgründen können Grundstücksdaten nur im Rahmen eines persönlichen Gesprächs weitergegeben werden.
Gern unterstützen wir Sie bei der Suche nach einem passenden Bauplatz und beraten Sie individuell zu Ihrem Bauvorhaben – unverbindlich und persönlich. Eine Beratung können Sie im Musterhaus Mülheim-Kärlich oder im Verkaufsbüro Wissen - Marktstraße 2 - 57537 Wissen vereinbaren.
Jens Schwanke
Handy: 0170-8778132
Sonstige Angaben
Das Haus ist projektiert inkl. Grundstück. Das Grundstück wird in Kommission angeboten bzw. direkt von Dritten verkauft. Daher kann der o.g. Preis aufgrund aktueller Marktsituationen schwanken.
Die Bauabwicklung kann kurzfristig nach Grundstückserwerb begonnen werden. Bilder zeigen möglicherweise Sonderausstattungen, die auf Wunsch gegen Preiskorrektur zusätzlich angeboten werden können.
Fragen Sie nach unserem kostenlosen Beratungs-Service und erhalten Sie in einem persönlichen Gespräch kostenlos alle wichtigen Informationen zu diesem Projekt, insbesondere: Lage und Bebauungsmöglichkeiten des Baugrundstücks, Baukosten-Kalkulation, Finanzierungs- u. Förderungs-Möglichkeiten, detaillierte Architektur- u. Grundrissplanung, etc.
Wir freuen uns, Sie ausführlich beraten zu dürfen!
Anbauteile, Carport, Garage und Keller können Extras sein, die als Sonderausstattung angeboten werden. Abbildungen, Grundrisse und Flächenangaben sind beispielhaft und können Extras zeigen. Flächenangaben nach DIN 277.
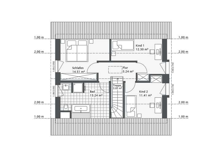
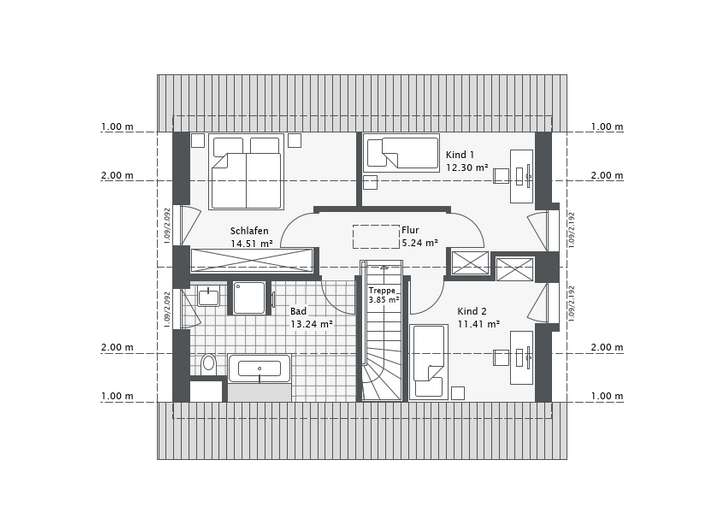
Grundriss
DreamLine-E-123 E1 EG
>
>
DreamLine-E-123 E1 OG
>
>
Adresse
56348 Patersberg
Interessante Orte
Preis- und Lageinformationen
Preistrend für Bestandsimmobilien in Patersberg