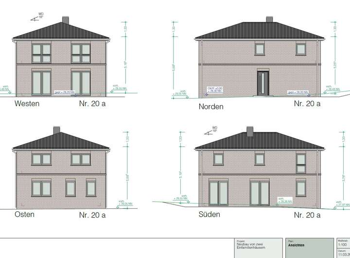
Die Häuser werden in hochwertiger, massiver Bauweise, voll unterkellert, erbaut. Sie haben im EG eine lichte Raumhöhe von ca. 2,60 m, im OG bis zu 2,76. Für die optimale Ausnutzung der Obergeschosse erhalten die Häuser einen Drempel/Kniestock. Sämtliche Räumlichkeiten erhalten viel Tageslicht durch große, teilweise bodentiefe Fenster. Die Wohnbereiche und die Flure werden mit Eichenechtholzparkett (Landhausdielen), die Küchen und Bäder mit Markenfliesen ausgestattet. Selbstverständlich wird im gesamten Haus eine Fußbodenheizung verlegt. Die Beheizung erfolgt durch eine energieeffiziente Wärmepumpe. So sind die Häuser von fossilen Brennstoffen unabhängig. Zum Leistungsangebot gehört u.v.a.: die Fassade in moderner Klinkerausführung, elektrische Rollläden in EG und 1. OG, Dreischeibenisolierglas nach ENEV-Richtlinien mit einbruchhemmenden, abschließbaren Fenstergriffen, Pflasterarbeiten, Westterrassen, alle Hausanschlüsse und die Elektrik. Alles Weitere finden Sie in der Baubeschreibung für Niedrigenergiehäuser. Auf Wunsch überreichen wir Ihnen gerne diese weitergehenden Informationen. Die Fertigstellung des Hauses erfolgt 2026.
Neubau von zwei real geteilten Einfamilienhäusern
22589 Hamburg
Die vollständige Adresse der Immobilie erhalten Sie vom Anbieter.
Auf Karte anzeigen
Die vollständige Adresse der Immobilie erhalten Sie vom Anbieter.
Finanzierungszertifikat
In nur zwei Minuten zu Ihrem persönlichen Finanzierungszertifkat.
Infos
| Etagenzahl | 2 |
|---|---|
| Wohnfläche ca. | 150 m2 |
| Nutzfläche | 71,45 m2 |
| Grundstücksfläche | 480 m2 |
| Zimmer | 4,5 |
| Schlafzimmer | 3 |
| Badezimmer | 2 |
| Anzahl Garage/Stellplatz | 1 |
Kosten
| Kaufpreis |
999.000 € |
|---|---|
| Provision |
3,57 % Die Käufercourtage in Höhe von 3,57 % inkl. der gesetzl. MwSt. auf den Kaufpreis ist mit dem Zustandekommen des Kaufvertrages (notarieller Vertragsabschluss) verdient und fällig. Mit dem Verkäufer besteht eine Courtagvereinbarung in gleicher Höhe. Die Vermittelnden und/oder Nachweisenden, VONBÜLOW&CO Immobilen Vermittlung GmbH & Co KG und ggf. deren Beauftragter, erhalten einen unmittelbaren Zahlungsanspruch gegenüber dem Käufer (Vertrag zugunsten Dritter, § 328 BGB). Alle Angaben s |
Finanzierungsrechner:
Kaufpreis:
600.000 €
Eigenkapital:
600.000 €
Monatliche Rate
0 €
Effektiver Jahreszins
0 %
Sollzinsbindung
10 Jahre
Bausubstanz & Energieausweis
| Baujahr | 2026 |
|---|---|
| Bauphase | Haus in Planung (projektiert) |
| Qualität der Austattung | Gehoben |
| Heizungsart | Wärmepumpe |
| Wesentliche Energieträger | Strom |
Beschreibung des Objekts
Ausstattung
Zustand: Neubau
voll unterkellert
Terrasse
1 Stellplatz
Bad mit Fenster, Wanne und Dusche, Gäste-WC / Dusche
offene Küche
Böden: Holzdielen, Fliesenboden
Fenster: Kunststofffenster
Anschlüsse: DSL-Anschluss
Lage
Die Häuser werden in hochwertiger, massiver Bauweise, voll unterkellert, erbaut. Sie haben im EG eine lichte Raumhöhe von ca. 2,60 m, im OG bis zu 2,76. Für die optimale Ausnutzung der Obergeschosse erhalten die Häuser einen Drempel/Kniestock. Sämtliche Räumlichkeiten erhalten viel Tageslicht durch große, teilweise bodentiefe Fenster. Die Wohnbereiche und die Flure werden mit Eichenechtholzparkett (Landhausdielen), die Küchen und Bäder mit Markenfliesen ausgestattet. Selbstverständlich wird im gesamten Haus eine Fußbodenheizung verlegt. Die Beheizung erfolgt durch eine energieeffiziente Wärmepumpe. So sind die Häuser von fossilen Brennstoffen unabhängig. Zum Leistungsangebot gehört u.v.a.: die Fassade in moderner Klinkerausführung, elektrische Rollläden in EG und 1. OG, Dreischeibenisolierglas nach ENEV-Richtlinien mit einbruchhemmenden, abschließbaren Fenstergriffen, Pflasterarbeiten, Westterrassen, alle Hausanschlüsse und die Elektrik. Alles Weitere finden Sie in der Baubeschreibung für Niedrigenergiehäuser. Auf Wunsch überreichen wir Ihnen gerne diese weitergehenden Informationen. Die Fertigstellung des Hauses erfolgt 2026.
Sonstige Angaben
Geldwäschegesetz
Als Immobilienmaklerunternehmen ist die VONBÜLOW&CO Immobilen Vermittlung GmbH & Co KG nach § 2 Abs. 1 Nr. 14 und § 11 Abs. 1, 2 Geldwäschegesetz (GwG) dazu verpflichtet, bei der Begründung einer Geschäftsbeziehung die Identität des Vertragspartners festzustellen und zu überprüfen, bzw. sobald ein ernsthaftes Interesse an der Durchführung des Immobilienkaufvertrages besteht. Hierzu ist es erforderlich, dass wir nach § 11 Abs. 4 GwG die relevanten Daten Ihres Personalausweises festhalten (wenn Sie als natürliche Person handeln) - beispielsweise mittels einer Kopie. Bei einer juristischen Person wird eine Kopie des Handelsregisterauszugs benötigt, aus welchem der wirtschaftlich Berechtigte hervorgeht. Das Geldwäschegesetz sieht vor, dass der Makler die Kopien bzw. Unterlagen fünf Jahre aufbewahren muss. Als unser Vertragspartner haben Sie auch eine Mitwirkungspflicht nach § 11 Abs. 6 GwG
Besichtigungstermine
Wir bitten um Ihr Verständnis, dass wir nur Anfragen bearbeiten können die komplette Angaben zu Name, E-Mail-Adresse und Telefonnummer enthalten. Bitte geben Sie bestenfalls eine Mobilnummer an, unter der wir Sie tagsüber erreichen können. Wir sind dem Eigentümer gegenüber nachweispflichtig. Alle, von Ihnen übermittelten, Daten werden selbstverständlich vertraulich behandelt. Herzlichen Dank!
Weitere Dokumente
Zeichnungen Am BotterbargGrundriss
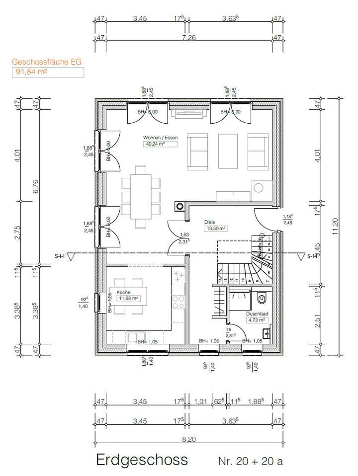
Grundriss - Erdgeschoss
>
>
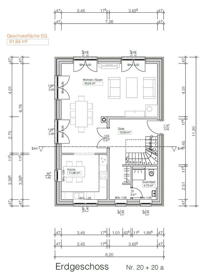
Grundriss - Erdgeschoss
>
>
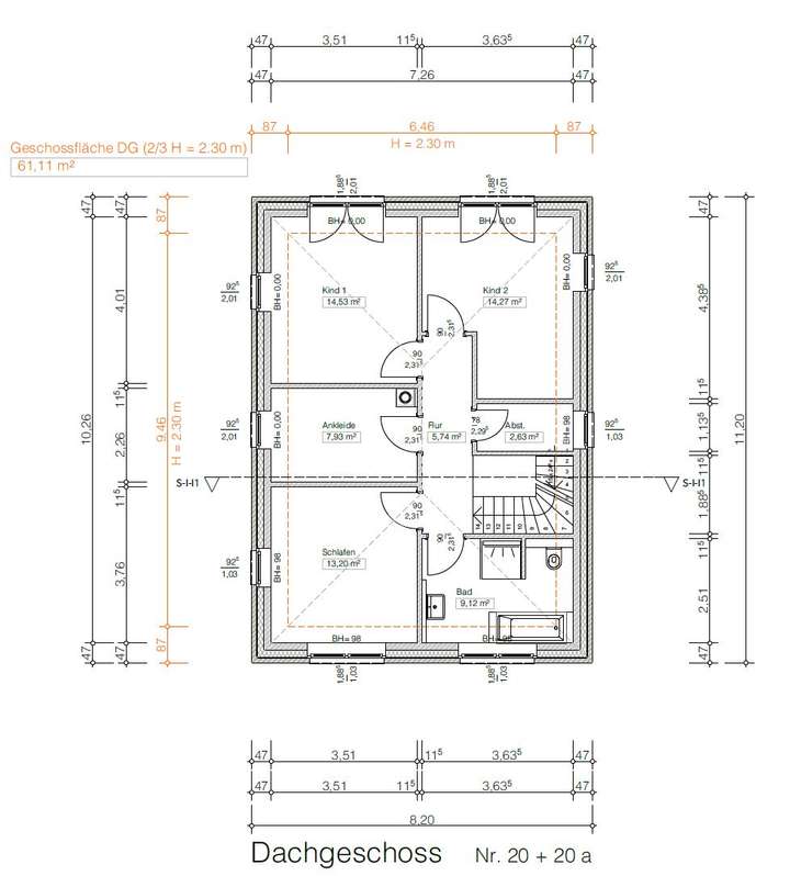
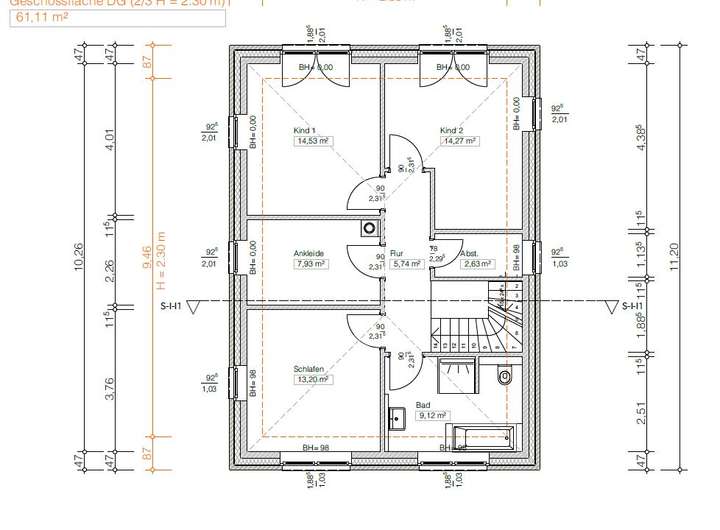
Grundriss - Dachgeschoss
>
>
Adresse
22589 Hamburg
Interessante Orte
Preis- und Lageinformationen
Preistrend für Bestandsimmobilien in Iserbrook