Dieses ruhig gelegene, massiv gebaute, vollunterkellerte Reihenendhaus aus dem Jahr 1967 befindet sich in Arheilgen. Das Grundstück umfasst 342 m², die Wohnfläche beträgt ca. 110 m² in EG und OG. Das Haus bietet eine Westterrasse mit gepflegtem Garten und kleinem Gartenhäuschen sowie einen Balkon im OG. Das Dach des Hauses wurde 2018 als Warmdach saniert. Modernisierungbedarf besteht u. a. bei Bädern und Leitungen.
Die dazugehörige Garage befindet sich in einem separaten Garagenhof (anteilige Fläche 34,25m²).
Die Immobilie ist sofort verfügbar.
Einkaufsmöglichkeiten und ÖPNV-Haltestellen sind fußläufig erreichbar.
Reihenendhaus mit schönem Garten und Garage in ruhiger Lage von Darmstadt-Arheilgen
64291 Darmstadt
Die vollständige Adresse der Immobilie erhalten Sie vom Anbieter.
Auf Karte anzeigen
Die vollständige Adresse der Immobilie erhalten Sie vom Anbieter.
Finanzierungszertifikat
In nur zwei Minuten zu Ihrem persönlichen Finanzierungszertifkat.
Infos
| Haustyp | Reiheneckhaus |
|---|---|
| Wohnfläche ca. | 110 m2 |
| Grundstücksfläche | 376,25 m2 |
| Zimmer | 4 |
| Schlafzimmer | 3 |
| Badezimmer | 1 |
| Garage/Stellplatz | Garage |
| Anzahl Garage/Stellplatz | 1 |
Kosten
| Kaufpreis |
460.000 € |
|---|---|
| Provision |
3,57% inkl. gesetzl. MwSt. zahlbar vom Käufer nach Beurkundung. Mit dem Verkäufer wurde eine Provision in gleicher Höhe vereinbart. |
Finanzierungsrechner:
Kaufpreis:
600.000 €
Eigenkapital:
600.000 €
Monatliche Rate
0 €
Effektiver Jahreszins
0 %
Sollzinsbindung
10 Jahre
Bausubstanz & Energieausweis
| Baujahr | 1967 |
|---|---|
| Objektzustand | Renovierungsbedürftig |
| Heizungsart | Zentralheizung |
| Wesentliche Energieträger | Fernwärme |
| Energieausweis | liegt vor |
| Energieausweistyp | Bedarfsausweis |
| Energieverbrauchskennwert | 217,5 kWh/(m²*a) |
| Energieeffizienzklasse | G |
217,5
kWh/(m²*a)
Energieeffizienzklasse G
- A+
- A
- B
- C
- D
- E
- F
- G
- H
- 0
- 25
- 50
- 75
- 100
- 125
- 150
- 175
- 200
- 225
- >250
Beschreibung des Objekts
Ausstattung
Boden: Parkett, Fliesen, Teppich, Marmortreppe, PVC
Fenster: Isolierverglasung Bj. 1980, Kunststoff, weiß mit Rollläden
Heizung: Fernwärme-Zentralheizung mit Warmwasserversorgung; Warmwasserboiler Bj. 2002; Übergabestation Fernwärme Bj. 2001
Bad/WC: EG: Tgl.-WC mit Waschbecken; OG: Tgl.- Wannenbad, WC, Waschbecken
Garten mit Gartenhaus, KFZ-Garagenstellplatz im Garagenhof
RAUMAUFTEILUNG
KG: Waschküche mit Dusche + Heizung, 2 Vorratsräume, Abstellraum, Flur, Außentreppe
EG: Windfang, Küche, Diele, Tgl.- WC, gr.- Wohn- und Essraum, Terrasse mit Markise
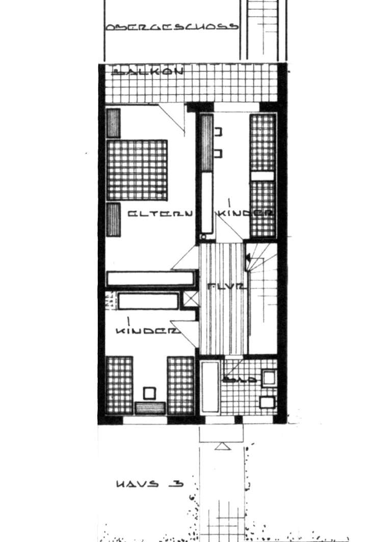
OG: Schlafzimmer, 2 Kinderzimmer, Balkon, Tgl.- Bad, Flur
Lage
Der Stadtteil Arheilgen grenzt im Norden an den Stadtteil Wixhausen, im Osten an den Darmstädter Stadtteil Kranichstein, im Süden an das Hauptwerk der Merck KGaA und den Stadtkern Darmstadts und im Westen an die
Gemarkung der Stadt Weiterstadt. 1937 wurde Arheilgen zeitgleich mit Eberstadt gegen den Willen der Bewohner nach Darmstadt zwangseingemeindet und damit zur Großstadt.
Arheilgen verfügt über eine gute Anbindung an den öffentlichen Personennahverkehr (ÖPNV) und ist mit dem
Bahnhof Darmstadt-Arheilgen an die S-Bahn-Strecke S3 von Darmstadt über Frankfurt am Main nach Bad Soden am Taunus angeschlossen. Darüber hinaus gibt es vielfältige Anbindungen an das Darmstädter Nahverkehrsnetz über Straßenbahn und Regionalbusanbindung in den Stadtkern, nach Eberstadt, bis nach Alsbach.
Über den Bahnhof Darmstadt-Nord besteht außerdem eine Anbindung an die Regionalbahn 75 in die Richtungen Mainz/Wiesbaden (über Groß-Gerau) und Aschaffenburg (über Dieburg und Babenhausen) sowie an die Regionalbahn 81 in Richtung Erbach (Odenwald) (über Reinheim und Groß-Umstadt).
Arheilgen mit seinen ca. 18.000 Einwohnern verfügt über eine eigene Infrastruktur zur Versorgung mit allen Dingen des täglichen Bedarfs sowie zwei Grundschulen und eine Gesamtschule.
Die nächsten Einkaufsmöglichkeiten im Zentrum, sowie die Straßenbahn ist fussläufig in 5 min, die S-Bahn ( mit A-Bus, Haltestelle 30 m) in 10 min gut erreichbar.
Arheilgen verfügt über ein großes Freizeitangebot mit seinem traditionellen Naturschwimmbad „Arheilger Mühlchen“, seinen vielen Sportmöglichkeiten und Spielplätzen und seinen unterschiedlichen gastronomischen Angeboten.
Quelle: Wikipedia
Sonstige Angaben
PROVISION:
Der Erwerber zahlt eine Provision in Höhe von 3,57 % inkl. gesetzl. MwSt. an die Firma Kleinsteuber Immobilien GmbH. Mit dem Verkäufer wurde eine Provision in gleicher Höhe vereinbart.
Angebote nur für den Empfänger selbst bestimmt. Weitergabe an Dritte nicht gestattet, anderenfalls Schadensersatzleistung in Höhe der ortsüblichen Nachweis- bzw. Vermittlungsgebühr.
ANGEBOTE FREIBLEIBEND - UNVERBINDLICH - IRRTUM - AUSLASSUNGEN - ZWISCHENVERWERTUNG vorbehalten.
Wir weisen darauf hin, dass die von uns weitergegebenen Objektinformationen vom Verkäufer bzw. von Dritten stammen und von uns weder auf Richtigkeit noch auf Vollständigkeit überprüft worden sind.
Grundriss
Grundriss KG - Außentreppe spi
>
>
Grundriss EG
>
>
Grundriss OG
>
>
Adresse
64291 Darmstadt
Interessante Orte
Preis- und Lageinformationen
Preistrend für Bestandsimmobilien in Arheilgen