Das freistehende Einfamilienhaus mit Einliegerwohnung erstreckt sich über drei Wohnetagen. Jede einzelne Wohnetage kann als als eine einzelne Wohneinheit genutzt werden. Das 1988 in massiver Bauweise errichtete Haus wurde auf einem großzügigen Grundstück errichtet. Zum Garten gehören eine schön angelegte Terrasse mit hoher Privatsphäre und ein Gartenhaus.
Weitere Details:
- das Haus bietet durch die große Wohnfläche sehr viel Platz für
eine Familie mit Kindern
- Wohnen und Arbeiten lassen sich bestens kombinieren
- sehr gepflegter Zustand des Hauses und des Gartens
- große Garage mit elektrischem Tor sowie weitere Stellplätze auf
dem Grundstück
- durch den großen Keller gibt es die Möglichkeit für zusätzlichen
Stauraum sowie eine Waschküche und weitere Kellerräume
- Die Einliegerwohnung ist an eine Einzelperson vermietet
- Holzkaminofen
Großzügiges Einfamilienhaus mit Einiegerwohnung 56154 Boppard Holzfeld!!
56154 Boppard
Die vollständige Adresse der Immobilie erhalten Sie vom Anbieter.
Auf Karte anzeigen
Die vollständige Adresse der Immobilie erhalten Sie vom Anbieter.
Finanzierungszertifikat
In nur zwei Minuten zu Ihrem persönlichen Finanzierungszertifkat.
Infos
| Haustyp | Einfamilienhaus |
|---|---|
| Etagenzahl | 1 |
| Wohnfläche ca. | 221 m2 |
| Grundstücksfläche | 473 m2 |
| Bezugsfrei ab | nach Vereinbarung |
| Zimmer | 6 |
| Schlafzimmer | 5 |
| Badezimmer | 3 |
| Garage/Stellplatz | Garage |
| Anzahl Garage/Stellplatz | 1 |
Kosten
| Kaufpreis |
399.000 € |
|---|---|
| Provision |
3,57% inklusive gesetzlicher MwSt. |
Finanzierungsrechner:
Kaufpreis:
600.000 €
Eigenkapital:
600.000 €
Monatliche Rate
0 €
Effektiver Jahreszins
0 %
Sollzinsbindung
10 Jahre
Bausubstanz & Energieausweis
| Baujahr | 1988 |
|---|---|
| Letzte Sanierung | 2025 |
| Bauphase | Haus fertig gestellt |
| Objektzustand | Modernisiert |
| Qualität der Austattung | Gehoben |
| Heizungsart | Zentralheizung |
| Wesentliche Energieträger | Öl |
| Energieausweis | liegt vor |
| Energieausweistyp | Verbrauchsausweis |
| Energieverbrauchskennwert | 269,0 kWh/(m²*a) |
| Energieeffizienzklasse | H |
269,0
kWh/(m²*a)
Energieeffizienzklasse H
- A+
- A
- B
- C
- D
- E
- F
- G
- H
- 0
- 25
- 50
- 75
- 100
- 125
- 150
- 175
- 200
- 225
- >250
Beschreibung des Objekts
Ausstattung
Die hochwertige und gepflegte Ausstattung des Hauses umfassen Vinyl- und Fliesenböden.
Es gibt im Obergeschoss ein Bad mit Wanne und Dusche, WC sowie einem Waschtisch.
Das Duschbad im Erdgeschoss ist mit einer großen barrierefreien Dusche, einem Waschtisch und WC versehen.
Die hochwertige Einbauküche mit Markengeräten sowie der Holzkaminofen, sind im Kaufpreis enthalten.
Weitere Ausstattungsmerkmale:
Öl-Zentralheizung, Isolierverglaste Fenster mit Holzrahmen, Terrasse, 3 Bäder (1 komplett neues Bad), Sat-Anschluss
Ein Energieausweis liegt vor und wird bei Besichtigung vorgelegt.
Verbrauchsausweis v. 17.03.2025, Gültig bis 16.03.2035, Öl,
269,2kWh/m²a*, Baujahr 1988, Anlagentechnik: 2015
Energieeffizienzklasse H
Lage
Holzfeld liegt im Süden des Hunsrücks und gehört zur Stadt Boppard. Der Ort hat ca 450 Einwohner. Die Region zeichnet sich durch eine waldreiche Umgebung aus, die sowohl für Erholung als auch für Wanderungen ideal ist.
In Holzfeld gibt es ein Dorfgemeinschaftshaus, in dem regelmäßig Veranstaltungen stattfinden.
Verkehrsanbindung:
Der Ort ist über Landesstraßen gut erreichbar. Die Nähe zu den größeren Zentren wie Boppard und Koblenz ermöglicht die Nutzung überregionaler Verkehrsnetze (z.B. Regionalbahnen und Buslinien).
Sehenswürdigkeiten und Besonderheiten:
Die waldreiche Umgebung und die nahegelegenen Wanderwege, wie Teile des Rhein-Burgen-Wanderwegs, laden zu ausgedehnten Spaziergängen und Naturerlebnissen ein.
Entfernungen zu umliegenden Städten:
Die Entfernung von Holzfeld (Boppard) bis Koblenz beträgt etwa 35 km und ca 14 KM bis Boppard
Die Autobahn in Richtung Main/Frankfurt ist nur wenige Kilometer entfernt.
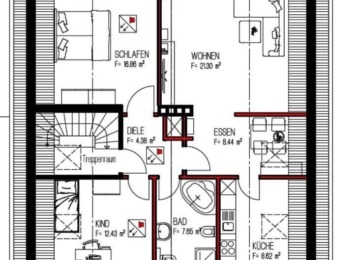
Grundriss
Grundriss EG
>
>
Grundriss DG
>
>
Grundriss KG
>
>
Adresse
56154 Boppard
Interessante Orte
Preis- und Lageinformationen
Preistrend für Bestandsimmobilien in Boppard