Für Handwerker, Bauunternehmer oder Entwickler: Dieses rund 490 m² große Grundstück in gefragter, ruhiger Lage von Wiesbaden-Breckenheim bietet vielseitige Möglichkeiten zur Umnutzung, Sanierung oder Entwicklung – ideal als Projektgrundlage für erfahrene Macher.
Der Bestand umfasst:
- Ein sanierungsbedürftiges Einfamilienhaus mit Anbau (Fachwerk, ca. Baujahr 1900, ca. 159 m² Wohnfläche, Denkmalschutz)
- Eine separate Werkstatt, eine Lagerhalle sowie eine Garage
- Einen großzügigen Innenhof mit Stellplätzen
Das denkmalgeschützte Haupthaus ist mit einer Gaszentralheizung aus 1989 ausgestattet. Aufgrund des baulichen Zustands bietet sich eine abschnittsweise Sanierung an – z. B. zunächst am Anbau, anschließend am Fachwerkhaus. Auch ein Konzept mit kombinierter Wohn- und Gewerbenutzung ist denkbar.
Die Lage spricht für sich: Ruhig und dennoch sehr gut angebunden – ideal für wohnwirtschaftliche oder handwerklich-gewerbliche Nutzung. Schulen, Einkaufsmöglichkeiten und ÖPNV befinden sich in der Nähe. Die bestehende Infrastruktur auf dem Grundstück spart Zeit und Aufwand bei der Projektplanung.
Fazit:
Ein Objekt mit Substanz und Potenzial – perfekt für Handwerker, die selbst anpacken möchten, oder für Bauprofis, die auf der Suche nach einem entwicklungsfähigen Standort mit Altbestand sind.
Auf Wunsch kann das anliegende freie Baugrundstück mit erworben werden.
Wir weisen darauf hin, dass das auf dem Grundstück stehende Wohnhaus Einzelkulturdenkmal gemäß § 2 Abs. 1 Hessisches Denkmalschutzgesetz (HDSchG) ist. Das gesamte Grundstück ist mit den übrigen Gebäuden zudem Teil einer als Kulturdenkmal im Sinne des § 2 Abs. 3 Hessisches Denkmalschutzgesetz (HDSchG) geschützten Gesamtanlage.
Die Umgebung ist geprägt von einer gewachsenen Wohnstruktur. Eine Bebauung richtet sich nach §34 BauGB. (Nachbarschaftsbebauung)
Falls Ihnen dieses Objekt zusagt, sollten Sie unverzüglich handeln und einen unverbindlichen Besichtigungstermin mit uns vereinbaren. Bitte sehen Sie von direkten Anfragen bei den Eigentümern ab. Sollten Sie Fragen haben, stehen wir Ihnen selbstverständlich gerne zur Verfügung!
Projektchance in Wiesbaden-Breckenheim – Grundstück mit Altbestand zur Sanierung
65207 Wiesbaden
Die vollständige Adresse der Immobilie erhalten Sie vom Anbieter.
Auf Karte anzeigen
Die vollständige Adresse der Immobilie erhalten Sie vom Anbieter.
Finanzierungszertifikat
In nur zwei Minuten zu Ihrem persönlichen Finanzierungszertifkat.
Infos
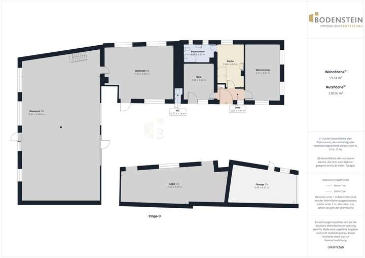
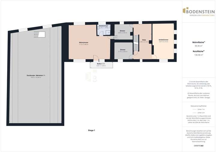
| Haustyp | Einfamilienhaus |
|---|---|
| Wohnfläche ca. | 159 m2 |
| Nutzfläche | 538 m2 |
| Grundstücksfläche | 490 m2 |
| Zimmer | 8 |
| Garage/Stellplatz | Garage |
Kosten
| Kaufpreis |
398.000 € |
|---|---|
| Provision |
3,57 % inkl. MwSt. |
Finanzierungsrechner:
Kaufpreis:
600.000 €
Eigenkapital:
600.000 €
Monatliche Rate
0 €
Effektiver Jahreszins
0 %
Sollzinsbindung
10 Jahre
Bausubstanz & Energieausweis
| Baujahr | 1900 |
|---|---|
| Qualität der Austattung | Einfach |
| Heizungsart | Gas-Heizung |
| Energieausweis | laut Gesetz nicht erforderlich |
Beschreibung des Objekts
Ausstattung
Highlights:
- Grundstücksgröße: ca. 490m²
- Bestand: Altbau (mit Anbau) mit 8 Zimmern, Garage, Lager, Werkstatträume (alte Schlosserei)
- Besondere Abschreibungsmöglichkeiten aufgrund Denkmalanteil
- Ruhige innerörtliche Lage mit guter Anbindung
- Vielfältige Nutzungs- und Gestaltungsmöglichkeiten ( Ausbaufähige Gebäude )
- Bestehende Infrastruktur vorhanden: Stellplätze, großer Innenhof
- Nutzbarer Brunnen im Kellergeschoss
- Offener Kamin im Erdgeschoss des Vorderhauses
Lage
Das charmante Anwesen befindet sich in einer idyllischen Umgebung im beschaulichen Breckenheim, einem Stadtteil von Wiesbaden. Die umliegende Bebauung präsentiert sich durch eine Mischung aus gepflegten Einfamilienhäusern und liebevoll gestalteten Gärten, die eine harmonische Wohnatmosphäre schaffen.
Die Ortschaft Breckenheim besticht durch ihre ausgezeichnete Infrastruktur und die Nähe zu verschiedenen Annehmlichkeiten des täglichen Bedarfs. Einkaufsmöglichkeiten, Schulen und Kindergärten sind bequem erreichbar, während die umliegende Natur zu erholsamen Spaziergängen und Fahrradtouren einlädt. Besonders erwähnenswert ist die Nähe zum Naturpark Rhein-Taunus, der zahlreiche Freizeitmöglichkeiten in der Natur bietet.
Die verkehrsgünstige Lage von Breckenheim ermöglicht eine schnelle Anbindung an die Autobahnen A3 und A66, wodurch die umliegenden Städte wie Mainz und Frankfurt bequem erreichbar sind.
Insgesamt präsentiert sich die Ortschaft Breckenheim als attraktiver Wohnort mit einer ausgezeichneten Verkehrsanbindung und einem hohen Maß an Lebensqualität, ideal für Familien und Pendler gleichermaßen.
Grundriss
GR EG
>
>
GR OG
>
>
GR Dachboden Haupthaus
>
>
Adresse
65207 Wiesbaden
Interessante Orte
Preis- und Lageinformationen
Preistrend für Bestandsimmobilien in Breckenheim