Dieses vielseitige Anwesen vereint stilvolles Wohnen, moderne Arbeitsmöglichkeiten und attraktives Vermietungspotenzial unter einem Dach – ideal für Menschen, die Wohnen und Arbeiten verbinden möchten, für kreative Selbstständige, Freiberufler oder Investoren, die flexible Nutzungskonzepte schätzen.
Das ursprüngliche Wohnhaus aus den 1950er Jahren wurde 2022 umfassend und hochwertig kernsaniert. Heute präsentiert es sich als zeitgemäße, funktional durchdachte Immobilie, die individuelle Lebens- und Geschäftskonzepte ermöglicht.
Auf zwei Etagen bietet das Haupthaus großzügige Wohnflächen, die gleichermaßen für private wie berufliche Zwecke genutzt werden können.
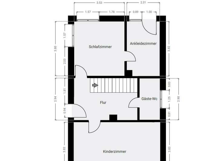
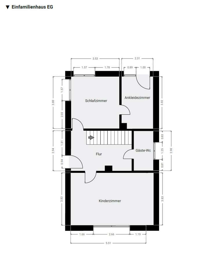
Im Erdgeschoss befinden sich zwei große Zimmer, die sich ideal als Büro-, Praxis- oder Beratungsräume eignen, aber ebenso als private Schlaf- oder Gästezimmer genutzt werden können. Ein weiteres, angrenzendes Zimmer bietet sich als Archiv, Besprechungsraum oder Rückzugsort an. Ein elegantes Tageslicht-Gäste-WC ergänzt diese Ebene.
Im Obergeschoss überzeugt ein offener Wohn- und Essbereich mit hochwertiger Einbauküche – perfekt für das private Wohnen oder repräsentative Kundentermine. Das luxuriöse Badezimmer mit großer Badewanne, bodengleicher Dusche und Regendusche schafft eine Wellnessatmosphäre. Zusätzlich stehen hier ein Kinderzimmer, ein Elternschlafzimmer mit Ankleide sowie ein praktischer Hauswirtschaftsraum zur Verfügung.
Das ausbaufähige Dachgeschoss eröffnet weitere Gestaltungsmöglichkeiten und Zugang zur großzügigen Dachterrasse.
Zwei separate 1-Zimmer-Apartments mit eigenen Eingängen bieten ideale Voraussetzungen für dauerhafte Vermietung, Serviced Apartments oder Airbnb – ein attraktiver Baustein für zusätzliche Einnahmen.
Große Halle für Gewerbe, Hobby oder Lager
Eine ca. 108 m² große Halle erweitert die Nutzungsoptionen nochmals deutlich. Ob Werkstatt, Lagerfläche, Atelier, Produktionsraum oder großzügige Garage – hier ist nahezu alles möglich.
Kombination aus Wohnen, Vermieten und Gewerbe – ein Investment mit Potenzial
64319 Pfungstadt
Die vollständige Adresse der Immobilie erhalten Sie vom Anbieter.
Auf Karte anzeigen
Die vollständige Adresse der Immobilie erhalten Sie vom Anbieter.
Finanzierungszertifikat
In nur zwei Minuten zu Ihrem persönlichen Finanzierungszertifkat.
Infos
| Haustyp | Mehrfamilienhaus |
|---|---|
| Etagenzahl | 2 |
| Wohnfläche ca. | 238 m2 |
| Nutzfläche | 249 m2 |
| Grundstücksfläche | 386 m2 |
| Bezugsfrei ab | Ab sofort |
| Zimmer | 10 |
| Schlafzimmer | 6 |
| Badezimmer | 3 |
Kosten
| Kaufpreis |
748.000 € |
|---|---|
| Provision |
3 % |
Finanzierungsrechner:
Kaufpreis:
600.000 €
Eigenkapital:
600.000 €
Monatliche Rate
0 €
Effektiver Jahreszins
0 %
Sollzinsbindung
10 Jahre
Bausubstanz & Energieausweis
| Baujahr | 1955 |
|---|---|
| Objektzustand | Saniert |
| Qualität der Austattung | Gehoben |
| Heizungsart | Zentralheizung |
| Wesentliche Energieträger | Gas |
| Energieausweis | liegt vor |
| Energieausweistyp | Verbrauchsausweis |
| Energieverbrauchskennwert | 140,5 kWh/(m²*a) |
| Energieeffizienzklasse | E |
140,5
kWh/(m²*a)
Energieeffizienzklasse E
- A+
- A
- B
- C
- D
- E
- F
- G
- H
- 0
- 25
- 50
- 75
- 100
- 125
- 150
- 175
- 200
- 225
- >250
Beschreibung des Objekts
Ausstattung
- Kernsanierung 2022 mit hochwertiger Ausstattung
- Zwei 1-Zimmer Apartments
- Ausbaufähiges Dachgeschoss mit großer Dachterrasse
- Großes Nebengebäude (nutzbar als Werkstatt, Lagerhalle, Garage etc.)
Lage
Die hessische Stadt Pfungstadt befindet sich in der Nähe von Darmstadt und liegt verkehrsgünstig in der Metropolregion Rhein-Main und bietet eine gute Anbindung an das Autobahnnetz.
Die Immobilie befindet sich in einem Wohngebiet, das eine ruhige und dennoch zentrale Umgebung bietet.
Pfungstadt bietet eine Vielzahl von Einrichtungen und Annehmlichkeiten. Es gibt Einkaufsmöglichkeiten, Supermärkte, Restaurants, Cafés und andere Geschäfte, die den täglichen Bedarf decken. Die Stadt verfügt auch über Schulen, Kindergärten und andere Bildungseinrichtungen, was sie zu einem attraktiven Ort für Singles, Paare und Familien macht.
Insgesamt bietet Pfungstadt eine attraktive Wohnlage mit guter Infrastruktur, günstiger Verkehrsanbindung und einer Vielzahl von Annehmlichkeiten in der näheren Umgebung.
Grundriss
Grundriss_EG
>
>
Grundriss_1.OG
>
>
Ausbaufähiges_Dachgeschoss
>
>
Grundriss_Apartment_1
>
>
Grundriss_Apartment_2
>
>
Grundriss_Scheune
>
>
Adresse
64319 Pfungstadt
Interessante Orte
Preis- und Lageinformationen
Preistrend für Bestandsimmobilien in Pfungstadt