Dieses Einfamilienhaus vereint traditionellen Charme mit moderner Architektur. Hinter der klassischen Fassade verbirgt sich ein durchdachtes Raumkonzept mit zeitgemäßem Wohnkomfort. Kochen und Essen verschmelzen zu einem großzügigen, offenen Bereich - ideal für gemeinsames Familienleben. Der separate Wohnraum mit offener Treppe ins Dachgeschoss schafft eine gemütliche Rückzugsatmosphäre.
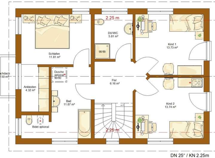
Im Obergeschoss erwarten Sie zwei gleich große Kinderzimmer, ein Elternschlafzimmer mit angrenzender Ankleide sowie ein stilvoll gestaltetes Bad. Die kompakte und clevere Bauweise macht das Haus besonders geeignet für schmale Grundstücke.
Smarter Neubau in Stein-Bockenheim mit KfW-Förderkredit!
55599 Stein-Bockenheim
Die vollständige Adresse der Immobilie erhalten Sie vom Anbieter.
Auf Karte anzeigen
Die vollständige Adresse der Immobilie erhalten Sie vom Anbieter.
Finanzierungszertifikat
In nur zwei Minuten zu Ihrem persönlichen Finanzierungszertifkat.
Infos
| Haustyp | Einfamilienhaus |
|---|---|
| Etagenzahl | 2 |
| Wohnfläche ca. | 139 m2 |
| Grundstücksfläche | 480 m2 |
| Bezugsfrei ab | 2026 |
| Zimmer | 5 |
| Schlafzimmer | 4 |
| Badezimmer | 2 |
Kosten
| Kaufpreis |
429.530 € |
|---|
Finanzierungsrechner:
Kaufpreis:
600.000 €
Eigenkapital:
600.000 €
Monatliche Rate
0 €
Effektiver Jahreszins
0 %
Sollzinsbindung
10 Jahre
Bausubstanz & Energieausweis
| Baujahr | 2026 |
|---|---|
| Bauphase | Haus in Planung (projektiert) |
| Qualität der Austattung | Gehoben |
Beschreibung des Objekts
Ausstattung
Die vorgestellte Projektierung umfasst Leistungen entsprechend der Bau- und Leistungsbeschreibung "CONCEPT fast fertig" als Grundlage für die weitere Planung und Kalkulation. In definierten Ausbaustufen werden hier umfangreiche Leistungen dargestellt - übersichtlich und transparent. Treffen Sie Ihre ganz persönliche Wahl: vom Ausbauhaus über technikfertige oder fast fertige Ausstattung bis zum schlüsselfertigen Haus. Alles in bewährter RENSCH-HAUS Qualität:
● Planungs- und Ingenieurleistungen (u.a. Statik, Nachweise für die Beantragung von Fördermitteln)
● Ausstattungswelt mit großer Auswahl u.a. an Sanitärobjekten, Fliesen und Bodenbelägen von deutschen Markenherstellern
● Produktion ausschließlich in Deutschland
● Handwerkstradition aus Überzeugung - als Familienunternehmen seit über 145 Jahren in fünfter Generation
● Lieferung und Montage (u.a. Transport, Kran, Gerüst, Baustellen-WC)
● Effizienzhaus 40 - serienmäßig mit unserem Heiz- und Lüftungssystem; eine Nachhaltigkeitszertifizierung nach QNG bieten wir Ihnen gerne an
● Sommerlicher Hitzeschutz durch hohe Speicherfähigkeit der Konstruktion
● Diffusionsoffene Außenwand, gefertigt aus natürlichen Rohstoffen
● Gemeinsame Hausabnahme und Schlüsselübergabe zusammen mit unseren Bauherren
● Alles aus einer Hand. Auf Wunsch mit Baunebengewerken (Keller, Carport, Garage)
● 30 Jahre Garantie auf die Tragkonstruktion und fünf Jahre Gewährleistung mit kostenfreiem Kundendienst
Lage
Entdecken Sie das charmante Weindorf Stein-Bockenheim in Rheinhessen - ideal für alle, die naturnah leben und dennoch auf gute Infrastruktur nicht verzichten möchten. Der Ort bietet eine wunderschöne Landschaft, eine lebendige Dorfgemeinschaft und liegt nur wenige Fahrminuten von Wöllstein, Bad Kreuznach und Alzey entfernt.
Ob als neues Zuhause oder für den Wochenend-Rückzug - Stein-Bockenheim verbindet ländliche Ruhe mit bester Lebensqualität.
Sonstige Angaben
Im ausgewiesenen Gesamtpreis enthalten sind das Grundstück, die Bodenplatte sowie das Haus gemäß der Bau- und Leistungsbeschreibung.
Dargestellte Anbauteile sind teilweise Sonderausstattung.
Nicht enthalten sind die üblichen Baunebenkosten (z. B. Hausanschlüsse, Außenanlagen, Genehmigungsgebühren) sowie die Kaufnebenkosten (Grunderwerbsteuer, Notar- und Grundbuchkosten).
Das dargestellte Haus ist ein Vorschlag - bei RENSCH-HAUS planen wir grundsätzlich individuell, frei und flexibel, ganz nach Ihren Wünschen - wie beim Architekten. Die finale Ausführung erfolgt individuell und kann bei Bedarf noch an die Gegebenheiten des Grundstücks angepasst werden.
Die Angaben zum dargestellten Baugrundstück beruhen auf Angaben des Eigentümers. Angebot und Zwischenverkauf sind freibleibend.
Sollte das angebotene Grundstück nicht zu Ihren Vorstellungen passen, unterstützen wir Sie bei der Suche nach einer passenden Alternative.
Wir beraten Sie gerne.
Grundriss
Grundriss
>
>
Grundriss
>
>
Adresse
55599 Stein-Bockenheim
Interessante Orte
Preis- und Lageinformationen
Preistrend für Bestandsimmobilien in Stein-Bockenheim