***WICHTIG: fordern Sie jetzt das vollständige Exposé inkl. einem virtuellen 360°-Rundgang und weiteren Unterlagen an. Klicken Sie auf "Nachricht schreiben" und Sie erhalten das Exposé per Mail zugesendet. ***
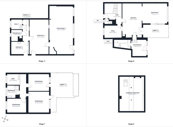
Diese außergewöhnlich großzügige Doppelhaushälfte in Bürstadt-Bobstadt überzeugt durch ein beeindruckendes Raumangebot und vielfältige Nutzungsmöglichkeiten. Auf ca. 188 m² Wohnfläche präsentiert sich ein Zuhause, das sowohl Familien als auch Paaren jede Menge Platz und Flexibilität bietet.
Im Erdgeschoss öffnet sich ein sehr großzügiger Wohn- und Essbereich, der durch seine offene Raumwirkung und große Fensterflächen besticht. Der moderne Kamin (2020) setzt einen stilvollen Akzent und sorgt für eine warme, einladende Atmosphäre. Das 1978 erweiterte Wohnzimmer beeindruckt zudem mit einer abgehängten Decke samt integriertem „Sternenhimmel“ und bietet direkten Zugang zur überdachten Terrasse sowie in den neu gestalteten Garten (2020).
Vom Wohn-/Essbereich führt zudem eine Treppe in ein zwischen Haus und Garage gelegenes Nebenzimmer mit praktischem, ebenerdigem Gartenzugang. Von dort gelangt man in das Kellergeschoss. Hier zeigt sich ein großzügiger, variabel nutzbarer Bereich mit Werkstatt- und Technikräumen. Ein Teil des Kellers wurde 2024 modernisiert und zuvor als Sauna- und Fitnessraum genutzt. Die Ausstattung wurde vom Eigentümer mitgenommen, sodass der Raum heute offen, gepflegt und bereit für eine neue Nutzung ist – ideal für ein Home-Spa, Fitnessraum, Studio oder andere individuelle Wohnideen. Der teilweise rückgebaute ehemalige Poolbereich bietet zusätzlich großes Potenzial für eine kreative Umgestaltung.
Das Obergeschoss umfasst drei Schlafzimmer sowie ein Tageslichtbad mit Dusche und Wanne. Zwei der Schlafzimmer führen direkt auf eine Dachterrasse/Loggia, die dank einer Dachöffnung charmante Sonnenanteile erhält – ein wunderbarer Ort für entspannte Abendstunden. Das darüberliegende ausgebaute Dachgeschoss eignet sich hervorragend als Büro, Hobbyraum oder zusätzlicher Rückzugsbereich.
Insgesamt präsentiert sich das Haus in einem gepflegten, modernisierten Zustand. Einige kleine, leicht zu erledigende Restarbeiten ermöglichen künftigen Eigentümern die Möglichkeit, einzelne Bereiche nach eigenem Geschmack final zu gestalten. Auf der neu gefliesten Dachterrasse (2021) fehlen im Bereich des früheren Whirlpools noch wenige Fliesen – diese sind laut aktuellem Eigentümer problemlos nachkaufbar. Vereinzelt sollten Rollläden erneuert werden, und im Badezimmer sind nach dem Fenstertausch ebenfalls kleinere Fliesenarbeiten offen. Auch der teils geöffnete Kellerbereich bietet die Chance, das vorhandene Potenzial ganz individuell zu nutzen.
Das Haus steht leer und kann kurzfristig bezogen werden.
Großzügige Doppelhaushälfte mit Kamin, Dachterrasse und viel Potenzial in Bürstadt-Bobstadt
68642 Bürstadt
Die vollständige Adresse der Immobilie erhalten Sie vom Anbieter.
Auf Karte anzeigen
Die vollständige Adresse der Immobilie erhalten Sie vom Anbieter.
Finanzierungszertifikat
In nur zwei Minuten zu Ihrem persönlichen Finanzierungszertifkat.
Infos
| Haustyp | Doppelhaushaelfte |
|---|---|
| Wohnfläche ca. | 187 m2 |
| Grundstücksfläche | 310 m2 |
| Bezugsfrei ab | sofort |
| Zimmer | 6 |
| Schlafzimmer | 3 |
| Badezimmer | 1 |
| Garage/Stellplatz | Garage |
| Anzahl Garage/Stellplatz | 2 |
Kosten
| Kaufpreis |
469.000 € |
|---|---|
| Provision |
3,57% inkl. MwSt. Die Nachweis-/Vermittlungsprovision beträgt für den Käufer 3,57 % inkl. der gesetzlichen MwSt. und errechnet sich aus dem tatsächlichem Kaufpreis. Sie ist bei Beurkundung des notariellen Kaufvertrages zur Zahlung fällig. Diese Provision ist unbeschadet der vereinbarten Nachweis-/bzw. Vermittlungsprovision (Innenprovision) des Verkäufers von 3,57 % aus dem tatsächlichen Kaufpreis zur Zahlung fällig. Wir sind somit auch für den Verkäufer als Makler tätig. |
Finanzierungsrechner:
Kaufpreis:
600.000 €
Eigenkapital:
600.000 €
Monatliche Rate
0 €
Effektiver Jahreszins
0 %
Sollzinsbindung
10 Jahre
Bausubstanz & Energieausweis
| Baujahr | 1968 |
|---|---|
| Letzte Sanierung | 2024 |
| Qualität der Austattung | Normal |
| Heizungsart | Wärmepumpe |
| Wesentliche Energieträger | Strom |
| Energieausweis | liegt vor |
| Energieausweistyp | Bedarfsausweis |
| Energieverbrauchskennwert | 96,4 kWh/(m²*a) |
| Energieeffizienzklasse | C |
96,4
kWh/(m²*a)
Energieeffizienzklasse C
- A+
- A
- B
- C
- D
- E
- F
- G
- H
- 0
- 25
- 50
- 75
- 100
- 125
- 150
- 175
- 200
- 225
- >250
Beschreibung des Objekts
Ausstattung
Modernisierungen & Renovierungen der letzten Jahre:
- 2019: Installation einer modernen Klima-Heizanlage (EG und OG)
- 2019: Hochwertiger Laminatboden in den Wohnbereichen
- 2020–2024: Austausch nahezu aller Fenster und Balkontüren durch 3-fach verglaste Kunststofffenster
- 2020: Einbau eines Kaminofens inkl. Edelstahl-Außenschornstein
- 2020: Garten neu angelegt
- 2020: Untere Terrasse neu gestaltet
- 2021: Fassadenanstrich inkl. neuer Regenrinne und Fallrohr
- 2021: Obere Terrasse neu gefliest
- 2021: Vorgarten neu gemauert & Stellplatz neu gepflastert
- 2024: Lichtdurchlässige Terrassenüberdachung (oben & unten)
- 2024: Umgestaltung des ehemaligen Sauna-/Fitnessraums (der Raum ist aktuell leer)
Sonstige allgemeine Ausstattung und Informationen:
- Großzügiger Wohn- und Essbereich mit Kamin (2020)
- Hochwertige Fliesen in Bädern sowie im Eingangsbereich
- Moderne Terrassenflächen (2020/2021) mit Überdachung (2024)
- Ausgebautes Dachgeschoss
- Brunnenpumpe im ehemaligen Heizungsraum
- Warmwasseraufbereitung über Durchlauferhitzer
- Innenwanddämmung nachträglich vorgenommen (innerhalb der letzten ca. 20 Jahre)
- Gemietete PV-Anlage (Details zur Übernahme noch zu klären)
- Garagen- und Außenstellplatz
- Großzügiger Kellerbereich mit viel Platz und Potenzial
- Begonnener Rückbau des sanierungsbedürftigen Schwimmbades
- Sofort beziehbar
- Grundstück über Teilungserklärung geregelt (keine klassische WEG, keine gemeinsamen Rücklagen)
Lage
Die Doppelhaushälfte befindet sich in einer angenehm ruhigen Wohnlage von Bürstadt-Bobstadt, einem familienfreundlichen Ortsteil mit gewachsenem Charakter. Hier verbindet sich die entspannte Atmosphäre einer kleinen Gemeinde mit der Nähe zu mehreren Städten der Metropolregion Rhein-Neckar.
In nur wenigen Minuten erreichen Sie Einkaufsmöglichkeiten, Schulen, Kindergärten sowie vielfältige Freizeitangebote. Die umliegenden Felder und Grünflächen laden zu Spaziergängen, Radtouren oder sportlichen Aktivitäten ein – ideal für alle, die Wert auf Natur und Ruhe legen.
Gleichzeitig profitieren Sie von der hervorragenden Verkehrsanbindung: Mannheim und Ludwigshafen sind in ca. 20–25 Minuten erreichbar, ebenso Worms und Lampertheim. Dadurch eignet sich der Standort perfekt für Pendler oder alle, die stadtnah wohnen und dennoch ein ruhiges Zuhause genießen möchten.
Sonstige Angaben
Finanzierungsberatung:
Damit Ihr Traum vom Eigenheim schnell und reibungslos Wirklichkeit wird, bieten wir Ihnen zusätzlich eine kostenlose Finanzierungsberatung an, um die besten Finanzierungsmöglichkeiten für Sie zu finden und individuelle Angebote zu vergleichen. Mit Zugriff auf eine Auswahl von bis zu 800 Banken können wir Ihnen optimale Konditionen und maßgeschneiderte Finanzierungslösungen bieten. Wir unterstützen Sie dabei, die perfekte Lösung für Ihre finanzielle Situation zu ermitteln – selbstverständlich unverbindlich und kostenfrei.
Provision:
Wir weisen daraufhin, dass bei einer notariellen Beurkundung der Immobilie eine Provision in Höhe von 3,57% inkl. 19% Mehrwertsteuer für den Käufer fällig wird.
Haftungsausschluss:
Eine Haftung für die Richtigkeit oder Vollständigkeit der Angaben wird nicht übernommen. Alle Angaben erfolgten auf Grundlage der Informationen unseres Kunden. Alle Immobilienangebote sind freibleibend und vorbehaltlich Irrtümer, Zwischenverkauf- und -vermietung oder sonstiger Zwischenverwertung.
Unser Service für Sie:
Sie sind auf der Suche nach einer Immobilie?
Gerne nehmen wir hierfür Ihr Suchprofil auf und werden Ihnen bei der Suche nach einer geeigneten Immobilie behilflich sein.
Sie sind Immobilieneigentümer und planen Ihre Immobilie oder Grundstück zu verkaufen?
Lassen Sie sich gerne von uns eine kostenlose Immobilienwertermittlung erstellen, hierfür arbeiten wir mit dem Marktführer und Spezialisten für Wertermittlungen zusammen.
Sprechen Sie uns hierzu an oder schreiben uns eine Email.
Gerne führen wir mit Ihnen eine individuelle Einzelbesichtigung durch. Vereinbaren Sie hierzu einen Besichtigungstermin mit uns. Wir freuen uns auf Sie.
Adresse
68642 Bürstadt
Interessante Orte
Preis- und Lageinformationen
Preistrend für Bestandsimmobilien in Bürstadt