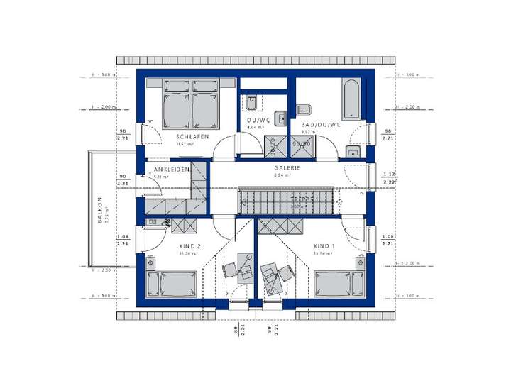
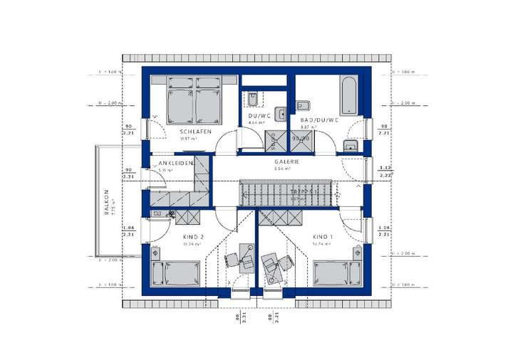
Das EDITION 145 von Bien-Zenker besticht durch sein elegantes, unaufdringliches Design, das sich harmonisch in sowohl ländliche als auch urbane Wohngebiete einfügt. Auf einer großzügigen Wohnfläche von 145 m² und einem durchdachten Raumkonzept bietet dieses Fertighaus alle Annehmlichkeiten, die Sie sich wünschen. Im Erdgeschoss erwartet Sie ein offener Wohn-, Ess- und Kochbereich, der zum Verweilen einlädt und durch viel Tageslicht besticht. Ergänzt wird dieser Bereich durch ein helles Homeoffice, sodass Sie Arbeit und Freizeit ideal miteinander verbinden können. Im Obergeschoss finden Sie drei gemütliche Schlafzimmer und zwei moderne Badezimmer, die Ihnen und Ihrer Familie ausreichend Raum für Privatsphäre und Entspannung bieten. Hier wird jeder Bewohner seinen persönlichen Lieblingsplatz finden, um sich zurückzuziehen und wohlzufühlen.
Das Haus wird in der Ausbaustufe "Schlüsselfertig" angeboten, was bedeutet, dass Sie sich um nichts kümmern müssen. Bien-Zenker übernimmt den kompletten Bauprozess - vom Fundament bis zur letzten Schraube. Sie sparen Zeit und Nerven, während wir für Sie Ihr Zuhause schaffen. Sobald alles fertiggestellt ist, können Sie direkt einziehen und die Vorfreude auf ein neues Kapitel in Ihrem Leben genießen.
Die Marke Bien-Zenker ist nicht nur ein Hausanbieter, sondern ein Partner für die ganze Familie. Mit über 80.000 gebauten Häusern und mehr als 700 Mitarbeitenden blickt Bien-Zenker auf eine über 115-jährige Erfolgsgeschichte zurück. Hier wird jede Baufamilie individuell beraten und unterstützt, sodass der Traum vom eigenen Heim Wirklichkeit wird. Durch wohngesunde Materialien und innovative Standards ist jedes Bien-Zenker Haus perfekt für die Zukunft gerüstet.
Grundrisse und Abbildungen können Extras zeigen. Flächenangaben nach DIN 277.
Bien-Zenker: Ihr individuelles Traumhaus in Gardelegen
39638 Gardelegen
Die vollständige Adresse der Immobilie erhalten Sie vom Anbieter.
Auf Karte anzeigen
Die vollständige Adresse der Immobilie erhalten Sie vom Anbieter.
Finanzierungszertifikat
In nur zwei Minuten zu Ihrem persönlichen Finanzierungszertifkat.
Infos
| Haustyp | Einfamilienhaus |
|---|---|
| Etagenzahl | 2 |
| Wohnfläche ca. | 147 m2 |
| Nutzfläche | 147 m2 |
| Grundstücksfläche | 760 m2 |
| Zimmer | 4 |
| Schlafzimmer | 3 |
| Badezimmer | 2 |
Kosten
| Kaufpreis |
391.453 € |
|---|
Finanzierungsrechner:
Kaufpreis:
600.000 €
Eigenkapital:
600.000 €
Monatliche Rate
0 €
Effektiver Jahreszins
0 %
Sollzinsbindung
10 Jahre
Bausubstanz & Energieausweis
| Baujahr | unbekannt |
|---|---|
| Bauphase | Haus in Planung (projektiert) |
| Qualität der Austattung | Gehoben |
| Heizungsart | Wärmepumpe |
Beschreibung des Objekts
Ausstattung
Der Grundriss des EDITION 145 ist optimal auf die Bedürfnisse von Familien abgestimmt. Mit vier Zimmern, darunter drei Schlafzimmer und ein weiteres helles Homeoffice, bietet das Haus ausreichend Raum für individuelle Entfaltung und Rückzug. Die beiden Badezimmer sind strategisch platziert, um sowohl den privaten Schlafbereich als auch den gemeinsamen Bereich im Erdgeschoss zu bedienen. So wird der Alltag für alle Familienmitglieder angenehm und harmonisch gestaltet.
Zu den besonderen Komfortdetails zählen die lichtdurchfluteten Räume, die durch große Fensterflächen entstehen und eine einladende Atmosphäre schaffen. Der offene Wohn-, Ess- und Kochbereich ist der perfekte Ort für gesellige Abende mit der Familie oder Freunden. Genießen Sie die warmen Sonnenstrahlen auf der Terrasse oder im gepflegten Garten, der sich auf dem großzügigen Grundstück von 730 m² erstreckt. Ein zusätzlicher Abstellraum sorgt dafür, dass Sie auch praktischen Stauraum für Ihre Alltagsgegenstände haben und somit Ordnung im Zuhause herrscht.
Mit der Ausbaustufe "Schlüsselfertig" profitieren Sie von einem stressfreien Bauprozess, bei dem Sie sich um nichts kümmern müssen. Der Preis umfasst den kompletten Innenausbau, sodass Sie nur noch in Ihr fertiges Zuhause einziehen müssen. Dieser Komfort spart Ihnen Zeit und Energie, und Sie können sich ganz auf Ihren Umzug und die Gestaltung Ihres neuen Lebensraumes konzentrieren. Damit wird der Bauablauf für Sie so angenehm wie möglich gestaltet, sodass Sie die Vorfreude auf Ihr neues Zuhause in vollen Zügen genießen können.
Lage
Gardelegen bietet Ihnen eine ideale Lebensumgebung, die nicht nur durch ihre ruhige, ländliche Atmosphäre besticht, sondern auch durch eine hervorragende Anbindung an die Infrastruktur. In der unmittelbaren Umgebung finden Sie zahlreiche Bildungseinrichtungen, darunter Schulen und Kindergärten, die allesamt gut erreichbar sind. Für die Gesundheitsversorgung stehen Ihnen verschiedene Arztpraxen und Apotheken zur Verfügung, die eine umfassende medizinische Betreuung garantieren.
Einkaufsmöglichkeiten sind ebenfalls in der Nähe vorhanden, sodass Sie Ihren täglichen Bedarf bequem decken können. Ob Supermärkte, Fachgeschäfte oder Wochenmärkte - hier ist für jeden etwas dabei. Auch die Freizeitgestaltung kommt nicht zu kurz. Parks, Sportanlagen und kulturelle Angebote laden zu Aktivitäten im Freien ein und fördern ein aktives Sozialleben.
Die Verkehrsanbindung in Gardelegen ist durch den öffentlichen Nahverkehr sowie die Nähe zur Autobahn ausgezeichnet. So gelangen Sie schnell und unkompliziert in die umliegenden Städte und Regionen, was Ihnen zusätzliche Flexibilität für Beruf und Freizeit eröffnet. Die Kombination aus ländlichem Charme und urbanen Annehmlichkeiten macht Gardelegen zu einem perfekten Standort für Ihr neues Zuhause.
Sonstige Angaben
Das Grundstück ist im obigen Preis nicht mit eingerechnet.
Zusätzliche Baunebenkosten müssen noch hinzugerechnet werden. Hierüber beraten wir Sie gern.
Wir bieten Ihnen interessante Finanzierungsmöglichkeiten inklusive Beantragung aller Fördermittel!
Sie möchten dieses Haus besichtigen: Rufen Sie uns an und zufriedene Kunden zeigen ihnen gern ihr Haus!
Gute Beratung ist der Anfang von Allem. Deshalb analysieren wir gemeinsam mit Ihnen Ihre Vorstellungen, Wünsche und Bedürfnisse und finden so das für Sie und Ihre Familie passende BIEN ZENKER Haus.
Interessiert? Rufen Sie gleich an und vereinbaren Sie noch heute einen kostenlosen und unverbindlichen Beratungstermin unter 0151/42448360
Grundriss
EDITION 145 V2 KAT DG 15218,10
>
>
EDITION 145 V2 SD EG 16472,100
>
>
Adresse
39638 Gardelegen
Interessante Orte
Preis- und Lageinformationen
Preistrend für Bestandsimmobilien in Gardelegen