WELCOME HOME. WELCOME TO YOUR FUTURE.
Dein Zuhause ist mehr als vier Wände – es ist dein Rückzugsort, dein Investment, dein neuer Lebensabschnitt.
White&Black macht Wohneigentum bezahlbar, modern und flexibel.
Jetzt ist der richtige Moment, um anzukommen.
🧩 „Ihr Haus. Ihr Stil. Schlüsselfertig wie ein passendes Puzzleteil.“
65626 Birlenbach
Die vollständige Adresse der Immobilie erhalten Sie vom Anbieter.
Auf Karte anzeigen
Die vollständige Adresse der Immobilie erhalten Sie vom Anbieter.
Finanzierungszertifikat
In nur zwei Minuten zu Ihrem persönlichen Finanzierungszertifkat.
Infos
| Haustyp | Einfamilienhaus |
|---|---|
| Wohnfläche ca. | 160 m2 |
| Nutzfläche | 0 m2 |
| Grundstücksfläche | 664 m2 |
| Zimmer | 4 |
| Schlafzimmer | 3 |
| Badezimmer | 1 |
| Anzahl Garage/Stellplatz | 0 |
Kosten
| Kaufpreis |
447.000 € |
|---|---|
| Provision | Nein |
Finanzierungsrechner:
Kaufpreis:
600.000 €
Eigenkapital:
600.000 €
Monatliche Rate
0 €
Effektiver Jahreszins
0 %
Sollzinsbindung
10 Jahre
Bausubstanz & Energieausweis
| Baujahr | 2026 |
|---|---|
| Bauphase | Haus in Planung (projektiert) |
| Qualität der Austattung | Gehoben |
| Heizungsart | Wärmepumpe |
Beschreibung des Objekts
Ausstattung
THINK BLACK – All in.
- Schlüsselfertig & sofort bezugsbereit – ohne zusätzlichen Aufwand
- Kompletter Innenausbau – keine Handwerkersuche, kein Planungsstress
- Durchdachte Raumaufteilung – moderne Wohnkonzepte für jede Lebensphase
- Innovative Haustechnik – zukunftssicheres Wohnen mit höchster Effizienz
- Maximaler Komfort – alles fertig, alles drin
Für alle, die einfach einziehen und losleben wollen!
Lage
Dieses Hausprojekt ist auf einem realen Baugrundstück vorgesehen oder befindet sich aktuell in der Planungsphase – wahlweise kann es selbstverständlich auch auf Ihrem eigenen Grundstück realisiert werden. Das Grundstück erwerben Sie direkt vom jeweiligen Eigentümer. Der angegebene Hauspreis versteht sich inkl. Grundstück.
Aus Datenschutz- und Diskretionsgründen können Grundstücksdaten nur im Rahmen eines persönlichen Gesprächs weitergegeben werden.
Gern unterstützen wir Sie bei der Suche nach einem passenden Bauplatz und beraten Sie individuell zu Ihrem Bauvorhaben – unverbindlich und persönlich. Eine Beratung können Sie im Musterhaus Mülheim-Kärlich oder im Verkaufsbüro Wissen, Marktstraße 2, 57537 Wissen vereinbaren.
Jens Schwanke
Handy: 0170-8778132
Sonstige Angaben
Das Haus ist projektiert inkl. Grundstück. Das Grundstück wird in Kommission angeboten bzw. direkt von Dritten verkauft. Daher kann der genannte Preis aufgrund aktueller Marktsituationen schwanken.
Die Bauabwicklung kann kurzfristig nach Grundstückserwerb begonnen werden. Bilder zeigen möglicherweise Sonderausstattungen, die auf Wunsch gegen Aufspreis zusätzlich angeboten werden können.
Erhalte in deinem persönlichen Beratungsgespräch kostenlos alle wichtigen Informationen zu diesem Projekt, insbesondere: Lage und Bebauungsmöglichkeiten des Baugrundstücks, Baukosten-Kalkulation, Finanzierungs- u. Förderungsmöglichkeiten sowie detaillierte Architektur- uund Grundrissplanung.
Wir freuen uns darauf, dich beraten zu dürfen!
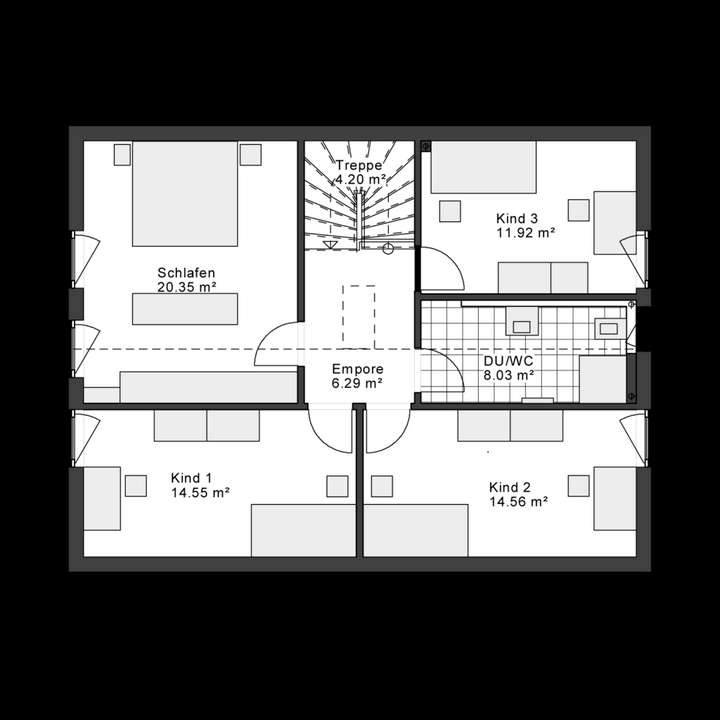
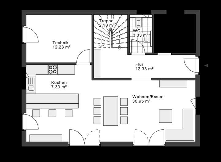
Grundriss
Grundriss EG
>
>
Grundriss OG
>
>
Adresse
65626 Birlenbach
Interessante Orte
Preis- und Lageinformationen
Preistrend für Bestandsimmobilien in Birlenbach