In einer der begehrtesten Lagen von Hofheim am Taunus, eingebettet in Hanglage mit fantastischem Weitblick bis in den Odenwald, befindet sich diese außergewöhnliche Architekten-Villa aus dem Jahr 1965. Schon beim Betreten wird deutlich: Dieses Haus war seiner Zeit weit voraus – mit einer offenen Architektur, großzügigen Raumhöhen und einer modernen Formsprache, die noch heute beeindruckt.
Die Villa wurde vom damaligen Eigentümer, einem Architekten, individuell entworfen und in massiver Bauweise errichtet. Auf einer Wohnfläche von ca. 174 m² und einem beeindruckenden Grundstück von 937 m² bietet sie viel Platz und gestalterische Freiheit. Eine Modernisierung im Jahr 1990 sowie der Einbau einer neuen Gasheizung im Jahr 2015 bilden die Grundlage für eine solide Substanz, die nun auf eine liebevolle und stilvolle Renovierung wartet.
Das Raumkonzept ist außergewöhnlich: Mehrere Split-Level-Ebenen, zwei Galerien und verglaste Hausseiten über zwei Etagen schaffen eine beeindruckende Offenheit und ein besonderes Wohngefühl. Die zahlreichen, großen Fensterflächen sorgen für einen fantastischen Lichteinfall und öffnen den Blick in die Natur – auf der einen Seite in den angrenzenden Wald, auf der anderen Seite in die weite Landschaft bis hin zum Odenwald.
Die großzügige Wohnhalle mit Galerie bildet das Herzstück des Hauses. Von hier aus gelangt man auf die naturnahe Terrasse und in den Garten, der auch aus einem Fabelmärchen stammen könnte. Die Villa verfügt über insgesamt 8 Zimmer, darunter mehrere Wohn- und Schlafräume, zwei Badezimmer, ein Gäste-WC und eine Sauna.
Die flexible Raumaufteilung mit Faltschiebetüren erlaubt es, Bereiche offen zu gestalten oder als separate Zimmer abzutrennen – ideal für Familien, Homeoffice oder kreative Nutzungskonzepte.
Der Keller ist trocken und bietet etwas Staufläche, ergänzend zu dem Vorratsraum, welcher sich direkt neben der Küche befinde.. Die Außenhülle befindet sich in einem soliden Zustand, und das große Grundstück eröffnet vielseitige Erweiterungs- oder Gestaltungsoptionen.
Mit einer fachgerechten Sanierung lässt sich hier ein architektonisches Juwel zu neuem Leben erwecken – eine perfekte Kombination aus Charakter, Aussicht und architektonischer Raffinesse in einer der besten Wohnlagen Hofheims.
Einzigartige Architekten-Villa mit Panorama & Potenzial – Traumlage in Hofheim am Taunus
65719 Hofheim am Taunus
Die vollständige Adresse der Immobilie erhalten Sie vom Anbieter.
Auf Karte anzeigen
Die vollständige Adresse der Immobilie erhalten Sie vom Anbieter.
Finanzierungszertifikat
In nur zwei Minuten zu Ihrem persönlichen Finanzierungszertifkat.
Infos
| Haustyp | Villa |
|---|---|
| Etagenzahl | 3 |
| Wohnfläche ca. | 174 m2 |
| Grundstücksfläche | 937 m2 |
| Zimmer | 8 |
| Schlafzimmer | 6 |
| Badezimmer | 2 |
| Garage/Stellplatz | Carport |
| Anzahl Garage/Stellplatz | 1 |
Kosten
| Kaufpreis |
1.380.000 € |
|---|---|
| Provision |
3,57% inkl. Mehrwertsteuer pro Partei Hiermit möchten wir auf die Tätigkeit des Maklers unsererseits hinweisen, welche eine Provisionszahlung von Ihnen in Höhe von 3,57% inkl. ges. MWST beinhaltet. |
Finanzierungsrechner:
Kaufpreis:
600.000 €
Eigenkapital:
600.000 €
Monatliche Rate
0 €
Effektiver Jahreszins
0 %
Sollzinsbindung
10 Jahre
Bausubstanz & Energieausweis
| Baujahr | 1965 |
|---|---|
| Objektzustand | Renovierungsbedürftig |
| Heizungsart | Fußbodenheizung |
| Wesentliche Energieträger | Gas |
| Energieausweis | liegt vor |
| Energieausweistyp | Bedarfsausweis |
| Energieverbrauchskennwert | 236,0 kWh/(m²*a) |
| Energieeffizienzklasse | G |
236,0
kWh/(m²*a)
Energieeffizienzklasse G
- A+
- A
- B
- C
- D
- E
- F
- G
- H
- 0
- 25
- 50
- 75
- 100
- 125
- 150
- 175
- 200
- 225
- >250
Beschreibung des Objekts
Ausstattung
Alle Highlights auf einen Blick:
+ Architekten-Villa aus 1965 – vom Eigentümer selbst geplant
+ Ca. 174 m² Wohnfläche auf 937 m² Grundstück
+ 8 Zimmer, 2 Badezimmer + Gäste-WC
+ Offene Split-Level-Bauweise mit Galerien und Faltschiebetüren
+ Verglaste Front über zwei Etagen – außergewöhnlicher Lichteinfall
+ Großzügige Wohnhalle mit Galerie
+ Begehbare Ankleide sowie Vorratsraum
+ Sauna im Obergeschoss
+ Neue Gasheizung (2015) + Solarthermie auf dem Dach
+ Modernisierung 1990, solide Bausubstanz
+ Trockener Keller, Massivbauweise
+ Fantastischer Weitblick bis in den Odenwald
+ Ruhige Hanglage am Waldrand
+ Großes Grundstück mit Erweiterungspotenzial
+ Renovierungsbedürftig, aber mit außergewöhnlichem architektonischen Potenzial
Lage
In einer der begehrtesten Wohnlagen des Rhein-Main-Gebiets – hoch über Hofheim am Taunus – liegt diese außergewöhnliche Architekten-Villa in einer ruhigen und grünen Umgebung. Die Stadt Hofheim gilt als einer der attraktivsten Wohnorte im Main-Taunus-Kreis und überzeugt durch ihre perfekte Kombination aus Natur, urbanem Komfort und exzellenter Infrastruktur. Der Blick von hier oben reicht weit über die Stadt bis hin zum Odenwald und schafft ein einzigartiges Wohngefühl zwischen Ruhe und Weitblick.
Der charmante Stadtkern von Hofheim lädt mit seinen verwinkelten Gassen, Fachwerkhäusern, kleinen Boutiquen und gemütlichen Cafés zum Flanieren und Verweilen ein. Hier trifft historischer Charme auf modernes Leben – ergänzt durch ein breites Angebot an Einkaufsmöglichkeiten, Gastronomie und kulturellen Veranstaltungen. Auch Wochenmärkte, Feste und zahlreiche Vereine sorgen für eine lebendige Gemeinschaft.
Für Familien bietet Hofheim eine ausgezeichnete Bildungs- und Betreuungsstruktur. Neben mehreren Kindergärten, Grundschulen und weiterführenden Schulen gibt es in unmittelbarer Nähe auch renommierte Einrichtungen wie die Main-Taunus-Schule und verschiedene Privatschulen. Ergänzt wird das Angebot durch Musikschulen, Sportvereine und Freizeitmöglichkeiten für Kinder und Jugendliche.
Die Lage am Waldrand und in Hanglage ist ideal für Naturliebhaber: Wander- und Radwege beginnen praktisch vor der Haustür und führen direkt in die umliegenden Taunuswälder. Gleichzeitig ist die Innenstadt schnell erreichbar, sodass Sie hier die seltene Kombination aus Ruhe, Privatsphäre und Nähe zum Stadtleben genießen.
Verkehrstechnisch ist Hofheim hervorragend angebunden: Über die nahegelegenen Autobahnen A66 und A3 erreichen Sie Frankfurt am Main, den Flughafen, Wiesbaden und Mainz in weniger als 25 Minuten. Auch der Hofheimer Bahnhof mit S-Bahn-Anschluss nach Frankfurt, Wiesbaden und zum Flughafen liegt nur wenige Fahrminuten entfernt.
Insgesamt vereint dieser Standort alles, was anspruchsvolles Wohnen ausmacht: eine exklusive und ruhige Lage am Hang, eine fantastische Aussicht, kulturelle Vielfalt, beste Infrastruktur und eine perfekte Anbindung an die gesamte Rhein-Main-Region.
Sonstige Angaben
Stellen Sie uns bei Interesse gerne eine Anfrage! Im Anschluss bekommen Sie ein ausführliches Exposé mit weiteren Unterlagen (Energieausweis, Wohnflächenberechnung etc.) und Objektbildern zur Verfügung gestellt.
HAFTUNG: Wir weisen darauf hin, dass die von uns weitergegebenen Objektinformationen, Unterlagen, Pläne etc. ausschließlich auf Informationen basieren, die uns vom Verkäufer zur Verfügung gestellt wurden. Wir übernehmen keine Gewähr für die Vollständigkeit, Richtigkeit und Aktualität dieser Angaben. Alle Immobilienangebote sind freibleibend und vorbehaltlich Irrtümer, Zwischenverkauf- und Vermietung oder sonstiger Zwischenverwertung. Die Bilder im Exposé können vom tatsächlichen Ergebnis abweichen.
GELDWÄSCHE: Wir weisen darauf hin, dass Immobilienmaklerunternehmen nach § § 1, 2 Abs. 1 Nr. 10, 4 Abs. 3 Geldwäschegesetz (GwG) vor dem Entstehen einer Geschäftsbeziehung zur Feststellung und Überprüfung des Vertragspartners verpflichtet sind. Dies erfolgt z.B. durch eine Kopie Ihres Personalausweises. Die Angaben hieraus müssen gemäß Geldwäschegesetz fünf Jahre aufbewahrt werden.
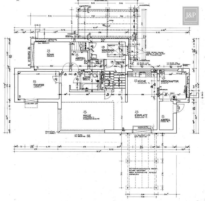
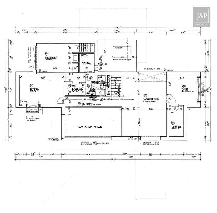
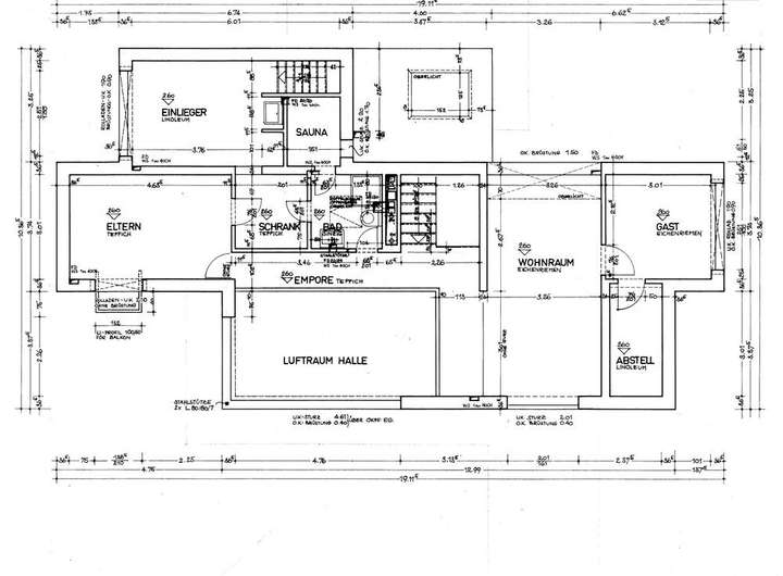
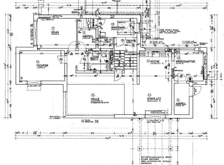
Grundriss
Erdgeschoss
>
>
1. Obergeschoss
>
>
Adresse
65719 Hofheim am Taunus
Interessante Orte
Preis- und Lageinformationen
Preistrend für Bestandsimmobilien in Hofheim am Taunus