Ein neues Kapitel beginnt für Ihre Familie: Gestalten Sie Ihr Traumhaus für gemeinsame Erinnerungen und ein harmonisches Zuhause. Entdecken Sie die vielfältigen Möglichkeiten eines maßgeschneiderten Neubaus, der Ihren Bedürfnissen und Wünschen gerecht wird. Gestalten Sie Ihr neues Zuhause nach Ihren Vorstellungen und schaffen Sie einen Ort, an dem Ihre Familie wachsen und sich weiterentwickeln kann.
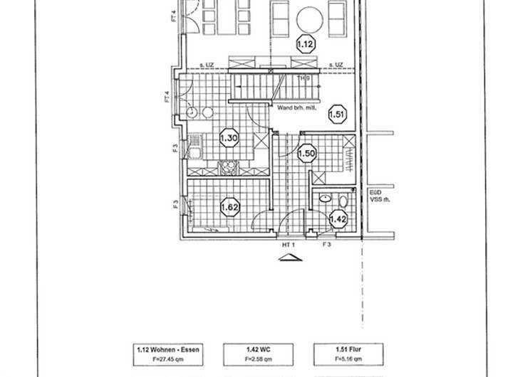
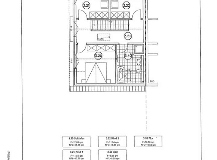
Der Grundriss des Hauses wird so gestaltet, dass er den Anforderungen Ihrer Familie gerecht wird. Große offene Wohnbereiche bieten ausreichend Platz für gemeinsame Aktivitäten und lassen viel natürliches Licht herein. Ein separates Spielzimmer oder ein Kinderzimmer sorgt dafür, dass Ihre Kinder sich entfalten können.
Das energieeffiziente Haus wurde unter Verwendung hochwertiger Materialien und modernster Technologie gebaut. Durch die besonders gute ökologische Bauweise und Wärmedämmung sowie das äußerst effiziente Heizungs- und Kühlungssystem können Sie das ganze Jahr über ein angenehmes Raumklima genießen und gleichzeitig Ihre Energiekosten minimieren. Eine Solaranlage auf dem Dach gewährleistet eine nachhaltige Energieversorgung, während energieeffiziente Geräte den Verbrauch weiter reduzieren.
Dieses Wohlfühl-Haus ermöglicht es Ihnen, Ihre Zukunft in vollen Zügen zu genießen. Es entspricht nicht nur Ihren Bedürfnissen und Vorlieben, sondern ist auch umweltfreundlich und kosteneffizient. Es bietet Ihnen und Ihrer Familie ein komfortables und nachhaltiges Zuhause, das Sie für lange Zeit genießen können.
Lassen Sie sich von uns bei jedem Schritt begleiten, um Ihr Haus zu einem Ort zu machen, der Ihre Zukunftsträume erfüllt.
Mit Präzision zu Ihrem Traumhaus
55278 Friesenheim
Die vollständige Adresse der Immobilie erhalten Sie vom Anbieter.
Auf Karte anzeigen
Die vollständige Adresse der Immobilie erhalten Sie vom Anbieter.
Finanzierungszertifikat
In nur zwei Minuten zu Ihrem persönlichen Finanzierungszertifkat.
Infos
| Haustyp | Doppelhaushaelfte |
|---|---|
| Wohnfläche ca. | 117 m2 |
| Nutzfläche | 0 m2 |
| Grundstücksfläche | 295 m2 |
| Zimmer | 4 |
| Schlafzimmer | 3 |
| Badezimmer | 2 |
| Anzahl Garage/Stellplatz | 0 |
Kosten
| Kaufpreis |
540.263 € |
|---|---|
| Provision | Nein |
Finanzierungsrechner:
Kaufpreis:
600.000 €
Eigenkapital:
600.000 €
Monatliche Rate
0 €
Effektiver Jahreszins
0 %
Sollzinsbindung
10 Jahre
Bausubstanz & Energieausweis
| Baujahr | 2026 |
|---|---|
| Bauphase | Haus in Planung (projektiert) |
| Qualität der Austattung | Gehoben |
| Heizungsart | Wärmepumpe |
Beschreibung des Objekts
Ausstattung
Haus inkl. Bodenplatte, Heizung, Sanitär, Elektrik, Estrich und fertiger Bäder. Mit wenig Eigenleistung ins neue Zuhause. Grundstück ist natürlich im Preis enthalten.
Lage
Hahnheim ist eine Ortsgemeinde im Landkreis Mainz-Bingen in Rheinland-Pfalz. Sie gehört der Verbandsgemeinde Rhein-Selz an, die ihren Verwaltungssitz in der Stadt Oppenheim hat.
Sonstige Angaben
Das Haus ist projektiert inkl. Grundstück. Das Grundstück wird in Kommission angeboten bzw. direkt von Dritten verkauft. Daher kann der o.g. Preis aufgrund aktueller Marktsituationen schwanken.
Die Bauabwicklung kann kurzfristig nach Grundstückserwerb begonnen werden. Bilder zeigen möglicherweise Sonderausstattungen, die auf Wunsch gegen Preiskorrektur zusätzlich angeboten werden können.
Fragen Sie nach unserem kostenlosen Beratungs-Service und erhalten Sie in einem persönlichen Gespräch kostenlos alle wichtigen Informationen zu diesem Projekt, insbesondere: Lage und Bebauungsmöglichkeiten des Baugrundstücks, Baukosten-Kalkulation, Finanzierungs- u. Förderungs-Möglichkeiten, detaillierte Architektur- u. Grundrissplanung, etc.
Wir freuen uns, Sie ausführlich beraten zu dürfen!
Anbauteile, Carport, Garage und Keller können Extras sein, die als Sonderausstattung angeboten werden. Abbildungen, Grundrisse und Flächenangaben sind beispielhaft und können Extras zeigen. Flächenangaben nach DIN 277.
Adresse
55278 Friesenheim
Interessante Orte
Preis- und Lageinformationen
Preistrend für Bestandsimmobilien in Friesenheim