Dieses im Jahr neunzehnhundertvierzig erbaute Einfamilienhaus beeindruckt durch seine großzügige Raumaufteilung, den gepflegten Zustand und die vielseitigen Nutzungsmöglichkeiten. Mit einer Wohnfläche von rund 250 Quadratmetern und einem Grundstück von etwa 359 Quadratmetern bietet die Immobilie ausreichend Platz für eine große Familie oder mehrere Generationen unter einem Dach.
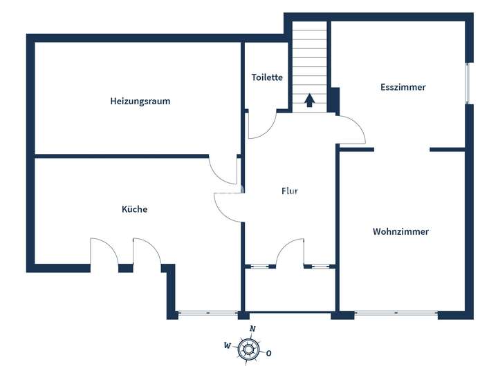
Bereits beim Betreten des Hauses fällt die durchdachte Raumstruktur auf. Im Erdgeschoss erwartet Sie ein einladender Flur, von dem aus das helle Wohnzimmer und das angrenzende Esszimmer zugänglich sind. Beide Räume strahlen eine behagliche Atmosphäre aus und eignen sich ideal für gesellige Stunden mit Familie und Freunden. Die angrenzende Küche überzeugt mit ihrer praktischen Aufteilung und bietet genügend Raum für eine große Essecke. Zudem befindet sich auf dieser Etage ein separates Gäste-WC sowie ein Heizungsraum mit zusätzlichem Stauraum.
Das erste Obergeschoss beherbergt den privaten Rückzugsbereich der Familie. Hier stehen drei Kinderzimmer, ein Elternschlafzimmer mit angrenzendem Ankleidezimmer sowie zwei gepflegte Badezimmer zur Verfügung. Ein weiteres Zimmer und mehrere Abstellräume bieten flexible Nutzungsmöglichkeiten, etwa als Homeoffice oder Hobbyraum.
Das Dachgeschoss präsentiert sich mit einem großzügigen Wohnbereich und einer charmanten Loggia, die einen herrlichen Blick auf die Umgebung bietet. Diese Etage eignet sich hervorragend als separater Rückzugsort oder Gästeetage.
Die Ausstattung des Hauses ist solide und gepflegt: Holzfenster unterstreichen den klassischen Charakter, während die Fußböden mit Fliesen, Laminat und Auslegware gestaltet sind. Eine Gaszentralheizung aus dem Jahr zweitausendfünf sorgt über Flachheizkörper für wohlige Wärme. Der genaue Energieverbrauch kann dem Energieausweis entnommen werden.
Das Grundstück ist liebevoll angelegt und bietet mit seinen Gartenflächen Raum für Erholung und Freizeitgestaltung. Eine Garage sowie ein angrenzendes Nebengebäude komplettieren das Angebot und bieten praktischen Stauraum für Fahrzeuge, Werkzeuge oder Gartengeräte.
Die Immobilie befindet sich in einer ruhigen und gepflegten Wohnlage mit gewachsener Nachbarschaft. Einkaufsmöglichkeiten, Schulen und öffentliche Verkehrsmittel sind bequem erreichbar, sodass das Haus sowohl für Familien als auch für Berufspendler attraktiv ist.
Dieses großzügige Einfamilienhaus verbindet klassischen Charme mit viel Platz und Flexibilität – ideal für alle, die Wohnen und Leben harmonisch vereinen möchten. Die Übergabe kann nach Vereinbarung erfolgen.
Großzügiges Einfamilienhaus mit charmantem Charakter und viel Platz für die Familie
31249 Hohenhameln
Die vollständige Adresse der Immobilie erhalten Sie vom Anbieter.
Auf Karte anzeigen
Die vollständige Adresse der Immobilie erhalten Sie vom Anbieter.
Finanzierungszertifikat
In nur zwei Minuten zu Ihrem persönlichen Finanzierungszertifkat.
Infos
| Haustyp | Einfamilienhaus |
|---|---|
| Etagenzahl | 2 |
| Wohnfläche ca. | 250 m2 |
| Grundstücksfläche | 359 m2 |
| Bezugsfrei ab | Nach Vereinbarung |
| Zimmer | 8 |
| Schlafzimmer | 6 |
| Badezimmer | 2 |
| Garage/Stellplatz | Garage |
| Anzahl Garage/Stellplatz | 1 |
Kosten
| Kaufpreis |
249.000 € |
|---|---|
| Provision |
3,57% vom Kaufpreis inkl. MwSt., mindestens jedoch 4250,00€. Sofern der erzielte Kaufpreis unter 119047,62€ liegt, gilt eine fest vereinbarte Mindestprovision i.H.v. 4250,00€ inkl. MwSt. |
Finanzierungsrechner:
Kaufpreis:
600.000 €
Eigenkapital:
600.000 €
Monatliche Rate
0 €
Effektiver Jahreszins
0 %
Sollzinsbindung
10 Jahre
Bausubstanz & Energieausweis
| Baujahr | 1940 |
|---|---|
| Objektzustand | Gepflegt |
| Qualität der Austattung | Normal |
| Heizungsart | Zentralheizung |
| Wesentliche Energieträger | Gas |
| Energieausweis | liegt vor |
| Energieausweistyp | Bedarfsausweis |
| Energieverbrauchskennwert | 140,2 kWh/(m²*a) |
| Energieeffizienzklasse | E |
140,2
kWh/(m²*a)
Energieeffizienzklasse E
- A+
- A
- B
- C
- D
- E
- F
- G
- H
- 0
- 25
- 50
- 75
- 100
- 125
- 150
- 175
- 200
- 225
- >250
Ausstattung
Lage
Die Immobilie befindet sich in einer ruhigen und ländlichen Lage im Ortsteil Bierbergen der Gemeinde Hohenhameln, eingebettet in die typische norddeutsche Kulturlandschaft. Die Lage ist geprägt von einer beschaulichen Dorfatmosphäre und der unmittelbaren Nähe zu weitläufigen Feldern und Natur.
Die Infrastruktur in Bierbergen selbst ist grundlegend. Für den täglichen Bedarf sind oft kleinere, lokal geprägte Einrichtungen wie ein Dorfladen oder ein Gasthof vorhanden. Für umfassendere Einkaufsmöglichkeiten, Supermärkte, Ärzte, Apotheken und weitere Dienstleistungen sind die Bewohner auf die Kernorte der Gemeinde Hohenhameln oder auf die umliegenden größeren Gemeinden und Städte wie Peine angewiesen. Diese sind in etwa 10 bis 20 Fahrminuten erreichbar und bieten alle notwendigen Einrichtungen von Bildung über Gesundheit bis hin zu Einzelhandel.
Die Anbindung an das überregionale Verkehrsnetz ist moderat. Die Immobilie profitiert von der Nähe zu Bundesstraßen (z.B. B65), die eine Verbindung zu den umliegenden Städten wie Peine, Hildesheim oder Hannover ermöglichen. Die nächstgelegenen Autobahnauffahrten (z.B. A2) sind in etwa 20-30 Fahrminuten erreichbar. Der öffentliche Personennahverkehr ist dem ländlichen Charakter entsprechend weniger dicht ausgebaut; Busverbindungen zu den nächstgrößeren Orten sind jedoch vorhanden.
Für Freizeit und Erholung bietet die Lage unzählige Möglichkeiten, die direkt vor der Haustür beginnen. Die umliegende Natur mit ihren Feldern, Wäldern und Flüssen (z.B. Fuhse) lädt zu ausgedehnten Spaziergängen, Radtouren und Outdoor-Aktivitäten ein. Sportvereine und Dorfgemeinschaften tragen zum sozialen Leben im Ort bei und bieten Möglichkeiten zur sozialen Integration und zur Ausübung gemeinsamer Hobbys.
Zusammenfassend bietet die Immobilie eine sehr ruhige und naturnahe Wohnlage im Ortsteil Bierbergen, die die Vorteile eines entschleunigten Lebens im Grünen mit einer guten Erreichbarkeit der notwendigen Infrastruktur in den umliegenden Städten und Gemeinden verbindet. Sie ist ideal für Personen, die die Stille und die Nähe zur Natur schätzen und eine Auszeit vom städtischen Trubel suchen.
Mit ÖPNV besteht folgende Anbindung:
Bus | Soßmar Ortsmitte (circa 650 Meter)
Bahnhof | Algermissen (circa 6 Kilometer)
Sonstige Angaben
Unsere Makler beraten Sie gerne persönlich per Telefon oder Videokonferenz. Schicken Sie uns einfach eine Anfrage über ImmoScout24 und registrieren Sie sich auf unserer Kundenplattform myHomeday. Einen Link zu myHomeday erhalten Sie automatisch nach Ihrer Anfrage per E-Mail. Dort können Sie die Adresse und Dokumente der Immobilie freischalten sowie direkt einen Beratungstermin buchen.
Adresse
31249 Hohenhameln
Interessante Orte
Preis- und Lageinformationen
Preistrend für Bestandsimmobilien in Hohenhameln