Die zum Verkauf stehenden, solide erbauten, z. T. vermieteten Mehrfamilienhäuser Edith-Stein-Weg 13 und 15, mit 13 attraktiven Wohneinheiten befinden sich in einem normalem Gesamtzustand.
BITTE BEACHTEN SIE: Unser Angebot bezieht sich auf den Verkauf von 1 1 (ELF) WOHNEINHEITEN.
*** Haus Nummer 13 DG 48,48 m² WFL (WHG 16) links ist verkauft.
*** Haus Nummer 15 KG 62,77 m² WFL (WHG 1) rechts ist verkauft.
Die zum Teil renovierungsbedürftigen Wohnungen zeichnen sich durch funktionale, moderne Raumaufteilung und eine freundliche Wohnatmosphäre aus.
Das Anwesen ist nach Wohnungseigentümergesetzt (WEG) geteilt.
Das Gebäude stehen auf einem großzügigen Grundstück, das viel Abstand zu den Nachbarbebauungen bietet und den Bewohnern ein hohes Maß an Privatsphäre gewährt. Weitläufige Grünflächen und ein gewachsener Baumbestand schaffen eine angenehme, naturnahe Umgebung.
Für gemeinsame Nutzung bietet das Grundstück genügend Platz für Aufenthaltsbereiche, Spielmöglichkeiten oder individuelle Gartengestaltung.
Besonders komfortabel ist die hauseigene Tiefgarage, die den Bewohnern sichere Stellplätze und direkten Zugang zum Gebäude ermöglicht. Eine breite Zufahrt sorgt für hohe Benutzerfreundlichkeit und Sicherheit.
Insgesamt überzeugt das Objekt durch eine solide Bauweise, sowie eine ruhige und zugleich gut angebundene Lage.
Monatliche Netto-IST-Mieteinnahme (Leerstand 6 WE) = 6.186,00 €
Monatliche Netto-SOLL-Mieteinnahme (bei voller Vermietung) von 11 Wohneinheiten = 10.923,36 €
***ZWEI zentral gelegene Mehrfamilienhäuser mit 11-Wohneinheiten und Tiefgarage***
63512 Hainburg
Die vollständige Adresse der Immobilie erhalten Sie vom Anbieter.
Auf Karte anzeigen
Die vollständige Adresse der Immobilie erhalten Sie vom Anbieter.
Finanzierungszertifikat
In nur zwei Minuten zu Ihrem persönlichen Finanzierungszertifkat.
Infos
| Haustyp | Mehrfamilienhaus |
|---|---|
| Etagenzahl | 3 |
| Wohnfläche ca. | 910 m2 |
| Grundstücksfläche | 1.230 m2 |
| Zimmer | 36 |
| Badezimmer | 11 |
| Garage/Stellplatz | Tiefgarage |
Kosten
| Kaufpreis |
1.995.000 € |
|---|---|
| Provision |
5,95% inkl. MWST |
Finanzierungsrechner:
Kaufpreis:
600.000 €
Eigenkapital:
600.000 €
Monatliche Rate
0 €
Effektiver Jahreszins
0 %
Sollzinsbindung
10 Jahre
Bausubstanz & Energieausweis
| Baujahr | unbekannt |
|---|---|
| Wesentliche Energieträger | Gas |
| Energieausweis | liegt vor |
| Energieausweistyp | Bedarfsausweis |
| Energieverbrauchskennwert | 105,1 kWh/(m²*a) |
| Energieeffizienzklasse | D |
105,1
kWh/(m²*a)
Energieeffizienzklasse D
- A+
- A
- B
- C
- D
- E
- F
- G
- H
- 0
- 25
- 50
- 75
- 100
- 125
- 150
- 175
- 200
- 225
- >250
Beschreibung des Objekts
Ausstattung
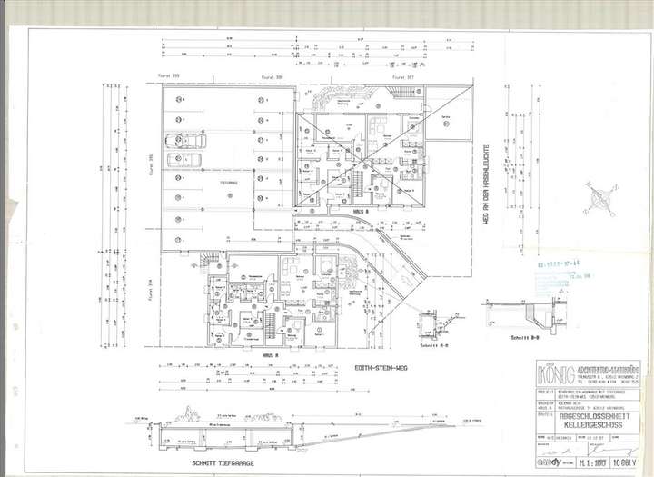
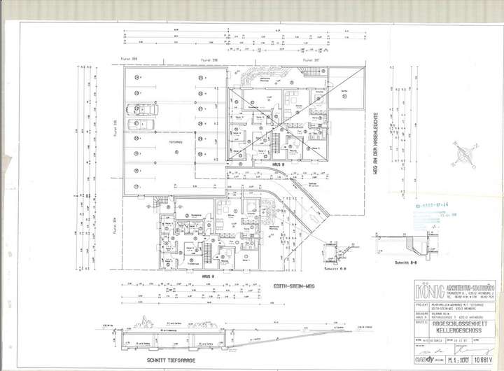
* Tiefgarage mit 10 TG -PKW- Stellplätzen zu je 15.000,--€
* zwei Gebäude mit gesamt 13 nach WEG geteilten Wohneinheiten.
BITTE BEACHTEN SIE: Unser Angebot bezieht sich auf den Verkauf von 1 1 (ELF) WOHNEINHEITEN.
*** Haus Nummer 13 DG 48,48 m² WFL (WHG 16) links ist verkauft.
*** Haus Nummer 15 KG 62,77 m² WFL (WHG 1) rechts ist verkauft.
Lage
Hainburg bietet eine sehr gute Infrastruktur mit allen Schulen, KITA, KIGA, viele Sportmöglichkeiten,
Sehr guter Anschluss an öffentliche Verkehrsmittel. BAB 3 in ca. 5 min erreichbar; zum Airport Rhein- Main und zur Stadt FFM oder OF benötigen Sie ca. 20 Autominuten.
Sonstige Angaben
HINWEIS!
Eigentümerangaben
Wir weisen darauf hin, dass die von uns weitergegebenen Objektinformationen, Unterlagen, Pläne etc. vom Veräußerer bzw. von einem Veräußerer beauftragten Dritten stammen, oder Vermieter stammen. Eine Haftung für die Richtigkeit oder Vollständigkeit der Angaben übernehmen wir daher nicht. Es obliegt daher unseren Kunden die darin enthaltenen Objektinformationen und Angaben auf ihre Richtigkeit hin zu überprüfen. Die Angebote des Maklers sind freibleibend und unverbindlich, Zwischenverkauf-, Vermietung und Verpachtung bleiben vorbehalten.
-----------
Wir bitten um Verständnis, dass wir Anfragen nur bearbeiten können, wenn wir folgende Angaben von Ihnen haben:
Name, Vorname, Anschrift, Telefon-Nr., Mobil-Nr., E-mail-Adresse.
Das Geldwäschegesetz (GwG) verpflichtet Makler zur Dokumentationspflicht über ihre Kundenkontakte vor Begründung einer Geschäftsbeziehung. Hierzu müssen wir die Daten Ihres Personalausweises festhalten. Dies kann erfolgen durch eine von Ihnen eingereichte Kopie oder durch ein Foto des Personalausweises. Diese können Sie uns gerne schon mit Ihrer Anfrage per e-mail zukommen lassen. Die Dokumente müssen mindestens fünf Jahre lang aufbewahrt werden. Wir bitten um Ihr Verständnis.
Selbstverständlich eröffnen sich mit dem Kauf einer Immobilie auch Fragen, die in keinem Exposé beantwortet werden können. Wir stehen Ihnen deshalb gerne und kompetent für nähere Informationen sowie für einen Besichtigungstermin zur Verfügung.
Weitere Dokumente
EnergieausweisEnergieausweis
Grundriss
Grundriss EG
>
>
Grundriss DG, OG und Schnitt
>
>
Grundriss Kellergeschoss
>
>
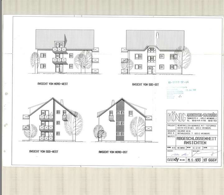
Ansichten
>
>
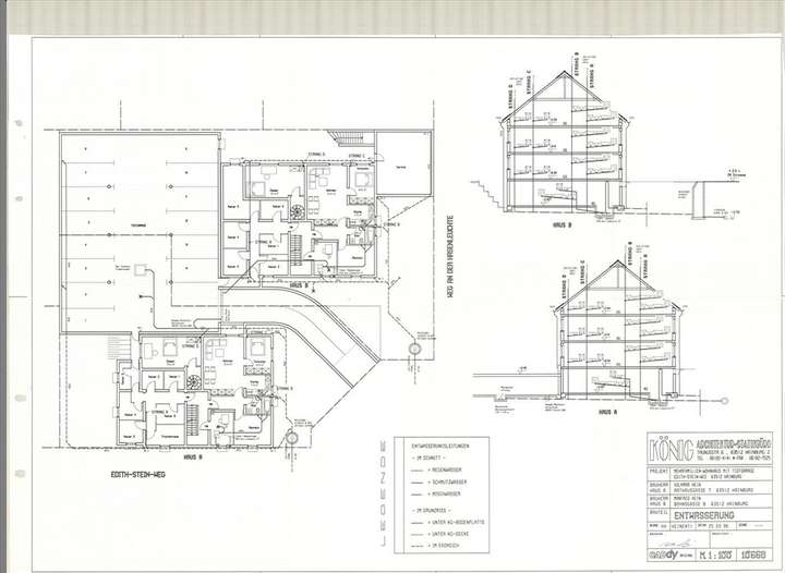
Entwässerung
>
>
Flurkarte_Edith-Stein-Weg
>
>
Adresse
63512 Hainburg
Interessante Orte
Preis- und Lageinformationen
Preistrend für Bestandsimmobilien in Hainburg