Willkommen in Ihrer neuen Doppelhaushälfte in Rödermark, die ganz nach Ihren individuellen Wünschen und Vorstellungen projektiert wird. Mit 6 Zimmern und einer großzügigen Wohnfläche von 124 m² auf einem 280 m² großen Grundstück bietet dieses Haus ausreichend Platz für die ganze Familie. Die durchdachte Raumaufteilung erstreckt sich über drei Etagen und umfasst vier Schlafzimmer, ein modernes Badezimmer mit Dusche, Wanne und Fenster sowie ein zusätzliches Gäste-WC. Hier wohnen Sie komfortabel und genießen die Vorzüge eines individuell gestalteten Zuhauses.
Die hochwertigen Bodenbeläge aus Fliesen, Laminat und Teppichboden sorgen nicht nur für eine ansprechende Optik, sondern bieten auch unterschiedliche Vorteile: Fliesen sind pflegeleicht und ideal für Feuchträume, Laminat verleiht eine wohnliche Atmosphäre und Teppichboden sorgt für zusätzliche Gemütlichkeit. Die effiziente Wärmepumpe als Befeuerungsart sorgt für ein angenehmes Raumklima und reduziert die Heizkosten, während der KFW55 Standard für hervorragende Energieeffizienz steht.
Genießen Sie die Vorzüge eines individuellen Bauprojekts, bei dem allkauf Ihnen mit einem umfassenden Dienstleistungspaket zur Seite steht. Das Paket Active Time für Ambitionierte ist bereits im Preis enthalten und ermöglicht es Ihnen, selbst kreativ zu werden, während wir die wichtigsten Installationen für Sie übernehmen.
Lassen Sie sich von den vielfältigen Möglichkeiten begeistern und verwirklichen Sie Ihren Traum vom Eigenheim in Rödermark!
Ihre Doppelhaushälfte in Rödermark - inkl. Bodenplatte und Grundstück!
63322 Rödermark
Die vollständige Adresse der Immobilie erhalten Sie vom Anbieter.
Auf Karte anzeigen
Die vollständige Adresse der Immobilie erhalten Sie vom Anbieter.
Finanzierungszertifikat
In nur zwei Minuten zu Ihrem persönlichen Finanzierungszertifkat.
Infos
| Haustyp | Doppelhaushaelfte |
|---|---|
| Etagenzahl | 3 |
| Wohnfläche ca. | 124 m2 |
| Grundstücksfläche | 280 m2 |
| Zimmer | 6 |
| Schlafzimmer | 4 |
| Badezimmer | 1 |
Kosten
| Kaufpreis |
555.000 € |
|---|
Finanzierungsrechner:
Kaufpreis:
600.000 €
Eigenkapital:
600.000 €
Monatliche Rate
0 €
Effektiver Jahreszins
0 %
Sollzinsbindung
10 Jahre
Bausubstanz & Energieausweis
| Baujahr | 2026 |
|---|---|
| Bauphase | Haus in Planung (projektiert) |
| Heizungsart | Wärmepumpe |
Beschreibung des Objekts
Ausstattung
Das Haus wird technikfertig angeboten. Das Material zur Fertigstellung ist bereits im Preis komplett enthalten.
Gerne bauen wir das Haus, gegen Aufpreis, weiter aus.
Inklusiv-Leistungen:
- Architektenleistung
- Bau-Sicherheitspaket
- Heizungsanlage- und Elektropaket
- Dreifach verglaste Fenster inkl. Aluminiumrollläden
- Luft-Wasser-Wärmepumpe
- Echtholztreppe
- Bodenbeläge und Tapeten
- Luftdichtigkeitsmessung
- Lichte Raumhöhe von 2,75 m
- Dämm- und Beplankungspaket
- Haustechnik inkl. Rohrleitungen
- Kontrollierte Be- und Entlüftungsanlage mit Wärmerückgewinnung
- Sanitärobjekte
- Innentüren, Zargen und Fliesen
- Steckdosen
Alle Einzelheiten sind in unserer Baubeschreibung nachzulesen.
Lage
Das Haus ist auf einem realen Baugrundstück geplant oder auf einem Grundstück in einer Planungsphase. Das Grundstück erwerben Sie direkt vom Eigentümer. Bitte haben Sie Verständnis, dass wir ohne ein persönliches Gespräch keine Grundstücksdaten weiterleiten. Gern sind wir bei der Wahl Ihres Traumgrundstückes behilflich.
Natürlich können wir Ihren Haustraum auch auf einem anderen Grundstück realisieren, lassen Sie sich dazu in einem unverbindlichen Gespräch zu Ihrem Bauvorhaben beraten.
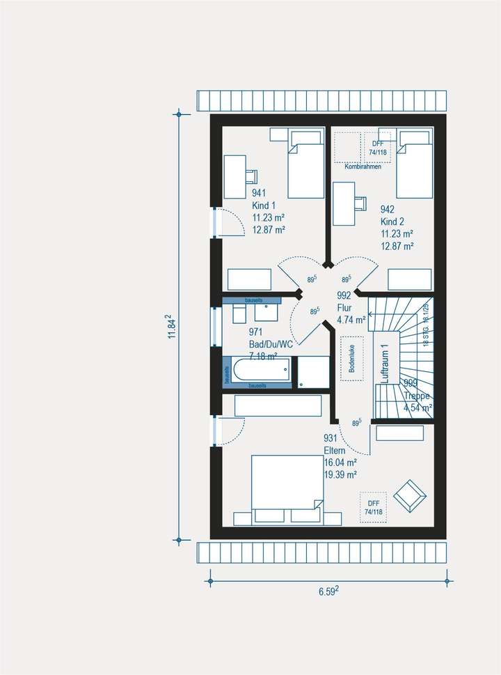
Grundriss
Grundriss
>
>
Grundriss
>
>
Grundriss
>
>
Adresse
63322 Rödermark
Interessante Orte
Preis- und Lageinformationen
Preistrend für Bestandsimmobilien in Rödermark