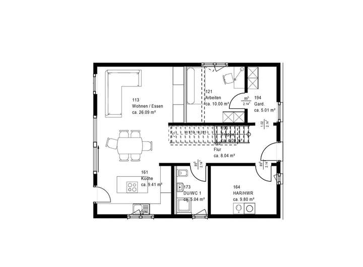
Harmonisch präsentiert sich dieser stilvolle Satteldachklassiker. Unter dem zeitlosen Dach warten rund 152 m² Wohnfläche auf zwei Ebenen darauf, bezogen und mit Leben erfüllt zu werden. Das Erdgeschoss überzeugt mit einer durchdachten Raumaufteilung, die Funktionalität und Wohnqualität gleichermaßen in den Mittelpunkt stellt. Ein vielseitig nutzbares Arbeitszimmer, der Hauswirtschaftsraum, das Duschbad sowie der offene Wohn- und Essbereich bieten viel Platz für das Familienleben und ermöglichen optional auch ein barrierefreies Wohnen auf einer Ebene.
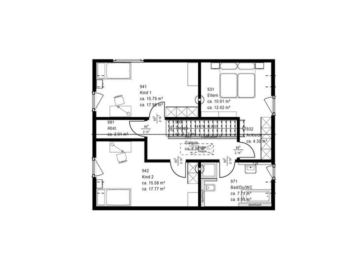
Eine gerade Treppe führt stilvoll in das Dachgeschoss mit Elternschlafzimmer und zwei gleich großen Kinderzimmern. Abgerundet wird das Raumangebot in der oberen Etage durch ein großzügiges Badezimmer mit Dusche, Wanne und WC sowie einen praktischen Abstellraum.
Stilvolles Eigenheim mit Preisvorteil - Grundstück inklusive.
35510 Butzbach
Die vollständige Adresse der Immobilie erhalten Sie vom Anbieter.
Auf Karte anzeigen
Die vollständige Adresse der Immobilie erhalten Sie vom Anbieter.
Finanzierungszertifikat
In nur zwei Minuten zu Ihrem persönlichen Finanzierungszertifkat.
Infos
| Haustyp | Einfamilienhaus |
|---|---|
| Etagenzahl | 2 |
| Wohnfläche ca. | 152 m2 |
| Grundstücksfläche | 1.005 m2 |
| Zimmer | 5 |
| Schlafzimmer | 3 |
| Badezimmer | 1 |
Kosten
| Kaufpreis |
519.000 € |
|---|---|
| Provision | Nein |
Finanzierungsrechner:
Kaufpreis:
600.000 €
Eigenkapital:
600.000 €
Monatliche Rate
0 €
Effektiver Jahreszins
0 %
Sollzinsbindung
10 Jahre
Bausubstanz & Energieausweis
| Baujahr | unbekannt |
|---|---|
| Bauphase | Haus in Planung (projektiert) |
| Qualität der Austattung | Gehoben |
Beschreibung des Objekts
Ausstattung
Unter anderem sind nachfolgende Leistungen im berechneten Hauspreis (Ausbaustufe: "einzugsfertig") enthalten:
+ Architektenleistung
+ Bodengutachten
+ 2,80 m Raumhöhe
+ Elektrische Aluminiumrollläden
+ Zertifizierte Nachhaltigkeit
+ Frischluftwärmetechnik von PROXON
+ Sockeldämmung
+ Einbau der Sanitärobjekte
+ Verlegung von Boden- und Wandfliesen
+ Installation von Türen und Türzargen
+ Innenfensterbänke
+ Bauendreinigung vor Hausübergabe
***Der gezeigte Grundriss dient als Beispiel und kann ohne zusätzliche Kosten individuell angepasst werden, sofern die Gesamtwohn- bzw. bebaute Fläche unverändert bleibt.***
Lage
Butzbach liegt im Herzen von Hessen, am Rande des Taunus, und bietet eine attraktive Kombination aus naturnahem Wohnen und verkehrsgünstiger Lage. Die Stadt ist von einer reizvollen Landschaft mit Wäldern, Feldern und Hügeln umgeben - ideal für Spaziergänge, Radtouren und Erholung im Grünen. Gleichzeitig ist Butzbach hervorragend angebunden: Die Autobahn A5 sowie eine direkte Bahnverbindung ermöglichen schnelle Wege nach Gießen, Frankfurt am Main und ins gesamte Rhein-Main-Gebiet. So verbindet Butzbach die Vorteile ländlicher Ruhe mit urbaner Erreichbarkeit - ein idealer Wohnort für Pendler, Familien und Naturliebhaber.
Sonstige Angaben
Der ausgewiesene Kaufpreis umfasst das Grundstück und das geplante Haus. Nicht enthalten sind Abrisskosten des Bestandsgebäudes sowie die allgemein anfallenden Baunebenkosten.
Innovative Pioniere, die bereits 1928 den Grundstein für unseren heutigen Erfolg legten, und erfahrene Mitarbeiter, die Tag für Tag daran arbeiten, unsere hohen Qualitätsziele zu übertreffen - das ist OKAL! Vor mehr als 90 Jahren gegründet, streben wir auch heute noch danach, neuste Entwicklungen als Vorreiter der Branche voranzutreiben und unseren Kunden so einen vollumfänglichen Service anzubieten, der unsere jahrelange Erfahrung mit den modernen Ideen von morgen vereint. Nachhaltig, innovativ, verlässlich - für uns nicht nur leere Worte, sondern gelebte Philosophie, die sich in einem jeden OKAL-Premiumhaus widerspiegelt.
Weitere Dokumente
Darum OKALGrundriss
Grundriss DG
>
>
Grundriss EG
>
>
Adresse
35510 Butzbach
Interessante Orte
Preis- und Lageinformationen
Preistrend für Bestandsimmobilien in Butzbach