Das stilvolle Altbau-Mehrfamilienhaus wurde im Jahr 1864 im Herzen der Mainzer Innenstadt erbaut und befindet sich in einer geschützten Denkmalzone. Das Haus wurde im Jahr 1987 kernsaniert und verfügt über einen eigenen Zugang zum Spielplatz Hopfengarten. Modernisierungsarbeiten wurden von den Eigentümern stets zeitgemäß durchgeführt und das Haus präsentiert sich in einem top Zustand.
In den Jahren 1987 bis 2024 wurden folgende Modernisierungs- bzw. Renovierungsarbeiten durchgeführt:
- 2019 neue Gas-Heizungsanlage, Buderus mit Brennwerttechnik
- 2024 neue Klingel-/Sprechanlage
- 2013/2023 neue Bodenbeläge.
Das Gesamtgebäude wurde 2006 in Wohnungseigentum aufgeteilt und besteht aus 4 Eigentumswohnungen, 1 Gewerbeeinheit/Laden und einem Innenhof sowie einem Carport mit 3 Stellplätzen. Zum Haus gehören auch 2 Tiefgaragen-Stellplätze im Parkhaus Holzhof.
Sie verfügen im Erdgeschoss über eine kleine Gewerbeeinheit mit ca. 56,38 m² Nutzfläche, 1 Zimmer, Teeküche und WC sowie Ausgang zum Innenhof, die an einen Mainzer Handwerksbetrieb vermietet ist.
Im 1. Obergeschoss befindet sich eine attraktive 3 Zimmer-Wohnung mit ca. 98,51 m² Wohnfläche. Die Wohnung verfügt über eine Diele mit Gäste-WC, 3 Zimmer, eine Küche mit Balkon zum Innenhof sowie eine ca. 30 m² traumhaften Terrasse und ein schickes Tageslicht-Bad.
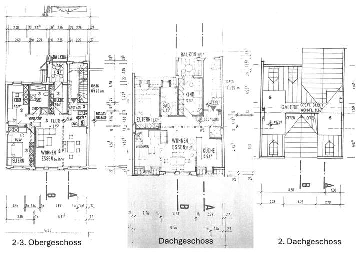
Im 2. und 3. Obergeschoss befindet sich jeweils eine 3 Zimmer-Wohnung mit einer Größe von ca. 89,51 m² Wohnfläche. Beide Wohnungen verfügen über ein offenes Wohn-/Esszimmer, ein Schlafzimmer, ein Arbeitszimmer, eine Küche mit Balkon zum Innenhof, ein Tageslichtbad, ein Gäste-WC und eine kleine Diele.
Im Dachgeschoss befindet sich eine Maisonetten-Wohnung mit leichten Schrägen, offenem Giebel und ca. 85,57 m² Wohnfläche aufgeteilt in großzügigen Wohn-/Essbereich mit offener Küche und Galerie, Schlafzimmer, Arbeitszimmer mit Ausgang zum Balkon, Tageslichtbad und kleine Diele mit Gäste-WC.
Das Gebäude ist komplett mit einem Gewölbekeller unterkellert. Zu jeder Wohneinheit gehört ein Kellerraum.
Alle Einheiten sind an solvente Mieter vermietet. Die Jahresnettomiete beträgt zurzeit 57.750,00 €.
Nachfolgend die Aufteilung und Nettoeinnahmen des Gebäudes:
Mieteinheit-/Lage, Wohnfläche, Einzug, Stellplatz
EG, Laden, ca. 56,38 m², 01.07.2025, Carport rechts/frei
1.OG, 3 ZKBBT, ca. 98,85 m², 01.02.2013, Carport links
2.OG, 3 ZKBB, ca. 89,51 m², 16.01.2024, Tiefgarage
3.OG, 3 ZKBB, ca. 89,51 m², 01.02.2023, Tiefgarage
DG, 3 ZKBB. ca. 85,57 m², 15.10.2025, Carport Mitte
Monatsnettomiete: 4.812,50 €
Jahresnettomiete: 57.750,00 €
Die tatsächliche Nettokaltmiete weicht von der marktüblich erzielbaren Nettokaltmiete (mit 14,00 €/m²) in der Nachbarschaft jährlich um -16.680,00 € ab bzw. ein Mietsteigerungspotenzial auf Jahresnettomiete: 74.430,00 € ist noch möglich.
Super Kapitalanlage in Mainz-Altstadt: MFH mit 4 Wohneinheiten, 1 Laden und 5 Stellplätzen
Schönbornstrasse 0,
55116 Mainz
Auf Karte anzeigen
Finanzierungszertifikat
In nur zwei Minuten zu Ihrem persönlichen Finanzierungszertifkat.
Infos
| Haustyp | Mehrfamilienhaus |
|---|---|
| Etagenzahl | 4 |
| Wohnfläche ca. | 363 m2 |
| Nutzfläche | 56,38 m2 |
| Grundstücksfläche | 240 m2 |
| Bezugsfrei ab | nach Vereinbarung |
| Zimmer | 13 |
| Schlafzimmer | 8 |
| Badezimmer | 4 |
| Anzahl Garage/Stellplatz | 5 |
Kosten
| Kaufpreis |
1.550.000 € |
|---|---|
| Provision |
5,95 % inkl. MwSt. |
| Mieteinnahmen | 4.813 € |
Finanzierungsrechner:
Kaufpreis:
600.000 €
Eigenkapital:
600.000 €
Monatliche Rate
0 €
Effektiver Jahreszins
0 %
Sollzinsbindung
10 Jahre
Bausubstanz & Energieausweis
| Baujahr | 1987 |
|---|---|
| Letzte Sanierung | 2024 |
| Objektzustand | Saniert |
| Qualität der Austattung | Gehoben |
| Heizungsart | Zentralheizung |
| Wesentliche Energieträger | Erdgas schwer |
| Energieausweis | liegt vor |
| Energieausweistyp | Verbrauchsausweis |
| Energieverbrauchskennwert | 104,7 kWh/(m²*a) |
| Energieeffizienzklasse | D |
104,7
kWh/(m²*a)
Energieeffizienzklasse D
- A+
- A
- B
- C
- D
- E
- F
- G
- H
- 0
- 25
- 50
- 75
- 100
- 125
- 150
- 175
- 200
- 225
- >250
Beschreibung des Objekts
Ausstattung
Das Gebäude wurde in massiver Bauweise errichtet und 1987 qualitativ kernsaniert sowie hochwertig und geschmackvoll ausgestattet. Alle Einheiten sind an die moderne Gas-Zentralheizung angeschlossen und mit weißen Holzsprossenfenstern mit Isolierverglasung ohne Rollläden ausgestattet. Das noble Granittreppenhaus mit Metallgeländer rundet das Gesamtbild ab.
Alle Wohnungen sind mit weißen Innentüren sowie Laminat- und Granitböden versehen. Die schicken Tageslichtbäder mit hellen Wandfliesen verfügen jeweils über Wannen, Duschen/ Echtglasduschkabinen, Waschmaschinenanschluss und zwei große Spiegel. In den Gäste-WC´s ist eine elektrische Belüftung vorhanden.
Die modernen Wohnungen sind zum Teil mit Deckenspots, großen Design-Heizkörpern und Einbauschränken (Diele und Schlafzimmer im DG) ausgestattet.
Alle Wohnungen befinden sich in einem sehr gepflegten Zustand.
Der Laden im EG ist ebenso mit weißen Innentüren und Granitboden versehen.
In jeder Wohnung ist ein Kabel-TV Anschluss vorhanden. Die Gebühren für Treppenhausreinigung sind bereits in den Nebenkosten enthalten.
Lage
Begehrte Wohnlage in beliebter Mainzer Altstadt, Nähe Süd-Bahnhof und direkt in der Citymeile.
Alle Einkaufsmöglichkeiten, Bushaltestelle sowie Schulen und Kindergärten befinden sich im näheren Umfeld. Den Süd-Bahnhof erreicht man fußläufig in ca. 5 Minuten.
Sehr gute Vermietungssituation: Die Medien- und Studentenstadt Mainz kann auf eine äußerst positive Entwicklung in den vergangenen Jahren zurückschauen. Mainz ist auch der Hauptstandort der Firma BioNTech.
Sonstige Angaben
Besichtigung ist nach Rücksprache möglich. Überzeugen Sie sich von der Lage und von den Vorteilen dieser erstklassigen Immobilie vor Ort.
Hinweis:
Sollten Sie Interesse an der o.g. Immobilie haben, dann hinterlassen Sie bitte bei Ihrer E-Mail Anfrage Ihre Telefonnummer, damit wir direkt mit Ihnen Kontakt aufnehmen können.
Grundriss
Grundrisse, KG, EG, 1.OG
>
>
Grundrisse, 2-3.OG, DG, 2.DG
>
>
Adresse
Schönbornstrasse 0, 55116 Mainz
Interessante Orte
Preis- und Lageinformationen
Preistrend für Bestandsimmobilien in Altstadt