Mit diesem Verkaufsangebot präsentieren wir Ihnen eine gepflegte Anlageimmobilie mit 8 vermieteten Wohneinheiten in massiver Bauweise, gelegen im Hamburger Stadtteil Kirchwerder.
Die Immobilie befindet sich auf einem großzügigen Grundstück von ca. 1.267 m².
Über die Zufahrt erreichen Sie die acht freistehenden PKW-Stellplätze sowie eine Garagenanlage mit insgesamt fünf weiteren Stellplätzen.
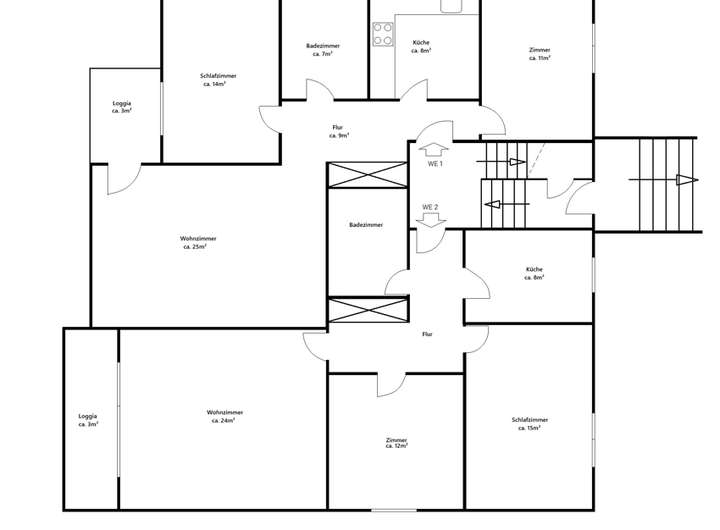
Die Wohneinheiten verteilen sich auf zwei Gebäudeteile:
Der erste Gebäudeteil wurde im Jahr 1930 errichtet und umfasst zwei Wohneinheiten mit jeweils eigenen Hauseingängen. Im Jahr 2010 wurde eine Fassaden- und Kellerdämmung nachgerüstet. Darüber hinaus wurde im Jahr 2023 die Dachgeschosswohnung grundsaniert was unter anderem die Erneuerung der Grundrissgestaltung, Fenster, Elektrik, Fußböden und eine neue Einbauküche umfasste.
Der angrenzende zweigeschossige Gebäudeteil entstand 1980 und beherbergt 6 weitere Wohneinheiten.
Im Jahr 2006 wurde die gesamte Fassade des Altbaus und des Anbaus versiegelt (Hydrophobierung).
Die Gesamtwohnfläche beträgt ca. 569,4 m² (laut Mietverträgen).
Eine detaillierte Mieterliste stellen wir Ihnen auf Anfrage gern zur Verfügung.
Das Kellergeschoss mit den einzelnen Mieterkellern, der Haustechnik sowie einem Fahrradabstellraum ist über einen separaten Zugang vom Hof aus erreichbar.
Die Immobilie wurde regelmäßig renoviert, modernisiert und befindet sich in einem sehr gepflegten Gesamtzustand.
Die Wohnungen sind gut geschnitten und verfügen über helle Bäder und Küchen.
Die Bodenbeläge sind mit Parkett, Vinyl und hellen Fliesen ausgestattet.
Bis auf die Dachgeschosswohnungen im Anbau verfügen alle Wohnungen über einen Balkon oder eine Terrasse mit Gartennutzung.
Die aktuelle Jahresnettokaltmiete (Stand 2025) beträgt EUR 79.202,40. Sämtliche Wohneinheiten sowie alle Stellplätze und Garagen sind vollständig vermietet.
Bei konkretem Interesse ist selbstverständlich eine Besichtigung vor Ort möglich.
Attraktives Zinshaus mit 8 Wohneinheiten in Kirchwerder!
21037 Hamburg
Die vollständige Adresse der Immobilie erhalten Sie vom Anbieter.
Auf Karte anzeigen
Die vollständige Adresse der Immobilie erhalten Sie vom Anbieter.
Finanzierungszertifikat
In nur zwei Minuten zu Ihrem persönlichen Finanzierungszertifkat.
Infos
| Haustyp | Mehrfamilienhaus |
|---|---|
| Wohnfläche ca. | 569 m2 |
| Grundstücksfläche | 1.267 m2 |
| Bezugsfrei ab | nach Absprache |
| Zimmer | 3 |
| Garage/Stellplatz | Garage |
| Anzahl Garage/Stellplatz | 5 |
Kosten
| Kaufpreis |
1.415.000 € |
|---|---|
| Provision |
7,14 % des Kaufpreises inkl. 19 % Ust. |
Finanzierungsrechner:
Kaufpreis:
600.000 €
Eigenkapital:
600.000 €
Monatliche Rate
0 €
Effektiver Jahreszins
0 %
Sollzinsbindung
10 Jahre
Bausubstanz & Energieausweis
| Baujahr | 1980 |
|---|---|
| Objektzustand | Modernisiert |
| Wesentliche Energieträger | Gas |
| Energieausweis | liegt vor |
| Energieausweistyp | Verbrauchsausweis |
| Energieverbrauchskennwert | 85,4 kWh/(m²*a) |
| Energieeffizienzklasse | C |
85,4
kWh/(m²*a)
Energieeffizienzklasse C
- A+
- A
- B
- C
- D
- E
- F
- G
- H
- 0
- 25
- 50
- 75
- 100
- 125
- 150
- 175
- 200
- 225
- >250
Beschreibung des Objekts
Ausstattung
Ausstattung Wohnungen:
• 3 × 2-Zimmer-Wohnung
• 5 × 3-Zimmer-Wohnung
• Duschbäder / Vollbäder (gepflegt und laufend modernisiert)
• Einbauküchen (gepflegt und laufend modernisiert)
• Drei Loggien und zwei Terrassen
• Je Wohnung ist 1 Abstellraum zugehörig
Baustoffe/Bauart:
Anbau mit 6 Wohneinheiten (Bj. 1980):
• Massive Bauweise (Kalksandstein und Ytong), Rotsteinverblend,
Stahlbetondecken
• Isolierverglaste Mahagoniholzfenster, Baujahr 1980
• Dacheindeckung mit Betonsteinpfannen in
Pappdocken
• Dachrinne und Fallrohre aus Zink.
Altbau mit 2 Wohneinheiten (Bj. 1930):
• Massive Bauweise
• Stahlträgerdecke KG/EG, Holzbalkendecke EG/DG, Dacheindeckung mit Betonsteinpfannen
Bj. 1980 in Pappdocken
• Fassaden und Kellerdämmung in 2010
• Dachrinnen und Fallrohre aus Zink
• Die Dachgeschosswohnung verfügt über Kunststofffenster mit Isolierverglasung, Bj. 2023.
• Abstellräume und Haustechnik mit separaten Zugang unter dem Gebäudeteil
Heizungsanlage:
• Gaszentralheizung Bj. 1999
• Die Warmwasseraufbereitung erfolgt über einzelne Durchlauferhitzer, welche sich im Badezimmer der jeweiligen Wohnungen befinden.
Baumaßnahmen und Renovierungen:
• 2010: Anbringung eines Wärmedämmverbundsystems (WDVS) im ersten Gebäudeteil (Altbau)
• 2014: Instandsetzung der Balkone sowie Erneuerung der Geländer
• 2020: Dachwartung inklusive Reinigung und anschließender Beschichtung der Zinkteile
• 2023: Umfassende Sanierung der Dachgeschosswohnung im ersten Gebäudeteil (Altbau), inklusive Einbau neuer Fenster
Lage
Das Objekt liegt im ländlich geprägten Hamburg-Kirchwerder, unweit des Zollenspieker-Elbdeichs und der Zollenspieker Fähre.
Kindergärten, Ärzte sowie die Grund- und Stadtteilschule Kirchwerder befinden sich in gut erreichbarer Nähe.
Einkaufsmöglichkeiten wie Rewe in Kirchwerder sowie Penny, Edeka und Aldi in Curslack/Neuengamme sind schnell erreichbar.
Weitere umfangreiche Einkaufsmöglichkeiten bietet Bergedorf mit der beliebten Einkaufsstraße „Sachsentor“.
Über die A 25 gelangt man in etwa 25 Minuten in die Hamburger Innenstadt.
Die Buslinien 124 und 120 sind fußläufig erreichbar und verbinden direkt mit dem S-Bahnhof Bergedorf sowie dem Hamburger Hauptbahnhof.
Sonstige Angaben
• Die Straße "Kirchenheerweg" ist endgültig hergestellt worden.
Der Anschluss an die öffentliche Versorgung für Strom, Gas, Wasser- und Abwasser, Telefon und Kabel-TV ist vorhanden.
• Die gesetzliche Dichtheitsprüfung der Abwasserleitungen erfolgte vor etwa 5 Jahren. Es sind keine Mängel bekannt.
• Das Grundstück ist voll erschlossen. Etwaige Sielbaubeiträge sind weder offen noch verrentet.
• Das Grundbuch wird lastenfrei in Abteilung II. und III. geliefert.
• Das Objekt ist komplett vermietet. Eine detaillierte Mieterliste oder Mietverträge übersenden wir Ihnen gern auf Anfrage.
• Baulasten: Gemäß Auskunft aus dem Baulastenverzeichnis sind keine Eintragungen vorhanden.
• Altlasten: Gemäß Auskunft aus dem Altlastenhinweiskataster sind keine Eintragungen vorhanden.
• Übergabe nach Absprache.
• Kaufnebenkosten: Die Grunderwerbssteuer (5,5 % des Kaufpreises) & Notar- und Gerichtskosten (ca. 1,6 % des Kaufpreises) sind vom Käufer zu tragen.
• Dieses Immobilienangebot ist provisionspflichtig für Käufer. Bei Abschluss eines notariellen Kaufvertrags zahlt der Käufer eine Maklercourtage von 7,14 % des Kaufpreises (inkl. gesetzlicher Umsatzsteuer). Die Zahlung erfolgt an die Firma Schneide GmbH, die einen direkten Anspruch auf diesen Betrag gegenüber des Vertragspartners hat.
• Aus Rücksicht auf die Privatsphäre der Mieter konnten keine aktuellen Innenaufnahmen gemacht werden.
Für weitere Informationen stehen wir Ihnen vorab gern zur Verfügung.
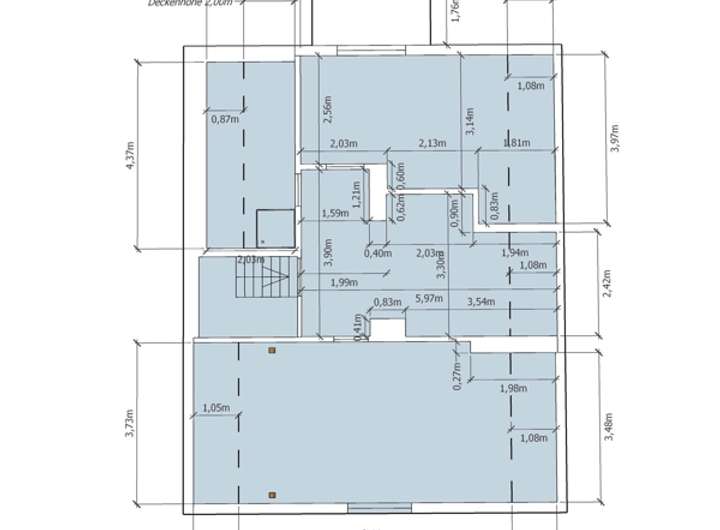
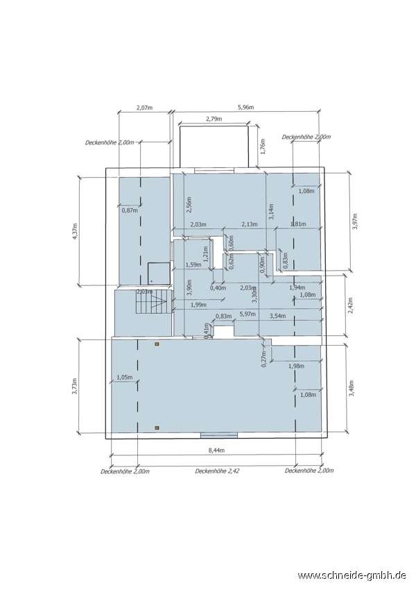
Grundriss
Erdgeschoss - WE 1 und WE 2
>
>
1. OG - WE 3 und WE 4
>
>
Dachgeschoss - WE 5 und WE 6
>
>
DG Ausbau (Altbau)
>
>
Adresse
21037 Hamburg
Interessante Orte
Preis- und Lageinformationen
Preistrend für Bestandsimmobilien in Kirchwerder