Dieses vollvermietete Mehrfamilienhaus besteht aus insgesamt 7 Wohneinheiten mit einer Gesamtwohnfläche von ca. 450,57 m². Das Haupthaus wurde im Jahr 1955 errichtet und umfasst 6 Wohneinheiten. Ergänzend dazu befindet sich ein Seitengebäude aus dem Jahr 1975 mit einer weiteren Wohneinheit auf dem Grundstück. Die Kombination aus kompakteren Appartements ab ca. 31 m² und größeren Wohneinheiten bis ca. 92 m² spricht eine breite und nachhaltige Mieterschaft an – von Singles bis hin zu Familien.
Das Objekt befindet sich in einem gepflegten Zustand. In den vergangenen Jahren wurden mehrere Wohneinheiten saniert und modern ausgestattet. Durch die Neuvermietungen wurde eine stabile Mietstruktur geschaffen, die bereits heute eine gesicherte Jahresnettokaltmiete von 67.432,56 Euro erwirtschaftet. Aufgrund der nach wie vor moderaten Miethöhen besteht weiteres Entwicklungspotenzial. Eine marktübliche Anpassung ermöglicht eine realistische Steigerung der Jahresmiete auf rund 70.500 Euro – damit lässt sich eine attraktive SOLL-Rendite von über 6 % erzielen.
Als besonderer Qualitätsfaktor ist die im Jahr 2022 installierte Wärmepumpentechnik hervorzuheben. Sie sorgt für eine moderne und energieeffiziente Gebäudeversorgung, senkt langfristig Betriebskosten und steigert die Zukunftssicherheit der Immobilie erheblich. Dies stellt einen entscheidenden Vorteil gegenüber vielen Anlagen vergleichbarer Baujahre dar.
Die Immobilie liegt in einer etablierten Wohnlage von Weiterstadt mit guter Vermietbarkeit und hohem Nachfragepotenzial. Kapitalanleger erhalten hier ein hervorragend aufgestelltes Bestandsobjekt mit attraktivem Cashflow ab dem ersten Tag und zusätzlicher Wertentwicklungsoption durch moderat anpassbare Mieten sowie bereits getätigte energetische Modernisierungsmaßnahmen.
Mehrfamilienhaus mit Wärmepumpe & Rendite 5,9 % in Weiterstadt
64331 Weiterstadt
Die vollständige Adresse der Immobilie erhalten Sie vom Anbieter.
Auf Karte anzeigen
Die vollständige Adresse der Immobilie erhalten Sie vom Anbieter.
Finanzierungszertifikat
In nur zwei Minuten zu Ihrem persönlichen Finanzierungszertifkat.
Infos
| Haustyp | Mehrfamilienhaus |
|---|---|
| Wohnfläche ca. | 450 m2 |
| Grundstücksfläche | 484 m2 |
| Zimmer | 20 |
Kosten
| Kaufpreis |
1.150.000 € |
|---|---|
| Provision |
5,95% des notariell beurkundeten Kaufpreises inkl. der gesetzl. MwSt. von z.Zt. 19% |
Finanzierungsrechner:
Kaufpreis:
600.000 €
Eigenkapital:
600.000 €
Monatliche Rate
0 €
Effektiver Jahreszins
0 %
Sollzinsbindung
10 Jahre
Bausubstanz & Energieausweis
| Baujahr | 1955 |
|---|---|
| Energieausweis | liegt vor |
| Energieausweistyp | Bedarfsausweis |
| Energieverbrauchskennwert | 211,0 kWh/(m²*a) |
Beschreibung des Objekts
Ausstattung
- 7 Wohneinheiten mit funktionalen Grundrissen
- Gesamtwohnfläche ca. 450,57 m²
- Wohnungsgrößen ca. 31 m² bis ca. 92 m²
- Moderne Wärmepumpenanlage (2022) – energieeffiziente Versorgung
- Teilweise sanierte und modern ausgestattete Wohnungen
- Voll vermietet mit solider Mieterstruktur
- Mehrere Garagen und zusätzliche Außenstellmöglichkeiten
- Kellerräume für jede Wohneinheit vorhanden
- Kunststofffenster überwiegend mit Rollläden
- Übliche Raumhöhen und gute Belichtungsverhältnisse
- Satteldachkonstruktion beim Haupthaus
- Gepflegter Allgemeinzustand der Immobilie
- Typische Wohnlage in einer gewachsenen Umgebung
Lage
Makrolage – Rhein-Main-Metropolregion
Weiterstadt liegt in der wirtschaftlich starken Metropolregion Frankfurt Rhein-Main und zählt zu den nachgefragten Wohnstandorten im südlichen Rhein-Main-Gebiet. Die Nähe zu Darmstadt sowie die hervorragende Verkehrsanbindung an die A5 und A67 ermöglichen eine schnelle Erreichbarkeit von Frankfurt, Wiesbaden und dem Flughafen Frankfurt. Die Region bietet eine hohe Arbeitsplatzdichte, ausgezeichnete Infrastruktur sowie ein stetig wachsendes Bevölkerungs- und Mietniveau.
Mikrolage – etablierte Wohnlage
Das Mehrfamilienhaus befindet sich in einer gewachsenen Wohnlage mit überwiegend wohnwirtschaftlicher Nachbarschaft. Einkaufsmöglichkeiten, Schulen, Ärzte und Nahversorger sind bequem erreichbar. Zudem besteht eine gute Anbindung an den öffentlichen Nahverkehr, wodurch Mieter auch ohne PKW mobil bleiben. Die ruhige, aber zentrale Lage sorgt für eine konstante Nachfrage und langfristige Vermietbarkeit.
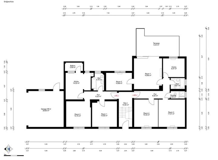
Grundriss
Haupthaus KG
>
>
Adresse
64331 Weiterstadt
Interessante Orte
Preis- und Lageinformationen
Preistrend für Bestandsimmobilien in Weiterstadt