Dieses freistehende, denkmalgeschützte Einfamilienhaus ist in architektonischer wie historischer Hinsicht ein echtes Unikat. Entworfen und erbaut in den Jahren 1928–1929 vom renommierten Bauhaus-Architekten Karl Schneider, zählt es bis heute zu den bedeutendsten Wohnbauten der klassischen Moderne in Hamburg. Unter dem Namen Haus Spörhase vielfach publiziert und wissenschaftlich dokumentiert, verbindet dieses Gebäude Baukunst, Geschichte und außergewöhnliches Potenzial – ein seltenes Angebot für Liebhaber anspruchsvoller Architektur. Das Haus befindet sich in absoluter Premiumlage von Groß Flottbek. Das gewachsene, ruhige Wohnumfeld, die fußläufig erreichbaren Einkaufsmöglichkeiten in der Waitzstraße, die Nähe zur Elbe sowie der hohe Grünanteil schaffen eine Umgebung, die gleichermaßen repräsentativ wie familienfreundlich ist. Der aktuelle Zustand des Gebäudes ist unsaniert; eine vollständige Kernsanierung ist unumgänglich und eine Teilsanierung nicht realistisch. Die zu erwartenden Investitionen bewegen sich – abhängig von Ausstattung, Detailtiefe und denkmalfachlichen Anforderungen – im gehobenen Segment ab etwa 3.000 € pro Quadratmeter Wohnfläche. Der kalkulierte Gesamtrahmen umfasst 1.200.000 € für Grundstück (€ 1.115.000 BRW) mit Bestand sowie etwa 750.000 € für die Sanierung. Für Eigennutzer eröffnet dieses Denkmal jedoch einen erheblichen steuerlichen Vorteil: Die Sanierungskosten können nach der Sonder-AfA für Baudenkmäler über zehn Jahre mit jeweils neun Prozent abgeschrieben werden – somit lassen sich bis zu 90 % der Investitionskosten steuerlich geltend machen. Bitte beachten Sie, dass diese Hinweise nur den Grundzügen der Regelungen nach §§ 7i, 10f und 11b EStG entsprechen; eine verbindliche Beratung kann ausschließlich Ihr Steuerberater leisten. Das Raumprogramm des Hauses ist bereits im Ursprung ideal für eine größere Familie angelegt. Zwei Kinderzimmer und ein großzügiger Elternbereich lassen sich mit überschaubaren Eingriffen nach heutigen Wohnansprüchen weiterentwickeln. Die klare, bauhaustypische Struktur erlaubt nach Sanierung lichtdurchflutete Räume, harmonische Bezüge zwischen Innen und Außen sowie ein Wohngefühl, das sich an der Essenz moderner Architektur orientiert. Das Grundstück umfasst etwa 700 m² in begehrter Süd-West-Ausrichtung. Großzügige Freiflächen, zwei Balkone und eine weitläufige Terrasse bieten zahlreiche Möglichkeiten für individuelle Gartengestaltung und schaffen ein hohes Maß an Aufenthaltsqualität. Ein Teilkeller ergänzt das Haus um wertvolle Nutz- und Abstellfläche.
Denkmalschutz als Chance - Sanieren und profitieren!
22607 Hamburg
Die vollständige Adresse der Immobilie erhalten Sie vom Anbieter.
Auf Karte anzeigen
Die vollständige Adresse der Immobilie erhalten Sie vom Anbieter.
Finanzierungszertifikat
In nur zwei Minuten zu Ihrem persönlichen Finanzierungszertifkat.
Infos
| Haustyp | Einfamilienhaus |
|---|---|
| Wohnfläche ca. | 183 m2 |
| Nutzfläche | 22 m2 |
| Grundstücksfläche | 736 m2 |
| Zimmer | 6 |
| Badezimmer | 2 |
Kosten
| Kaufpreis |
1.190.000 € |
|---|---|
| Provision |
3.57 % inkl. gesetzl. MwSt. |
Finanzierungsrechner:
Kaufpreis:
600.000 €
Eigenkapital:
600.000 €
Monatliche Rate
0 €
Effektiver Jahreszins
0 %
Sollzinsbindung
10 Jahre
Bausubstanz & Energieausweis
| Baujahr | 1928 |
|---|---|
| Objektzustand | Renovierungsbedürftig |
| Energieausweis | laut Gesetz nicht erforderlich |
Beschreibung des Objekts
Lage
Die Baurstraße liegt im Herzen des charmanten Hamburger Stadtteils Groß Flottbek und verbindet urbane Infrastruktur mit naturnaher Lebensqualität. Groß Flottbek zählt zu den beliebtesten Wohngegenden der Hansestadt – geprägt von gepflegten Villen, Rotklinkerbauten und großzügigen Gärten, die dem Viertel seinen unverwechselbaren Charakter verleihen. Nur wenige Gehminuten entfernt befindet sich die Waitzstraße, das lebendige Zentrum des Stadtteils. Traditionsgeschäfte wie der Fischhandel Böttcher, die Fleischerei Hübenbecker oder das Café Schmidt prägen hier seit Generationen das Bild. Ergänzt wird das Angebot durch Boutiquen, Buchhandlungen, Feinkostläden sowie zahlreiche Cafés und Restaurants. Besonders geschätzt wird Groß Flottbek für seine grüne Umgebung. Die Nähe zur Elbe lädt zu Spaziergängen, Segeln oder Wassersport ein. Parks wie der Jenischpark, der Baurs Park oder der Botanische Garten bieten Erholung im Grünen. Ein Highlight ist der Groß Flottbeker Wochenmarkt, der zweimal pro Woche mit frischen Produkten aus der Region überzeugt. Familien profitieren von einer hervorragenden Bildungslandschaft mit zahlreichen Kitas, der Grundschule am Windmühlenweg, drei Gymnasien sowie der modernen „International School of Hamburg“. Auch die medizinische Versorgung ist durch Fachärzte und Kliniken gesichert. Für Kulinarik sorgt das Restaurant „Hygge“, für Freizeit Tennis, Hockey, Reiten, Polo oder Golf – u. a. im GTHGC, im Reitverein, im Polo Club oder im Golfclub Falkenstein. Die Verkehrsanbindung ist ideal: Mit der S-Bahn erreichen Sie die Innenstadt in 17 Minuten, die A7 bietet schnelle Anbindung, der Fähranleger Teufelsbrück zusätzliche Mobilität. Der Flughafen ist mit der S1 in ca. 55 Minuten oder mit dem Auto in 25 Minuten erreichbar. So verbindet die Baurstraße ruhige Wohnidylle mit exzellenter Anbindung an die Metropole Hamburg.
Sonstige Angaben
Der Makler-Vertrag mit uns kommt durch die Bestätigung der Inanspruchnahme unserer Maklertätigkeit in Textform zustande, wie z.B. insbesondere die Unterschrift des Suchkundenvertrages und/oder des Objekt-Exposés. Die Höhe der Courtage richtet sich nach den seit dem 23.12.2020 in Kraft getretenen gesetzlichen Regelungen zur Teilung der Maklercourtage. Hiernach wird die Courtage regelmäßig für beide Parteien (Eigentümer und Käufer) in Höhe von 3 % zuzüglich Umsatzsteuer in jeweils geltender Höhe, derzeit also insgesamt 7,14 % des Kaufpreises einschließlich ges. Umsatzsteuer bei notariellem Vertragsabschluss verdient und fällig. Die Höhe der Bruttocourtage unterliegt einer Anpassung bei Steuersatzänderung. Grunderwerbsteuer, Notar- und Gerichtskosten trägt der Käufer. Alle Angaben sind ohne Gewähr und basieren ausschließlich auf Informationen, die uns von unserem Auftraggeber übermittelt wurden. Wir übernehmen keine Gewähr für die Vollständigkeit, Richtigkeit und Aktualität dieser Angaben. Zwischenverkauf bleibt vorbehalten. Sollte das von uns nachgewiesene Objekt bereits bekannt sein, teilen Sie uns dieses bitte unverzüglich mit. Die Weitergabe dieses Exposees an Dritte ohne unsere Zustimmung löst gegebenenfalls Courtage- bzw. Schadensersatzansprüche aus. Im Übrigen gelten die Allgemeinen Geschäftsbedingungen für die Rechtsbeziehung zwischen Ihnen und der Engel & Völkers Immobilien Deutschland GmbH (Lizenznehmer der Engel & Völkers Residential GmbH).
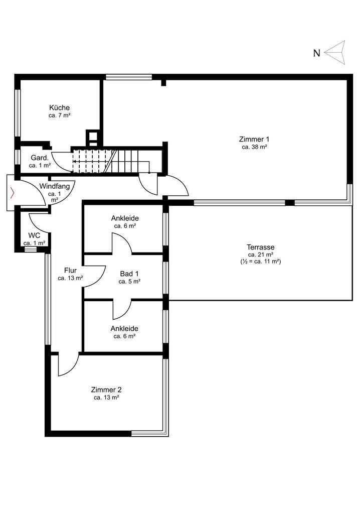
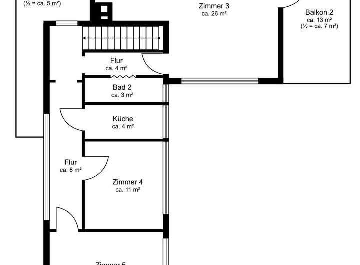
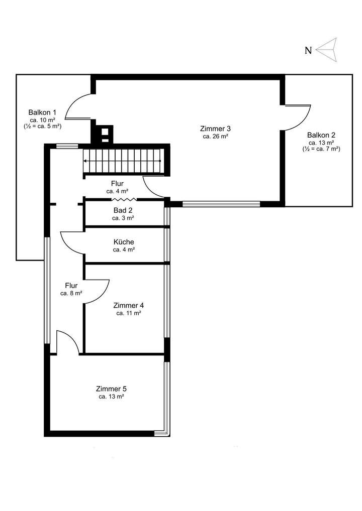
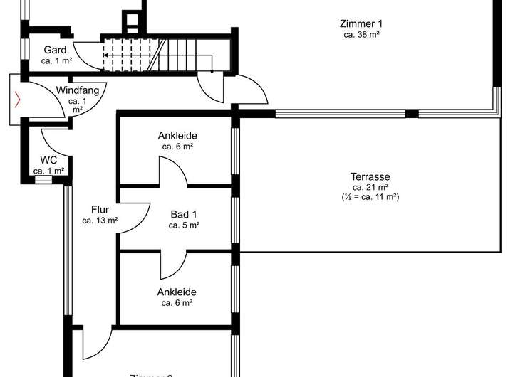
Grundriss
Grundriss Erdgeschoss
>
>
Grundriss Obergeschoss
>
>
Grundriss Kellergeschoss
>
>
Adresse
22607 Hamburg
Interessante Orte
Preis- und Lageinformationen
Preistrend für Bestandsimmobilien in Groß Flottbek