Willkommen zu Hause! Das Familienhaus Fida besticht mit 143 m² Wohnfläche und vollkommenen Wohngefühl! Vertrauen Sie dem ersten Eindruck – hier werden Sie sich wohlfühlen!
Schon bei dem Eintreten begeistert das Haus mit einem offenen Flur mit Blick in den Wohnbereich, der direkt anschließt. Vorbei an der geraden Treppe beindruckt der Wohnbereich mit vielen bodentiefen Fenstern, die Licht und Helligkeit in den Raum bringen. Gerade das Sofa lädt zu gemütlichen Couchnachmittagen ein. Vom Esstisch öffnet sich der Blick in die geräumige Küche. So ist man auch beim Kochen mitten im Geschehen im Wohnbereich. Ergänzt wird die Küche durch eine Speisekammer, wo Vorräte ihren Platz finden. Außerdem gehört ein Home-Office, ein Gäste-WC und ein Hauswirtschaftsraum zum Erdgeschoss von Haus Fida.
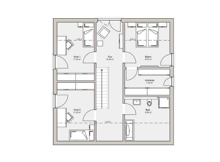
Die Treppe führt in die oberen Flur, der besonders geräumig gestaltet ist und in der Gaube Platz für eine gemütliche Leseecke bietet. Zwei gleichgroße Kinderzimmer, ein Familienbad und ein Elternschlafzimmer mit Ankleide komplettieren das Dachgeschoss. Hier kann man sich wohlfühlen!
Dieses Haus wird nach Ihren individuellen Wünschen geplant und ausgestattet!
Wohnen im Grünen und in nur 30 Minuten in Wolfburg!
38486 Kunrau
Die vollständige Adresse der Immobilie erhalten Sie vom Anbieter.
Auf Karte anzeigen
Die vollständige Adresse der Immobilie erhalten Sie vom Anbieter.
Finanzierungszertifikat
In nur zwei Minuten zu Ihrem persönlichen Finanzierungszertifkat.
Infos
| Haustyp | Einfamilienhaus |
|---|---|
| Wohnfläche ca. | 143 m2 |
| Grundstücksfläche | 1.212 m2 |
| Zimmer | 5 |
| Schlafzimmer | 3 |
| Badezimmer | 1 |
| Anzahl Garage/Stellplatz | 2 |
Kosten
| Kaufpreis |
476.900 € |
|---|---|
| Provision | Nein |
Finanzierungsrechner:
Kaufpreis:
600.000 €
Eigenkapital:
600.000 €
Monatliche Rate
0 €
Effektiver Jahreszins
0 %
Sollzinsbindung
10 Jahre
Bausubstanz & Energieausweis
| Baujahr | 2026 |
|---|---|
| Bauphase | Haus in Planung (projektiert) |
| Objektzustand | Erstbezug |
| Qualität der Austattung | Gehoben |
| Heizungsart | Wärmepumpe |
| Wesentliche Energieträger | Strom |
| Energieausweis | liegt vor |
| Energieausweistyp | Bedarfsausweis |
| Energieverbrauchskennwert | 18,0 kWh/(m²*a) |
| Energieeffizienzklasse | A+ |
18,0
kWh/(m²*a)
Energieeffizienzklasse A+
- A+
- A
- B
- C
- D
- E
- F
- G
- H
- 0
- 25
- 50
- 75
- 100
- 125
- 150
- 175
- 200
- 225
- >250
Beschreibung des Objekts
Ausstattung
5 Zimmer, offene Küche, Diele, Flur, Bad, WC, Speisekammer, Hauswirtschaftsraum
Das gezeigte Traumhaus im Überblick:
+ Schlüsselfertiges Massivhaus im Sinne der Ausstattungsbeschreibung "Edition 25"
+ Zukunftsorientierte Energieausstattung in Form einer Luft-Wasser-Wärmepumpe und Fußbodenheizung sowie einer kontrollierten Wohnraumlüftung mit Wärmerückgewinnung
+ Inklusive Bodenplatte
Beste Markenausstattung in jedem Kern-Haus:
+ Zimmermannsmäßiger Dachstuhl aus Konstruktionsvollholz
+ Dacheindeckung mit Betondachsteinen von Braas
+ Hochwertiger Kunstharz-Außenputz für eine langlebige Fassade
+ Vollständige Badausstattung von Villeroy & Boch mit Badewanne und flacher Duschwanne sowie einer Echtglasduschkabine
+ Fliesen von Villeroy & Boch in Bad und WC
+ Haustür mit 5-fach-Sicherheitsverriegelung
+ Erstklassige Innentüren der Marke Herholz
+ Fenster mit 3-Scheiben-Wärmeschutzverglasung und Rollläden
+ Stahl-Holz-Treppe mit individueller Farbgestaltungsmöglichkeit
+ Vollständige und überdurchschnittliche Elektroausstattung inklusive Klingelanlage und Netzwerkdosen
+ Rauchmelder für Ihre Sicherheit
+ Alle Leistungen aus einer Hand
+ Alle Planungs- und Architektenleistungen
+ Einsatz regionaler Handwerksbetriebe
+ Baubegleitende 5-Phasen-TÜV-Prüfung und Blower-Door-Test
+ Individuelle Anpassung auf Ihre Bedürfnisse
+ Auf Wunsch mit Keller erhältlich
+ Auf Wunsch mit weiteren Energietechniken erhältlich
Lage
Das 1.212 qm große Baugrundstück bietet viel Platz für die Familie und liegt im Altmarktkreis Salzwedel, im Ortsteil Kunrau, ca. 40 km von der Stadt Wolfsburg. Der Ort ist über die Bundesstraße 244 an der Landesstraße 23 erreichbar.
***Gerne plant das Kern-Haus Team individuell Ihr Traumhaus***
Der Ort Kunrau selbst hat eine Kindertagesstätte, eine Grundschule und Einkaufsmöglichkeiten für den täglichen Bedarf. Im Schloss sind die Geschäftsstelle des Fremdenverkehrsvereins Jeetze-Ohre-Drömling e.V. und eine Zweigstelle der Stadt- und Kreisbibliothek Klötze ansässig.
In der Gemeinde findet ein lebendiges Vereinsleben statt, wie im Turn- und Sportverein Kunrau, der Feuerwehrkameradschaft Kunrau, dem Männerchor "Concordia" Kunrau und Reit- und Fahrverein Kunrau mit großer Reitanlage, es wird reichlich Abwechslung den Einwohnern, gleich ob Jung oder Alt, geboten.
In Klötze-Kunrau können Sie die Natur genießen, ausgiebig wandern oder die reizvolle Landschaft auch mit dem Fahrrad erkunden.
Sonstige Angaben
Kern-Haus baut individuelle und massive Architektenhäuser zu einem attraktiven Preis-Leistungs-Verhältnis – und das bereits mit einer Erfahrung seit 1980. Bei Kern-Haus erhalten Sie unter anderem 10 Jahre Gewährleistung auf die wesentlichen Bauleistungen, bis zu 24 Monate Preissicherheit sowie eine dokumentierte 5-Phasen-TÜV-Prüfung während der Bauphase. Jedes Kern-Haus als Effizienzhaus 40 ist bereits QNG-zertifiziert durch die Deutsche Gesellschaft für nachhaltiges Bauen (DGNB).
40 Jahre Expertise für das massive, energieeffiziente Bauen: Kern-Haus realisiert Massivhäuser in Ziegel, Bims, Porenbeton oder Stahlbeton (DuoTherm).
Kern-Haus setzt auf eine hohe Bauqualität der Handwerker und auf eine große Auswahl starker Marken. So verwendet Kern-Haus beim Bau Ihres Hauses nur hochwertige Markenprodukte renommierter Hersteller – wie etwa Produkte von Villeroy & Boch.
Preise und Auszeichnungen von Kern-Haus:
- German Brand Award in den Jahren 2018 und 2021
- Hausbau Design Award: Sieger in den Jahren 2017, 2018, 2019, 2020, 2021, 2022 und 2023
- Deutscher Traumhauspreis: Sieger in den Jahren 2014, 2015, 2016 und 2018 und Silber 2017, 2020 und 2021
- Mittelstandspreis "Top 100" in den Jahren 2014, 2016, 2018, 2020 und 2022
- German Design Award im Jahr 2018
Weitere Informationen
Der gezeigte Preis versteht sich inklusive Grundstück und exklusive der Baunebenkosten.
Grundriss
Grundriss Erdgeschoss
>
>
Grundriss Dachgeschoss
>
>
Adresse
38486 Kunrau
Interessante Orte
Preis- und Lageinformationen
Preistrend für Bestandsimmobilien in Kunrau