Baujahr: 1984
Grundstück ca. 370 m²
Freistellung: nach Absprache im Frühjahr 2026
Untergeschoss / Eingang:
- freundlicher Eingangsbereich mit Treppenhaus und Zugang zum Keller
- 1-Zimmer Appartement mit offenem Küchenbereich und großer Terrasse, Dusch-Bad-WC zzgl. Kellerraum, Wasch- und Trockenraum
Erdgeschoss:
- offener und lichtdurchfluteter Koch- und Essbereich mit direktem Ausgang zur Terrasse im Garten
- großzügiges Wohnzimmer mit Zugang zum Balkon - herrlicher Fernblick!
- Gäste-WC
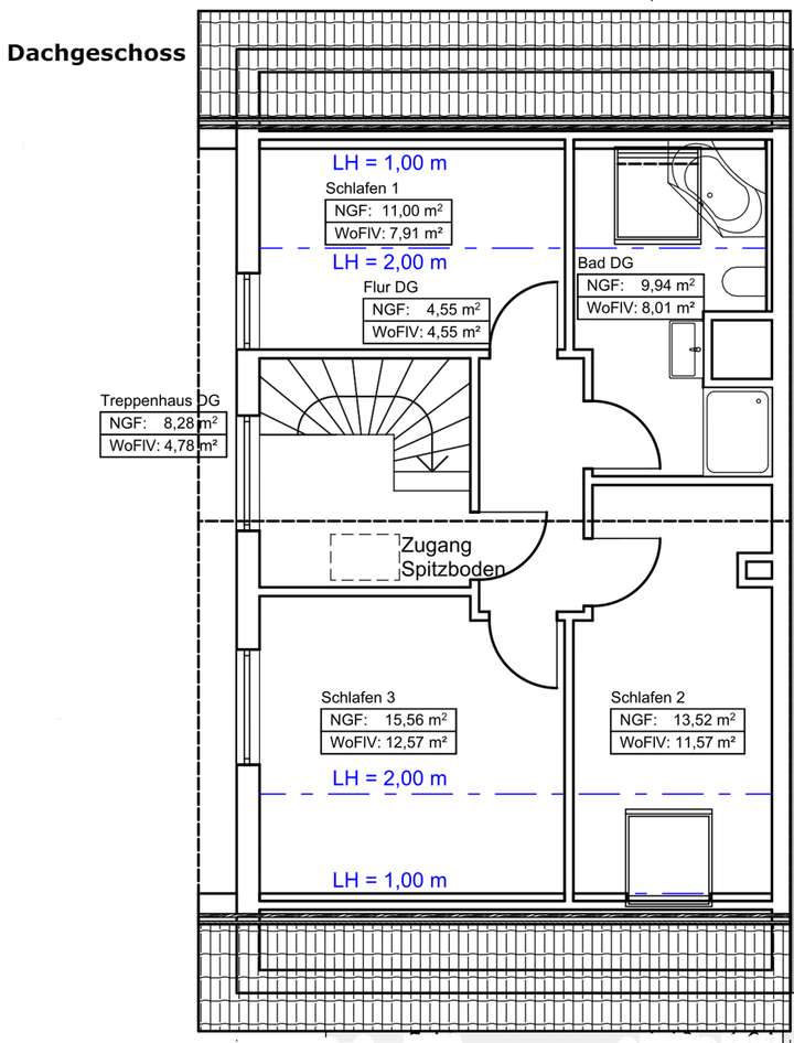
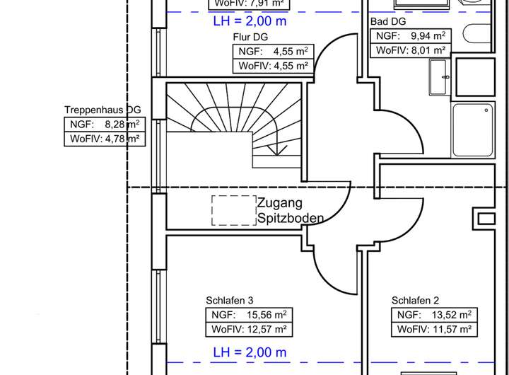
Dachgeschoss:
- 3xSchlafzimmer
- Wannen-Duschbad-WC
- Flur mit Zugang zum Spitzboden
Gesamtwohnfläche ca. 168 m²
zzgl. Nutzflächen ca. 96 m² (Kellerräume, Spitzboden, Garage)
Einziehen und wohlfühlen! große 1-Familien-DHH in Feldrandlage mit Fernblick und Doppelgarage
65510 Idstein
Die vollständige Adresse der Immobilie erhalten Sie vom Anbieter.
Auf Karte anzeigen
Die vollständige Adresse der Immobilie erhalten Sie vom Anbieter.
Finanzierungszertifikat
In nur zwei Minuten zu Ihrem persönlichen Finanzierungszertifkat.
Infos
| Haustyp | Doppelhaushaelfte |
|---|---|
| Wohnfläche ca. | 168 m2 |
| Nutzfläche | 96 m2 |
| Grundstücksfläche | 369 m2 |
| Zimmer | 5 |
| Schlafzimmer | 4 |
| Badezimmer | 2 |
Kosten
| Kaufpreis |
596.000 € |
|---|---|
| Provision | Nein |
Finanzierungsrechner:
Kaufpreis:
600.000 €
Eigenkapital:
600.000 €
Monatliche Rate
0 €
Effektiver Jahreszins
0 %
Sollzinsbindung
10 Jahre
Bausubstanz & Energieausweis
| Baujahr | 1984 |
|---|---|
| Wesentliche Energieträger | Erdgas schwer |
| Energieausweis | liegt vor |
| Energieausweistyp | Verbrauchsausweis |
| Energieverbrauchskennwert | 79,3 kWh/(m²*a) |
| Energieeffizienzklasse | C |
79,3
kWh/(m²*a)
Energieeffizienzklasse C
- A+
- A
- B
- C
- D
- E
- F
- G
- H
- 0
- 25
- 50
- 75
- 100
- 125
- 150
- 175
- 200
- 225
- >250
Beschreibung des Objekts
Ausstattung
Die Immobilie wurde kontinuierlich modernisiert, auf einem hochwertigen Stand gebracht und in den vergangenen Jahren gehalten. Eine umfängliche Sanierung wurde im Jahr 2002 durchgeführt. Danach folgten viele Verbesserungen zur Erhaltung der Bausubstanz und Aufwertung der Immobilie. Hier können sie einziehen und sich wohlfühlen.
Hervorzuhebende Ausstattung:
- geschmackvoll angelegter Garten mit Terrasse, Gartenhaus und direktem Zugang zum Feld
- hochwertige Bodenbeläge
- Glastüren
- größtenteils elektrische Rollläden
- Gas-Heizung aus 2017
- 2-Fach Isolierglasfenster
- Zwischensparrendämmung
- große Doppelgarage mit Wallbox
- Hausfassade neu angelegt in 2021
Lage
Idstein-Eschenhahn ist ein ruhiger, stadtnaher Ortsteil der Kreisstadt Idstein im Taunus. Die Gegend zeichnet sich durch eine attraktive Mischung aus ländlichem Charme und moderner Wohnqualität aus, typisch sind grüne Wohnlagen mit kurzen Wegen in die umliegenden Waldgebiete und eine gute Anbindung an das Idsteiner Zentrum. Die Immobilie liegt in einem reinen Wohngebiet mit schönem Fernblick.
Lage und Verkehr:
- Idstein liegt im waldreichen Taunus, etwa 35 Kilometer nordwestlich von Frankfurt am Main
- Eschenhahn liegt nahe am Idsteiner Stadtzentrum und ist nur ca. 6 km entfernt
- die Anbindung an den ÖPNV ist durch Buslinien gegeben, mit regelmäßigen Verbindungen nach Idstein und umliegenden Orten
- die Autobahn A3/Köln-Frankfurt ist in wenigen Fahrminuten erreichbar, ideal für Pendler der Rhein-Main-Region
Infrastruktur:
- Nahversorgung erfolgt über Idstein oder Taunusstein mit Supermärkten, Apotheken, Banken und Dienstleistungen
- Schulen, Kindertagesstätten und medizinische Einrichtungen befinden sich in der näheren Umgebung bzw. in Idstein selbst
- die Historische Altstadt mit seinen Fachwerkhäusern bietet ein gemütliches Flair mit viel Atmosphäre, Restaurants und Freizeitaktivitäten
Sonstige Angaben
Energieausweis nach Verbrauch
gültig bis 04.12.2035
wesentlicher Energieträger Erdgas E
Baujahr des Energieerzeugers 2017
Endenergieverbrauch 79,3 kWh/(m².a)
Energieeffizienzklasse C
Grundriss
Einliegerwohnung
>
>
Erdgeschoss
>
>
Dachgeschoss
>
>
Adresse
65510 Idstein
Interessante Orte
Preis- und Lageinformationen
Preistrend für Bestandsimmobilien in Idstein