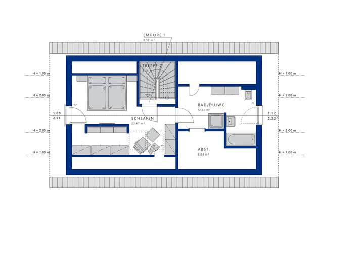
Das BALANCE 175 von Bien-Zenker ist mehr als nur ein Haus, es ist ein Lebenskonzept. Mit seinen drei Etagen eröffnet es eine neue Dimension des Wohnens, die sich ganz nach Ihren Wünschen richtet. Im Erdgeschoss vereint der offene Wohn-, Ess- und Kochbereich auf harmonische Weise das Familienleben. Die großen Fensterflächen fluten den Raum mit Licht und schaffen eine warme, einladende Atmosphäre. Oben bieten fünf Schlafzimmer und zwei Badezimmer ausreichend Platz für die ganze Familie oder individuelle Rückzugsorte. Ganz gleich, ob Sie sich für drei Kinderzimmer, ein Büro oder einen Elternbereich entscheiden - alles ist möglich. Besonders das Studio im Dachgeschoss lädt zu kreativen Nutzungsmöglichkeiten ein. Der durchdachte Grundriss passt sich flexibel Ihren Bedürfnissen an und macht jedes Wohnen einzigartig.
Die Ausstattung des BALANCE 175 lässt keine Wünsche offen. Genießen Sie Ihren Morgenkaffee auf dem großzügigen Balkon oder entspannen Sie bei einem Glas Wein auf der weitläufigen Terrasse im Garten, während Sie den Blick über Ihr großes Grundstück schweifen lassen. Die lichtdurchfluteten Räume bieten nicht nur optische Highlights, sondern auch funktionalen Komfort. Ob Stauraum durch Abstellmöglichkeiten oder der Luxus eines zusätzlichen Kellers - jeder Quadratmeter ist sinnvoll genutzt und trägt zu einem komfortablen Alltag bei.
Mit der Ausbaustufe "Schlüsselfertig" von Bien-Zenker wird Ihnen der Traum vom Eigenheim so einfach wie möglich gemacht. Wir kümmern uns um alles - vom Fundament bis zum letzten Feinschliff im Innenausbau. Lehnen Sie sich zurück und freuen Sie sich darauf, ohne Stress und Hektik einzuziehen. Durch diese Rundum-Betreuung sparen Sie nicht nur Zeit, sondern auch kostbare Nerven in der Bauphase.
Bei Bien-Zenker geht es um mehr als nur das Bauen eines Hauses - es geht um das Schaffen eines Zuhauses, das perfekt zu Ihnen passt. Mit über 80.000 gebauten Häusern zählt Bien-Zenker zu den führenden Fertighausanbietern Deutschlands und steht für Qualität, Innovation und Kundenzufriedenheit.
Grundrisse und Abbildungen können Extras zeigen. Flächenangaben nach DIN 277.
Individuell und stilvoll geplant mit Bien-Zenker in Hamburg - Hummelsbüttel
22339 Hamburg
Die vollständige Adresse der Immobilie erhalten Sie vom Anbieter.
Auf Karte anzeigen
Die vollständige Adresse der Immobilie erhalten Sie vom Anbieter.
Finanzierungszertifikat
In nur zwei Minuten zu Ihrem persönlichen Finanzierungszertifkat.
Infos
| Haustyp | Einfamilienhaus |
|---|---|
| Wohnfläche ca. | 180 m2 |
| Grundstücksfläche | 630 m2 |
| Zimmer | 7 |
| Schlafzimmer | 5 |
| Badezimmer | 2 |
Kosten
| Kaufpreis |
974.650 € |
|---|
Finanzierungsrechner:
Kaufpreis:
600.000 €
Eigenkapital:
600.000 €
Monatliche Rate
0 €
Effektiver Jahreszins
0 %
Sollzinsbindung
10 Jahre
Bausubstanz & Energieausweis
| Baujahr | unbekannt |
|---|---|
| Bauphase | Haus in Planung (projektiert) |
| Qualität der Austattung | Gehoben |
Beschreibung des Objekts
Ausstattung
Das BALANCE 175 von Bien-Zenker erstreckt sich eindrucksvoll über drei Etagen mit insgesamt sieben Zimmern auf einer großartigen Wohnfläche von 180 m². Diese kluge Raumaufteilung bietet fünf komfortable Schlafzimmer sowie zwei gut ausgestattete Badezimmer, die geschickt miteinander verbunden sind, um sowohl Privatsphäre als auch gemeinsames Familienleben zu ermöglichen. Hier finden sowohl große Familien als auch Paare mit Platzbedarf ideale Wohnbedingungen vor.
Ein weiteres Highlight dieser Immobilie sind die wunderbaren Außenbereiche, die den Wohnkomfort zusätzlich erhöhen. Der großzügige Balkon lädt dazu ein, sonnige Tage im Freien zu verbringen oder den Abend ausklingen zu lassen, während die Terrasse im Garten einen perfekten Ort für gesellige Runden oder ruhige Momente der Entspannung bietet. Dank der großen Fensterfronten sind alle Räume lichtdurchflutet und schaffen dadurch eine offene und freundliche Atmosphäre.
Die Ausbaustufe "Schlüsselfertig" sorgt dafür, dass Ihr neues Zuhause sofort bezugsfertig ist - ohne dass Sie sich um zusätzliche Arbeiten kümmern müssen. Alle handwerklichen Tätigkeiten werden von erfahrenen Fachleuten übernommen, sodass Sie einfach einziehen können, sobald Ihr Haus fertiggestellt ist. Dies bedeutet nicht nur weniger Aufwand für Sie als Bauherren, sondern garantiert auch einen reibungslosen Bauablauf mit hoher Qualität.
Lage
Im grünen Hamburger Stadtteil - Hummelsbüttel
Das projektiere Fertighaus befindet sich in einer begehrten Lage in Hamburg, einer Stadt voller Möglichkeiten und urbanem Charme. In unmittelbarer Nähe finden Sie zahlreiche Bildungsangebote wie Schulen und Kindergärten sowie Gesundheitszentren für Ihre medizinische Versorgung. Für Ihre täglichen Einkäufe stehen Ihnen verschiedenste Supermärkte zur Verfügung und die lebendige Innenstadt Hamburgs bietet zahlreiche Shopping-Möglichkeiten.
Hamburg ist bekannt für sein reichhaltiges Freizeitangebot: Erholen Sie sich in einem der vielen Parks oder genießen Sie kulturelle Veranstaltungen in Theatern und Museen der Stadt. Auch Sportbegeisterte kommen hier voll auf ihre Kosten - von Fitnessstudios bis hin zu Sportvereinen gibt es zahlreiche Angebote.
Dank einer hervorragenden Verkehrsanbindung sind sämtliche Ziele schnell erreicht: Der öffentliche Personennahverkehr bringt Sie zügig in alle Teile Hamburgs und darüber hinaus ermöglichen nahegelegene Autobahnen eine schnelle Anbindung an umliegende Städte und Regionen.
Sonstige Angaben
Der hier angeben Wert zur zu zahlenden Grunderwerbsteuer ist ein vom Portalbetreiber automatisierter Wert, der nicht der Realität entspricht, da die Grunderwerbsteuer nur auf den im Gesamtangebot einberechneten Grundstückswert berechnet wird.
Inkl. PV - Anlage und Speicher für die eigene Stromversorgung
Auf Wunsch können alle Kriterien für eine KFN - QNG Förderung erfüllt werden.
Hausabbildungen mit Sonderwünschen
Grundrisse können individuell geändert und angepasst werden
Auf Wunsch ist ein Keller möglich
Adresse
22339 Hamburg
Interessante Orte
Preis- und Lageinformationen
Preistrend für Bestandsimmobilien in Fuhlsbüttel
>
>
>