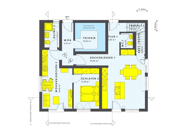
Willkommen in deinem neuen Zuhause in Hamburg, einem einzigartigen Fertighaus, das nach deinen persönlichen Wünschen und Vorstellungen gestaltet wird. Mit insgesamt fünf Zimmern und einer großzügigen Wohnfläche von 191,86 m² bietet dir dieses Mehrgenerationenhaus ausreichend Platz für die ganze Familie. Die Architektur ist modern und funktional, geprägt von einem eleganten Satteldach, das durch einen Giebel mit Flachdach aufgebrochen wird. Die beiden Erker im Erdgeschoss schaffen zusätzliche Wohnfläche und fördern ein lichtdurchflutetes Ambiente. Ein besonderes Highlight ist der Balkon im Obergeschoss, der nicht nur einen schönen Ausblick bietet, sondern auch Raum für entspannte Stunden im Freien schafft.
Das Konzept von Living Haus legt großen Wert auf Individualität und Qualität. Daher stehen dir zahlreiche zusätzliche Leistungen zur Verfügung, die dein Bauvorhaben unterstützen. Die Traumküche von Living Haus wird maßgeschneidert und mit modernster Technik ausgestattet, sodass du sofort nach dem Einzug das Kochen genießen kannst. Mit dem Living Haus Bau-Cockpit hast du mittels einer praktischen App stets den Überblick über dein Bauprojekt - vom Zeitplan bis zur Dokumentenverwaltung.
Intelligentes Bauen wird durch das I-KON-System ermöglicht, das Energieeffizienz und Umweltbewusstsein vereint. Du profitierst von einem Effizienzhaus 55, das nur 55 % der Energie eines Standardhauses benötigt. Das Zuhause-Darlehen bietet dir attraktive Finanzierungsoptionen und staatliche Förderungen. Mit dem Zuhause-Paket erhältst du eine hochwertige Grundausstattung, während das DIY-Ausbau-Coaching dir ermöglicht, deinen Innenausbau selbst zu gestalten und dabei wertvolle Tipps von Experten zu erhalten.
Living Haus bietet dir damit die Möglichkeit, dein zukünftiges Zuhause nach deinen Vorstellungen zu realisieren und gleichzeitig moderne, nachhaltige Lösungen zu integrieren.
Dein individuelles Traumhaus in Hamburg - Wohnen nach deinen Vorstellungen
Durchdeich 61,
21037 Hamburg
Auf Karte anzeigen
Finanzierungszertifikat
In nur zwei Minuten zu Ihrem persönlichen Finanzierungszertifkat.
Infos
| Haustyp | Mehrfamilienhaus |
|---|---|
| Etagenzahl | 2 |
| Wohnfläche ca. | 191 m2 |
| Nutzfläche | 100,72 m2 |
| Grundstücksfläche | 690 m2 |
| Zimmer | 5 |
| Schlafzimmer | 4 |
| Badezimmer | 3 |
Kosten
| Kaufpreis |
697.470 € |
|---|
Finanzierungsrechner:
Kaufpreis:
600.000 €
Eigenkapital:
600.000 €
Monatliche Rate
0 €
Effektiver Jahreszins
0 %
Sollzinsbindung
10 Jahre
Bausubstanz & Energieausweis
| Baujahr | 2002 |
|---|---|
| Objektzustand | Neuwertig |
| Qualität der Austattung | Normal |
| Heizungsart | Zentralheizung |
| Energieausweis | liegt vor |
| Energieausweistyp | Bedarfsausweis |
| Energieverbrauchskennwert | 18,0 kWh/(m²*a) |
| Energieeffizienzklasse | A+ |
18,0
kWh/(m²*a)
Energieeffizienzklasse A+
- A+
- A
- B
- C
- D
- E
- F
- G
- H
- 0
- 25
- 50
- 75
- 100
- 125
- 150
- 175
- 200
- 225
- >250
Beschreibung des Objekts
Ausstattung
Dein neues Zuhause überzeugt durch eine umfassende Ausstattung: Hochwertige Böden, edle Türen und stilvolle Sanitäranlagen gehören zur Grundausstattung. Die individuelle Traumküche ist perfekt auf deinen Grundriss abgestimmt und kommt mit modernster Technik sowie cleveren Stauraumlösungen. Du erhältst außerdem eine 18-monatige Festpreisgarantie, umfassende Bauversicherungen und die Möglichkeit zur kostenlosen Baustelleneinrichtung. Hochwertige Dämmung sorgt für ein angenehmes Raumklima, während eine integrierte PV-Anlage deinen Strombedarf deckt. Das DIY-Ausbau-Coaching vermittelt dir praktische Fähigkeiten für den Innenausbau.
Alles ist optimal aufeinander abgestimmt und fix & fertig geliefert. Dein "Wie ich es will Fertighaus" wartet auf dich!
Lage
Hamburg bietet dir eine hervorragende Lebensqualität mit einer Vielzahl an Bildungseinrichtungen, Gesundheitsdiensten, Einkaufsmöglichkeiten und Freizeitaktivitäten. In unmittelbarer Nähe befinden sich mehrere Kindergärten und Schulen, darunter die renommierte Grundschule am Barmbeker Bahnhof, die für ihre engagierten Lehrkräfte und ein modernes Konzept bekannt ist. Für die älteren Schüler stehen diverse Gymnasien zur Auswahl, die einen exzellenten Bildungsweg garantieren.
Die medizinische Versorgung ist durch zahlreiche Ärzte, Zahnärzte und Fachkliniken in der Umgebung bestens gesichert. Supermärkte wie REWE und EDEKA sowie kleinere Bioläden sind schnell erreichbar und bieten eine große Auswahl an Lebensmitteln.
Freizeitmöglichkeiten gibt es in Hülle und Fülle. Der nahegelegene Stadtpark lädt zu entspannenden Spaziergängen ein, während das Alsterufer ein beliebter Ort für sportliche Aktivitäten und Erholung ist. Kulturell hat Hamburg viel zu bieten: von Museen über Theater bis hin zu einem lebhaften Nachtleben.
Die Anbindung an den öffentlichen Nahverkehr (ÖPNV) ist ausgezeichnet, mit mehreren U-Bahn- und S-Bahn-Stationen in der Nähe, die dich schnell ins Stadtzentrum bringen. Auch die Autobahn ist in wenigen Minuten erreichbar, was Pendlern eine unkomplizierte Anreise ermöglicht. Hamburg ist somit der perfekte Ort für Familien, Naturliebhaber und Stadtliebhaber, die die Vorzüge einer pulsierenden Metropole schätzen.
Sonstige Angaben
Hochwertige Einbauküchen mit allen E-Geräten wie Spülmaschinen, Microwellen, Einbauherden, Ceranfeldern. In jeder Wohnung ist eine Waschmaschine und ein Trockner eingebaut. In allen Bädern finden Sie bedüste Badewannen, alle Sanitärobjkete mit wasserabweisender Lotusbeschicjtung, hochwertige Armaturen. Internetanschluß, Kabel-TV mit Videorecorder., Stereoanlagen mit CD-Spieler. Fenster und Türen sind mit einbruchsicherem Securaglas ausgestattet ( Fa. Pax ) Fassadenanstrich mit selbstreinigenem Lotusan, eine Doppelgarage und 9 Stellplätze, alle Wohnungen verfügen über Balkon oder Terrassen, Warmwasser-Außendusche für Hunde, Gesamtausstattung der Beautyfarm.
Adresse
Durchdeich 61, 21037 Hamburg
Interessante Orte
Preis- und Lageinformationen
Preistrend für Bestandsimmobilien in Kirchwerder