Entdecken Sie Ihr Traumhaus in Rüdesheim!
Dieses wunderschöne Reihenmittelhaus bietet Ihnen und Ihrer Familie ein Zuhause der Extraklasse. Mit einer Wohnfläche von 148 m² und einem großzügigen Grundstück von 220 m² ist hier ausreichend Platz für alle Lebenslagen.
Dieses Objekt wird zum Erstbezug angeboten und überzeugt durch seine gehobene Ausstattung.
Die Doppelhaushälfte verfügt über 5 Zimmer, 4 geräumige Schlafzimmer und 1 Badezimmer. Ein separates Gäste-WC sorgt für zusätzlichen Komfort. Der Garten lädt zu entspannten Stunden im Freien ein und bietet viel Privatsphäre.
Ein besonderes Highlight dieser Immobilie ist die hocheffiziente Wärmepumpe mit Luftwärmepumpen-Technologie, die dem KFW40 Standard entspricht und für niedrige Energiekosten und eine hervorragende Energieeffizienz sorgt.
Zusätzlich steht Ihnen ein Außenstellplatz zur Verfügung, der Ihre Parkmöglichkeiten ergänzt.
Durch die Lage direkt in der Zone des großen Nahversorgungszentrums, wird Ihnen hier alles zum täglichen Bedarf geboten.
Aktuell ist diese Immobilie in Planung. Die Fertigstellung ist geplant für Sommer 2027.
Reihenmittelhaus im KFW40-QNG Standard in verkehrsgünstiger Lage von Rüdesheim
55593 Rüdesheim
Die vollständige Adresse der Immobilie erhalten Sie vom Anbieter.
Auf Karte anzeigen
Die vollständige Adresse der Immobilie erhalten Sie vom Anbieter.
Finanzierungszertifikat
In nur zwei Minuten zu Ihrem persönlichen Finanzierungszertifkat.
Infos
| Haustyp | Reihenmittelhaus |
|---|---|
| Wohnfläche ca. | 148 m2 |
| Grundstücksfläche | 190 m2 |
| Bezugsfrei ab | Sommer 2027 |
| Zimmer | 5 |
| Schlafzimmer | 4 |
| Badezimmer | 1 |
| Anzahl Garage/Stellplatz | 1 |
Kosten
| Kaufpreis |
429.000 € |
|---|---|
| Preis für Garage/Stellplatz | 7.500 € |
| Provision | Nein |
Finanzierungsrechner:
Kaufpreis:
600.000 €
Eigenkapital:
600.000 €
Monatliche Rate
0 €
Effektiver Jahreszins
0 %
Sollzinsbindung
10 Jahre
Bausubstanz & Energieausweis
| Baujahr | 2027 |
|---|---|
| Objektzustand | Erstbezug |
| Qualität der Austattung | Gehoben |
| Heizungsart | Wärmepumpe |
| Wesentliche Energieträger | Umweltwärme |
| Energieausweis | liegt zur Besichtigung vor |
Beschreibung des Objekts
Ausstattung
- KFW40 QNG-Standard
- Innenausbau fertig, bis auf Maler- und Bodenlegerarbeiten
- Stellplätze am Haus
- Garten
- 5 Zimmer
- automatisierte Wohnraum Be- und Entlüftung
Lage
Die Immobilie befindet sich in einer infrastrukturell sehr guten Lage von Rüdesheim im Nahetal.
Hier genießen Sie eine hohe Lebensqualität dank der hervorragenden Infrastruktur und der unmittelbaren Nähe zur Natur.
Geschäfte des täglichen Bedarfs, Einkaufsmärkte, Schulen, Kindergärten sowie medizinische Einrichtungen sind bequem erreichbar.
Für die Freizeit bietet Rüdesheim ein eigenes Schwimmbad, eine Gemeindebücherei, ein Fitnessstudio und ein engagiertes Vereinsleben.
Gleichzeitig laden die Nahe und die umliegenden Weinberge zu ausgedehnten Spaziergängen und Fahrradtouren ein.
Ein DRK Seniorenwohnheim befindet sich am westlichen Ortsrand.
Durch die gute öffentliche Verkehrsanbindung, die in wenigen Minuten fußläufig zu erreichen ist, gibt es eine schnelle Anbindung ins Rhein-Maingebiet.
Die verkehrsgünstige Anbindung an die B41 und die A61 ermöglicht Ihnen eine schnelle Erreichbarkeit der Städte Bad Kreuznach, Bingen, Mainz und Wiesbaden – perfekt für Berufspendler oder alle, die die Vorteile des ländlichen Wohnens mit der Nähe zu urbanen Zentren verbinden möchten.
Sonstige Angaben
Die in unserem Exposé enthaltenen Aussagen basieren ausschließlich auf Informationen, die uns vom Verkäufer und von Handwerkern zur Verfügung gestellt wurden.
Wir übernehmen daher keine Gewähr für die Vollständigkeit und Richtigkeit der Angaben.
Das Immobilienangebot ist freibleibend.
Irrtum und Zwischenverkauf bleiben vorbehalten.
Weitere Details zum Objekt erläutern wir Ihnen gerne bei einem Besichtigungstermin.
Wir bitten um Ihr Verständnis dafür, dass wir nur Anfragen mit vollständigen Adressdaten inklusive Vor- und Zuname, Anschrift, Telefon-/Mobilnummer und Email Adresse bearbeiten können.
Sie suchen nach der passenden Finanzierung? Wir finden sie!
Als ungebundene Finanzierungsvermittler vergleichen wir über 900 Banken und finden einen optimalen Kredit für Sie.
Sparen Sie Geld und Zeit! Mit Sicherheit günstiger als Ihre Hausbank.
Wir freuen uns auf den Kontakt zu Ihnen.
Immotactics GmbH
0671 – 20272030
info@immotactics.de
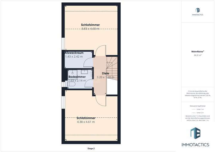
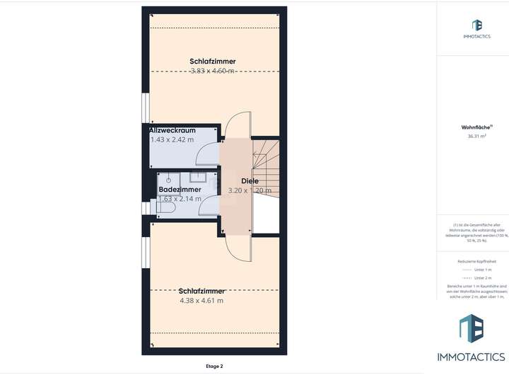
Grundriss
Erdgeschoss
>
>
1. Obergeschoss
>
>
Dachgeschoss
>
>
Spitzboden
>
>
Adresse
55593 Rüdesheim
Interessante Orte
Preis- und Lageinformationen
Preistrend für Bestandsimmobilien in Rüdesheim