Ob es darum geht, die Großeltern in der Nähe der Familie unterzubringen, die erwachsenen Kinder einziehen zu lassen oder sich durch Vermietung ein finanzielles Polster zu schaffen - zwei horizontal getrennte Wohneinheiten lassen vielfältige Nutzungsmöglichkeiten zu.
Gemeinsam bauen und wohnen: Das Zweifamilienhaus CELEBRATION 274 V2 ist die optimale Lösung für Bauwillige, die nicht alleine bleiben möchten.
2FH-Den Winter im eigenen Garten erleben- bauen Sie mit BIEN ZENKER Ihr TRAUMHAUS inkl. Baugrundstü
55257 Budenheim
Die vollständige Adresse der Immobilie erhalten Sie vom Anbieter.
Auf Karte anzeigen
Die vollständige Adresse der Immobilie erhalten Sie vom Anbieter.
Finanzierungszertifikat
In nur zwei Minuten zu Ihrem persönlichen Finanzierungszertifkat.
Infos
| Wohnfläche ca. | 274 m2 |
|---|---|
| Grundstücksfläche | 917 m2 |
| Zimmer | 7 |
Kosten
| Kaufpreis |
1.778.787 € |
|---|
Finanzierungsrechner:
Kaufpreis:
600.000 €
Eigenkapital:
600.000 €
Monatliche Rate
0 €
Effektiver Jahreszins
0 %
Sollzinsbindung
10 Jahre
Bausubstanz & Energieausweis
| Baujahr | unbekannt |
|---|
Beschreibung des Objekts
Ausstattung
Gerne planen wir mit Ihnen zusammen Ihr exklusives Traumhaus mit den Details, die für Sie wichtig sind.
Lage
Budenheim ist eine verbandsfreie Gemeinde im Landkreis Mainz-Bingen in Rheinland-Pfalz. Zum 31. Dezember 2020 lebten hier rund 8600 Menschen. Budenheim ist gemäß Landesplanung als Grundzentrum ausgewiesen.
Sonstige Angaben
Im angegebenen Preis ist das Grundstück bereits enthalten. Gerne planen wir den Hausbau gemeinsam mit Ihnen auch auf Ihrem bereits vorhandenen Grundstück. In einem ausführlichen Beratungsgespräch ermitteln wir für Sie gerne eine detaillierte Gesamtkostenaufstellung. Das Angebot ist unverbindlich und freibleibend, exklusive der Baunebenkosten wie z.B. Hausanschlüsse, Außenanlagen... Abbildungen und Grundrisse zeigen Extras! Das Haus ist gerechnet " Zur Ausstattung fertig"
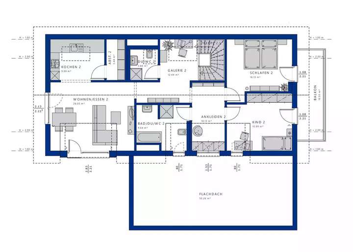
Grundriss
csm CEL 274 V2 DG-75 b4014d6b8
>
>
csm CEL 274 V2 EG-75 efcce7572
>
>
Adresse
55257 Budenheim
Interessante Orte
Preis- und Lageinformationen
Preistrend für Bestandsimmobilien in Budenheim