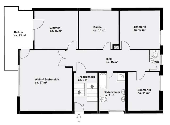
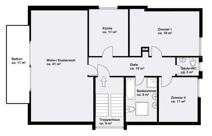
Dieses freistehende Dreifamilienhaus aus dem Jahr 1978 steht auf einem rund 560 m² großen Grundstück und bietet etwa 318 m² Wohnfläche. Es umfasst zwei Vier-Zimmer-Wohnungen (circa 111 m² im Hochparterre und circa 109 m² im ersten Obergeschoss) sowie eine Drei-Zimmer-Wohnung im Dachgeschoss (circa 98 m²). Alle Wohnungen verfügen über einen Balkon, eine Fußbodenheizung, ein Tageslichtbad, ein Gäste-WC sowie einen separaten Küchenraum.
Die Wohnung im Hochparterre mit direktem Gartenzugang ist nur noch bis Ende Januar 2026 vermietet. Die Wohnungen im ersten Obergeschoss und im Dachgeschoss sind langjährig vermietet und erzielen stabile Mieten. Das rund 111 m² große Untergeschoss bietet für jede Wohnung einen separaten Kellerraum sowie weitere Nutzräume und einen gemeinschaftlichen Waschraum.
Die Außenanlage präsentiert sich ebenso wie das Haus selbst gepflegt und umfasst ein Gartenhaus, einen umlaufenden Garten sowie ein Carport mit drei PKW-Stellplätzen. Der Garten steht aktuell exklusiv der Hochparterre-Wohnung zur Verfügung.
Hervorzuheben ist außerdem die erst kürzlich abgeschlossene energetische Sanierung, bei der das Gebäude von einer Ölheizung auf eine moderne, effiziente Wärmepumpe umgestellt wurde. Dadurch verbessert sich die Energiebilanz und es entsteht langfristiges Einspar- und Wertsteigerungspotenzial.
Zusammenfassung:
– Vier-Zimmer-Wohnung im Hochparterre, circa 111 m², ab Februar 2026 mietfrei, mit Gartenzugang
– Vier-Zimmer-Wohnung, 1. Obergeschoss, 109 m², seit 1978 vermietet
– Dreizimmerwohnung im Dachgeschoss, circa 98 m², seit 1978 vermietet
Die Umrüstung auf eine Wärmepumpe fand erst vor wenigen Wochen statt, weshalb bislang weder die Anpassung der Nebenkosten noch die Umlage der energetischen Sanierung auf die Mieter:innen umgesetzt sind.
Das Haus überzeugt durch seine ruhige Lage und die gute Erreichbarkeit von Einkaufsmöglichkeiten, öffentlichen Verkehrsmitteln, Schulen und Freizeitangeboten. Gleichzeitig laden die umliegenden Grünflächen zu Spaziergängen und Erholung im Freien ein. Nutzen Sie die Gelegenheit, dieses modernisierte Mehrfamilienhaus mit seinem vielseitigen Raumangebot kennenzulernen, und überzeugen Sie sich vor Ort von den Vorzügen dieser Immobilie.
Dreifamilienhaus mit Energieeffizienzklasse „B“ und hervorragender Infrastruktur
65451 Kelsterbach
Die vollständige Adresse der Immobilie erhalten Sie vom Anbieter.
Auf Karte anzeigen
Die vollständige Adresse der Immobilie erhalten Sie vom Anbieter.
Finanzierungszertifikat
In nur zwei Minuten zu Ihrem persönlichen Finanzierungszertifkat.
Infos
| Haustyp | Mehrfamilienhaus |
|---|---|
| Etagenzahl | 2 |
| Wohnfläche ca. | 318 m2 |
| Nutzfläche | 139 m2 |
| Grundstücksfläche | 560 m2 |
| Zimmer | 11 |
| Schlafzimmer | 8 |
| Badezimmer | 3 |
| Garage/Stellplatz | Carport |
| Anzahl Garage/Stellplatz | 3 |
Kosten
| Kaufpreis |
1.195.000 € |
|---|---|
| Provision |
Käuferprovision beträgt 5,95% (inkl. MwSt.) des beurkundeten Kaufpreises |
Finanzierungsrechner:
Kaufpreis:
600.000 €
Eigenkapital:
600.000 €
Monatliche Rate
0 €
Effektiver Jahreszins
0 %
Sollzinsbindung
10 Jahre
Bausubstanz & Energieausweis
| Baujahr | 1978 |
|---|---|
| Letzte Sanierung | 2025 |
| Bauphase | Haus fertig gestellt |
| Objektzustand | Modernisiert |
| Qualität der Austattung | Gehoben |
| Heizungsart | Wärmepumpe |
| Wesentliche Energieträger | Strom |
| Energieausweis | liegt vor |
| Energieausweistyp | Bedarfsausweis |
| Energieverbrauchskennwert | 74,6 kWh/(m²*a) |
| Energieeffizienzklasse | B |
74,6
kWh/(m²*a)
Energieeffizienzklasse B
- A+
- A
- B
- C
- D
- E
- F
- G
- H
- 0
- 25
- 50
- 75
- 100
- 125
- 150
- 175
- 200
- 225
- >250
Beschreibung des Objekts
Ausstattung
- Gegensprechanlage
- Fußbodenheizung
- Funkraumthermostate
- Rollläden
- Tageslichtbad
- Wärmepumpe 2025
- Balkon
- Keller
- Gartenhaus
- Drei Carport-PKW-Stellplätze
Lage
Kelsterbach, auch 'Die Perle am Untermain' genannt ist eine kleine Stadt mit ca. 17.000 Einwohnern im hessischen Kreis Gross-Gerau. Sie liegt am südwestlichen Stadtrand von Frankfurt am Main in einem Flussbogen am westlichen Mainufer.
Der Main, die schönen Grünflächen und der Südpark lassen die Stadt zu einem familienfreundlichen Zuhause werden.
Kelsterbach verfügt über eine Vielzahl von Schulen und Kindergärten. Sämtliche Geschäfte des täglichen Bedarfs befinden sich in fussläufiger Nähe. Durch die zentrale Lage im Rhein-Main-Gebiet und die hervorragende Verkehrsanbindung (A3, A5, A60, A66, A67 und B43, als auch den S-Bahn-Anschluss) erreicht man den internationalen Flughafen Frankfurt am Main innerhalb weniger Minuten und die umliegenden Städte Frankfurt am Main, Wiesbaden, Mainz und Darmstadt innerhalb von 15-30 Fahrminuten.
Sonstige Angaben
GELDWÄSCHE: Als Immobilienmaklerunternehmen ist die von Poll Immobilien GmbH nach § 2 Abs. 1 Nr. 14 und § 11 Abs. 1, 2 Geldwäschegesetz (GwG) dazu verpflichtet, bei der Begründung einer Geschäftsbeziehung die Identität des Vertragspartners festzustellen und zu überprüfen, bzw. sobald ein ernsthaftes Interesse an der Durchführung des Immobilienkaufvertrages besteht. Hierzu ist es erforderlich, dass wir nach § 11 Abs. 4 GwG die relevanten Daten Ihres Personalausweises festhalten (wenn Sie als natürliche Person handeln) – beispielsweise mittels einer Kopie. Bei einer juristischen Person benötigen wir eine Kopie des Handelsregisterauszugs, aus welchem der wirtschaftlich Berechtigte hervorgeht. Das Geldwäschegesetz sieht vor, dass der Makler die Kopien bzw. Unterlagen fünf Jahre aufbewahren muss. Als unser Vertragspartner haben Sie auch eine Mitwirkungspflicht nach § 11 Abs. 6 GwG.
HAFTUNG: Wir weisen darauf hin, dass die von uns weitergegebenen Objektinformationen, Unterlagen, Pläne etc. vom Verkäufer bzw. Vermieter stammen. Eine Haftung für die Richtigkeit oder Vollständigkeit der Angaben übernehmen wir daher nicht. Es obliegt daher unseren Kunden, die darin enthaltenen Objektinformationen und Angaben auf ihre Richtigkeit hin zu überprüfen. Alle Immobilienangebote sind freibleibend und vorbehaltlich Irrtümer, Zwischenverkauf- und Vermietung oder sonstiger Zwischenverwertung.
UNSER SERVICE FÜR SIE ALS EIGENTÜMER:
Planen Sie den Verkauf oder die Vermietung Ihrer Immobilie, so ist es für Sie wichtig, deren Marktwert zu kennen. Lassen Sie kostenfrei und unverbindlich den aktuellen Wert Ihrer Immobilie professionell durch einen unserer Immobilienspezialisten einschätzen. Unser bundesweites und internationales Netzwerk ermöglicht es uns, Verkäufer bzw. Vermieter und Interessenten bestmöglich zusammenzuführen.
Grundriss
Hochparterre
>
>
Obergeschoss
>
>
Dachgeschoss
>
>
Untergeschoss
>
>
Adresse
65451 Kelsterbach
Interessante Orte
Preis- und Lageinformationen
Preistrend für Bestandsimmobilien in Kelsterbach