-mehrere Generationen unter einem Dach vereint - diese traditionelle Wohnform gewinnt wieder zunehmend an Bedeutung. Wichtig dabei ist, dass jeder Bewohner, egal ob groß oder klein, ob alt oder jung, den gleichen Wohnkomfort genießt
- im Haupthaus findet eine Familie mit bis zu zwei Kindern eine komfortable Wohnwelt mit großen Gemeinschaftsflächen und gemütlichen Rückzugsbereichen vor
2FH-Den Winter im eigenen Garten erleben- bauen Sie mit BIEN ZENKER Ihr TRAUMHAUS inkl. Baugrundstü
55413 Trechtingshausen
Die vollständige Adresse der Immobilie erhalten Sie vom Anbieter.
Auf Karte anzeigen
Die vollständige Adresse der Immobilie erhalten Sie vom Anbieter.
Finanzierungszertifikat
In nur zwei Minuten zu Ihrem persönlichen Finanzierungszertifkat.
Infos
| Wohnfläche ca. | 203 m2 |
|---|---|
| Grundstücksfläche | 466 m2 |
| Zimmer | 8 |
Kosten
| Kaufpreis |
787.766 € |
|---|
Finanzierungsrechner:
Kaufpreis:
600.000 €
Eigenkapital:
600.000 €
Monatliche Rate
0 €
Effektiver Jahreszins
0 %
Sollzinsbindung
10 Jahre
Bausubstanz & Energieausweis
| Baujahr | unbekannt |
|---|
Beschreibung des Objekts
Ausstattung
Gerne planen wir mit Ihnen zusammen Ihr exklusives Traumhaus mit den Details, die für Sie wichtig sind.
Lage
Niederheimbach ist eine Ortsgemeinde im Landkreis Mainz-Bingen in Rheinland-Pfalz. Sie gehört der Verbandsgemeinde Rhein-Nahe an, die ihren Verwaltungssitz in der Stadt Bingen am Rhein hat. Seit 2002 ist Niederheimbach Teil des UNESCO-Welterbes Oberes Mittelrheintal
Sonstige Angaben
-Im angegebenen Preis ist das Grundstück bereits enthalten
-Gerne planen wir den Hausbau gemeinsam mit Ihnen auch auf Ihrem bereits vorhandenen Grundstück
-In einem ausführlichen Beratungsgespräch ermitteln wir für Sie gerne eine detaillierte Gesamtkostenaufstellung
-Das Angebot ist unverbindlich und freibleibend, exklusive der Baunebenkosten wie z.B. Hausanschlüsse, Außenanlagen...
-Abbildungen und Grundrisse zeigen Extras!
-Das Haus ist gerechnet " Zur Ausstattung fertig"
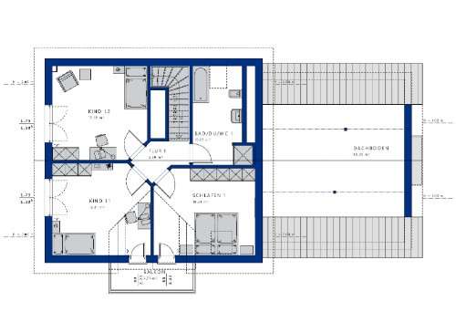
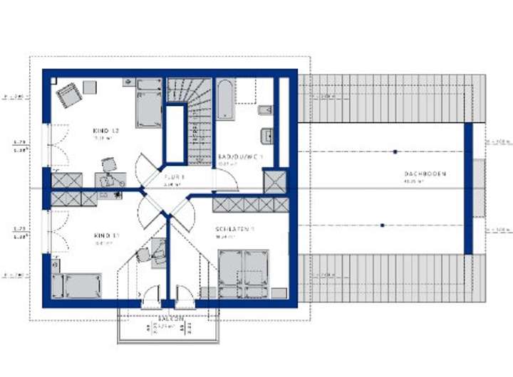
Grundriss
92859-6827-3-g
>
>
92860-6827-4-g
>
>
Adresse
55413 Trechtingshausen
Interessante Orte
Preis- und Lageinformationen
Preistrend für Bestandsimmobilien in Trechtingshausen