Einfamilienhaus mit Garage und Terrasse.
Das Haus ist ein Okal-Fertighaus aus 1971 und dementsprechend renovierungsbedürftig.
+++ Einfamilienhaus mit Garage, Garten und Terrasse +++
38324 Kissenbrück
Die vollständige Adresse der Immobilie erhalten Sie vom Anbieter.
Auf Karte anzeigen
Die vollständige Adresse der Immobilie erhalten Sie vom Anbieter.
Finanzierungszertifikat
In nur zwei Minuten zu Ihrem persönlichen Finanzierungszertifkat.
Infos
| Haustyp | Einfamilienhaus |
|---|---|
| Etagenzahl | 1 |
| Wohnfläche ca. | 107 m2 |
| Grundstücksfläche | 508 m2 |
| Bezugsfrei ab | nach Vereinbarung |
| Zimmer | 4 |
| Schlafzimmer | 3 |
| Badezimmer | 1 |
| Garage/Stellplatz | Garage |
| Anzahl Garage/Stellplatz | 1 |
Kosten
| Kaufpreis |
110.000 € |
|---|---|
| Provision |
3,57% Käuferprovision inkl. MwSt. 3,57 % Käuferprovision inkl. MwSt., verdient und fällig mit Beurkundung des notariellen Kaufvertrages. Der Immobilienmakler hat einen provisionspflichtigen Maklervertrag mit dem Verkäufer in gleicher Höhe abgeschlossen. |
Finanzierungsrechner:
Kaufpreis:
600.000 €
Eigenkapital:
600.000 €
Monatliche Rate
0 €
Effektiver Jahreszins
0 %
Sollzinsbindung
10 Jahre
Bausubstanz & Energieausweis
| Baujahr | 1971 |
|---|---|
| Objektzustand | Renovierungsbedürftig |
| Heizungsart | Öl-Heizung |
| Wesentliche Energieträger | Öl |
| Energieausweis | liegt vor |
| Energieausweistyp | Bedarfsausweis |
| Energieverbrauchskennwert | 316,3 kWh/(m²*a) |
| Energieeffizienzklasse | H |
316,3
kWh/(m²*a)
Energieeffizienzklasse H
- A+
- A
- B
- C
- D
- E
- F
- G
- H
- 0
- 25
- 50
- 75
- 100
- 125
- 150
- 175
- 200
- 225
- >250
Beschreibung des Objekts
Ausstattung
- Einfamilienhaus, freistehend
- Okal-Fertighaus, eingeschossig
- Objekt ist renovierungsbedürftig
- Wohnfläche ca. 107 qm
- 3 Schlafzimmer
- 1 Wohnzimmer
- 1 Badezimmer
- Abstellraum
- Baujahr 1971
- komplett unterkellert
- Garage
- Garten
- Heizung aus 1991
- Fenster aus 1971
- gebrauchte Einbauküche
- Kellerausgang
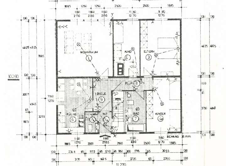
Hinweis zum Grundriss: Zum Zeitpunkt der Erstellung der Immobilie, waren im Erdgeschoß 3 Schlafzimmer vorhanden. Durch eine Grundrissveränderung sind es aktuell nur 2 Schlafzimmer. Im Rahmen notwendiger Renovierungsarbeiten, kann aber der ehem. Zustand wieder hergestellt werden.
Lage
Kissenbrück, Landkreis Wolfenbüttel
Grundriss
EG Grundriss aktuell
>
>
EG Grundriss alt
>
>
Keller Grundriss
>
>
Adresse
38324 Kissenbrück
Interessante Orte
Preis- und Lageinformationen
Preistrend für Bestandsimmobilien in Kissenbrück