Dieses attraktive, in weiten Teilen hochwertig modernisierte Mehrfamilienhaus befindet sich in ruhiger Höhenlage von Reichelsheim-Klein Gumpen und stellt eine hervorragende Option für Kapitalanleger oder eine Nutzung durch mehrere Generationen dar. Es umfasst 6 Wohneinheiten mit sehr guten Vermietungsaussichten. Die derzeitige Jahresnettokaltmiete beträgt rund 55.000 € – mit weiterem Potenzial für Miet- und Wertsteigerungen, was eine Rendite von nahezu 6 % ermöglicht.
Das massiv errichtete Gebäude wurde in den vergangenen Jahren umfangreich saniert. Besonders hervorzuheben sind die modernen Bäder, erneuerte Fenster mit 3-fach-Verglasung, zeitgemäße Elektro- und Sanitärinstallationen, neue Bodenbeläge sowie weitere bauliche Verbesserungen. Die Fassadengestaltung und die Modernisierung des Treppenhauses stehen noch aus.
Zum Haus gehören 7 Stellplätze, die den Wohnkomfort für Mieter und Besucher zusätzlich erhöhen.
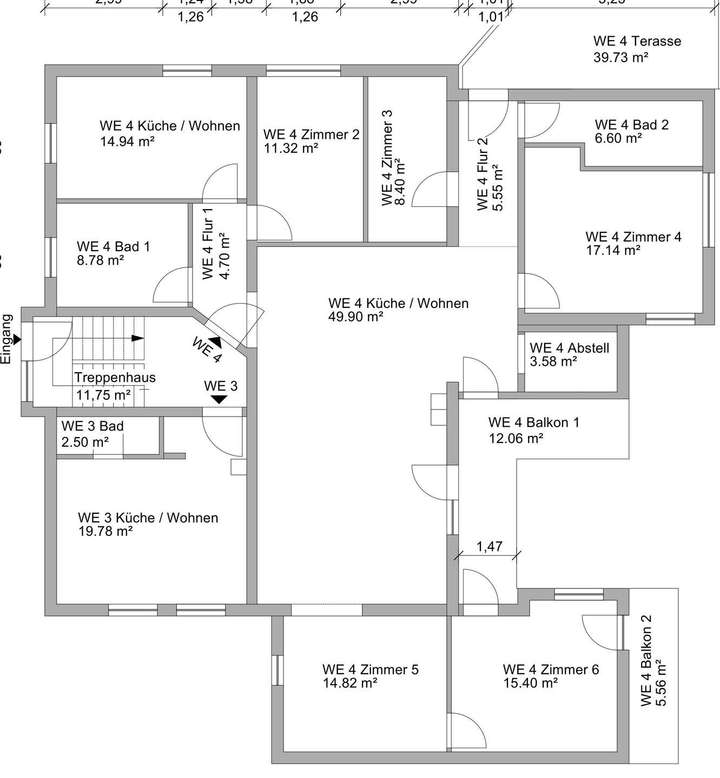
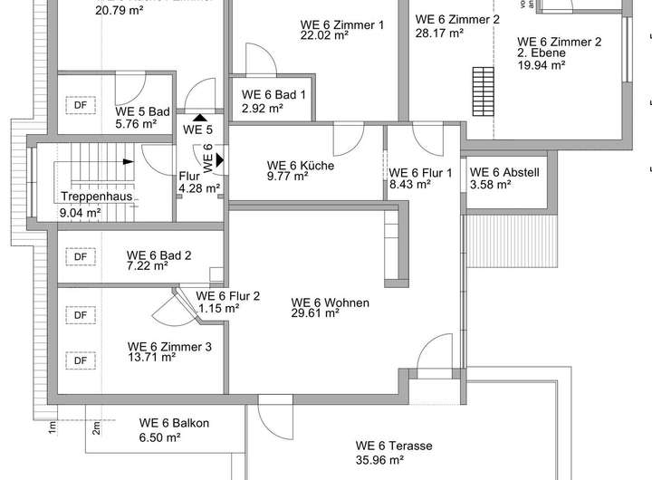
Aufteilung der Wohnungen:
2 Apartments à ca. 22 m² – perfekt geeignet für Singles, Pendler oder als Monteurwohnungen
1 Wohnung mit ca. 53 m² – praktischer 2-Zimmer-Schnitt
1 Wohnung mit ca. 74 m² – familienfreundlich, mit modernem Bad
1 große Wohnung mit ca. 187 m²
1 große Wohnung mit ca. 146 m² – großzügig geschnitten, ideal für Eigennutzer, mit herrlichem Ausblick
Die Dachgeschosswohnung punktet mit einem beeindruckenden Panoramablick über die Natur des Odenwaldes.
Ein Großteil der Mietverhältnisse wurde erst vor kurzer Zeit abgeschlossen.
Reichelsheim! Gute Rendite: Saniertes Mehrfamilienhaus
64297 Darmstadt
Die vollständige Adresse der Immobilie erhalten Sie vom Anbieter.
Auf Karte anzeigen
Die vollständige Adresse der Immobilie erhalten Sie vom Anbieter.
Finanzierungszertifikat
In nur zwei Minuten zu Ihrem persönlichen Finanzierungszertifkat.
Infos
| Haustyp | Mehrfamilienhaus |
|---|---|
| Etagenzahl | 3 |
| Wohnfläche ca. | 505 m2 |
| Grundstücksfläche | 986 m2 |
| Bezugsfrei ab | sofort |
| Zimmer | 16 |
| Anzahl Garage/Stellplatz | 7 |
Kosten
| Kaufpreis |
849.000 € |
|---|---|
| Provision |
4,76% Die Provision in Höhe von ist fällig mit der Beurkundung beim Notar. |
Finanzierungsrechner:
Kaufpreis:
600.000 €
Eigenkapital:
600.000 €
Monatliche Rate
0 €
Effektiver Jahreszins
0 %
Sollzinsbindung
10 Jahre
Bausubstanz & Energieausweis
| Baujahr | 1972 |
|---|---|
| Letzte Sanierung | 2025 |
| Bauphase | Haus fertig gestellt |
| Objektzustand | Saniert |
| Qualität der Austattung | Gehoben |
| Heizungsart | Zentralheizung |
| Wesentliche Energieträger | Öl |
| Energieausweis | liegt vor |
| Energieausweistyp | Bedarfsausweis |
| Energieverbrauchskennwert | 165,0 kWh/(m²*a) |
| Energieeffizienzklasse | F |
165,0
kWh/(m²*a)
Energieeffizienzklasse F
- A+
- A
- B
- C
- D
- E
- F
- G
- H
- 0
- 25
- 50
- 75
- 100
- 125
- 150
- 175
- 200
- 225
- >250
Beschreibung des Objekts
Ausstattung
Ausstattung & Highlights
Umfangreiche Sanierungen bereits erfolgt (Fenster, Bäder, Elektrik, Wasser, Dämmung u.v.m.)
Sehr hochwertige, modern gestaltete Bäder mit ebenerdigen Duschen, großformatigen Fliesen, teilweise Badewannen und Massivholz-Waschtischen
Möglichkeit zum Ausbau einer Dachterrasse im oberen Bereich sowie weitere Potenziale für Modernisierung und Wertsteigerung
6 PKW-Stellplätze auf dem Grundstück
Kurze Fahrzeit nach Darmstadt: ca. 30 Minuten
Lage
Klein-Gumpen ist ein beliebter Ortsteil von Reichelsheim im Herzen des Odenwaldes. Die naturreiche Umgebung bietet hervorragende Lebensqualität, Ruhe und Erholung. Gleichzeitig ist die Anbindung an das Rhein-Main-Gebiet, insbesondere Darmstadt, sehr gut. Einkaufsmöglichkeiten, Schulen, Gastronomie und Naherholung sind schnell erreichbar.
Sonstige Angaben
Beim Kauf der Immobilie fällt für den Käufer eine Provision in Höhe von 4,76% inkl. Mehrwertsteuer des Kaufpreises an.
Grundriss
grundriss_UG
>
>
grundriss_EG
>
>
grundriss_OG
>
>
Adresse
64297 Darmstadt
Interessante Orte
Preis- und Lageinformationen
Preistrend für Bestandsimmobilien in Eberstadt