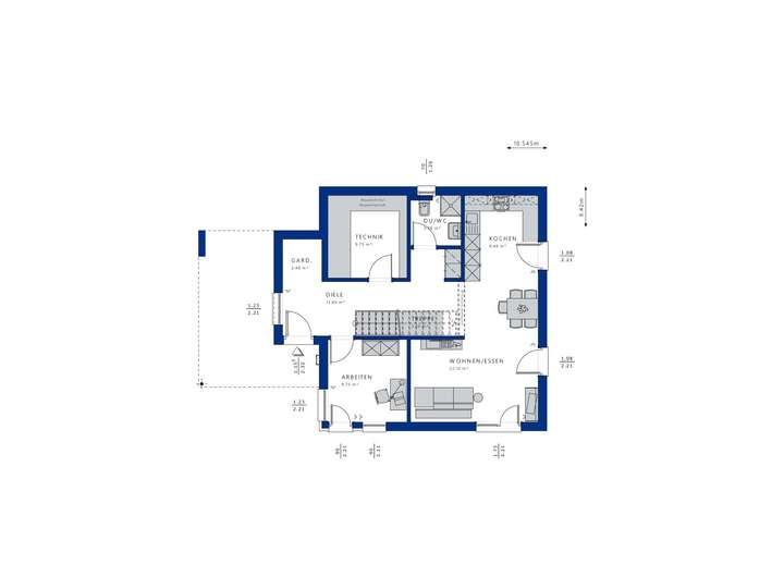
Das projektierte Fertighaus EVOLUTION 136 von Bien-Zenker kombiniert modernes Design mit durchdachter Funktionalität. Mit 140 m² Wohnfläche und einem großzügigen Grundstück von 1100 m² bietet dieses Haus ausreichend Raum für Ihre individuellen Wünsche und Bedürfnisse. Die Architektur beeindruckt mit zwei ansprechenden Satteldach-Varianten, die nicht nur optisch überzeugen, sondern auch ein harmonisches Wohnklima schaffen. Die intelligente Raumaufteilung im Erdgeschoss verbindet das Wohnen und Arbeiten perfekt mit den individuellen Rückzugsräumen im Obergeschoss. Besonders hervorzuheben ist die geradläufige Treppe, die die Diele zum einladenden Mittelpunkt des Hauses macht. Hier fühlen Sie sich sofort willkommen.
Die Ausstattung lässt keine Wünsche offen und sorgt für einen angenehmen und komfortablen Alltag. Das Haus bietet fünf Zimmer, darunter drei Schlafzimmer und zwei Badezimmer, die optimal miteinander verknüpft sind. Diese Aufteilung ermöglicht Ihrer Familie, Privatsphäre zu genießen und gleichzeitig gemeinsame Zeit in den hellen, lichtdurchfluteten Wohnräumen zu verbringen. Die Erwachsenen können sich in Ruhe zurückziehen, während die Kinder in ihren eigenen Zimmern spielen und lernen können. Diese durchdachte Gestaltung fördert ein harmonisches Zusammenleben und erfüllt alle Anforderungen an modernes Wohnen.
Die Ausbaustufe, die wir für Sie übernehmen, ist umfassend und schlüsselfertig. Vom Rohbau bis zur letzten Fliese kümmern wir uns um den gesamten Innenausbau und stellen sicher, dass alle Anforderungen des staatlichen Qualitätssiegels für Nachhaltigkeit erfüllt werden. Dies bedeutet für Sie maximalen Komfort während des Bauprozesses und die Möglichkeit, attraktive KfW-Förderungen in Anspruch zu nehmen. So können Sie sich entspannt zurücklehnen, während wir Ihr Traumhaus verwirklichen.
Bei Bien-Zenker ist es nie nur »Haus.« Es ist Zuhause, es ist Ankommen, es ist Familie. Bien-Zenker, das sind 80.000 gebaute Häuser, mehr als 700 Mitarbeitende und über 115 Jahre Erfolgsgeschichte. Der Pionier des Fertighauses mit Sitz im hessischen Schlüchtern zählt zu den größten und erfahrensten Fertighausanbietern Deutschlands. Dank Know-how, Leidenschaft und Einfühlungsvermögen wird jede Baufamilie individuell und kompetent beraten und unterstützt - bis sie den Schlüssel in die Tür des eigenen Heims stecken können. Mit wohngesunden Materialien und zukunftsweisenden Standards ist nicht nur jedes Bien-Zenker Haus für die Zukunft gerüstet, sondern auch jeder Bauherr.
Grundrisse und Abbildungen können Extras zeigen. Flächenangaben nach DIN 277.
Bien-Zenker: Ihre individuell geplante Wohlfühloase für die Familie
22457 Hamburg
Die vollständige Adresse der Immobilie erhalten Sie vom Anbieter.
Auf Karte anzeigen
Die vollständige Adresse der Immobilie erhalten Sie vom Anbieter.
Finanzierungszertifikat
In nur zwei Minuten zu Ihrem persönlichen Finanzierungszertifkat.
Infos
| Haustyp | Einfamilienhaus |
|---|---|
| Wohnfläche ca. | 140 m2 |
| Grundstücksfläche | 1.100 m2 |
| Zimmer | 5 |
| Schlafzimmer | 3 |
| Badezimmer | 2 |
Kosten
| Kaufpreis |
1.300.450 € |
|---|
Finanzierungsrechner:
Kaufpreis:
600.000 €
Eigenkapital:
600.000 €
Monatliche Rate
0 €
Effektiver Jahreszins
0 %
Sollzinsbindung
10 Jahre
Bausubstanz & Energieausweis
| Baujahr | unbekannt |
|---|---|
| Bauphase | Haus in Planung (projektiert) |
| Qualität der Austattung | Gehoben |
Beschreibung des Objekts
Ausstattung
Der Grundriss des EVOLUTION 136 ist optimal auf die Bedürfnisse Ihrer Familie abgestimmt. Mit insgesamt fünf Zimmern, darunter drei großzügige Schlafzimmer, haben Sie und Ihre Liebsten ausreichend Platz zur Entfaltung. Die zwei Badezimmer sorgen für zusätzlichen Komfort und ermöglichen es, dass morgens jeder seinen eigenen Raum hat, um sich frisch zu machen. Das durchdachte Design fördert eine harmonische Wohnatmosphäre, die Privatsphäre und Gemeinschaft gleichermaßen berücksichtigt.
Besonders hervorzuheben sind die lichtdurchfluteten Räume, die dank der großen Fensterelemente eine freundliche und einladende Atmosphäre schaffen. Genießen Sie die Zeit auf Ihrer Terrasse oder im Garten, der Ihnen durch die großzügige Grundstücksgröße von 1100 m² viel Platz für Freizeitaktivitäten und Entspannung bietet. Zudem ist die geradläufige Treppe ein echtes Highlight, die nicht nur funktional ist, sondern auch als stilvolles Designelement fungiert. Die Verbindung von Innen- und Außenbereichen wird hier durch die luxuriösen Raumgestaltungen unterstrichen.
Mit der schlüsselfertigen Ausbaustufe bieten wir Ihnen ein Rundum-sorglos-Paket, das Ihnen den Bauprozess erheblich erleichtert. Alle Bauarbeiten, vom Rohbau bis zum Innenausbau, werden von uns professionell durchgeführt, sodass Sie sich um nichts kümmern müssen. Im Preis sind alle wichtigen Komponenten enthalten, sodass Sie ein Höchstmaß an Planungssicherheit genießen. Zudem erfüllen wir alle Anforderungen des staatlichen Qualitätssiegels für Nachhaltigkeit, was Ihnen nicht nur ein gutes Gefühl gibt, sondern auch die Möglichkeit bietet, von attraktiven KfW-Förderungen zu profitieren.
Lage
Hamburg, die charmante Hansestadt, bietet Ihnen eine Vielzahl an Möglichkeiten für Bildung, Gesundheit, Einkauf und Freizeit. In der Umgebung finden Sie zahlreiche Schulen, von Grundschulen bis hin zu Gymnasien, die eine optimale Bildung für Ihre Kinder garantieren. Für die Gesundheitsversorgung sorgen zahlreiche Ärzte und Kliniken, die bequem zu erreichen sind. Einkaufsmöglichkeiten sind in unmittelbarer Nähe vorhanden, sei es in großen Einkaufszentren oder den kleinen, individuellen Geschäften, die das Stadtbild prägen.
Die Anbindung an den öffentlichen Nahverkehr ist hervorragend, sodass Sie schnell und unkompliziert in die Innenstadt oder zu anderen Stadtteilen gelangen. Dank der guten Erreichbarkeit der Autobahn sind auch Ausflüge ins Umland oder Reisen in andere Städte problemlos möglich. Hamburg bietet Ihnen nicht nur eine hohe Lebensqualität, sondern auch zahlreiche Freizeitmöglichkeiten, wie Parks, Sporteinrichtungen und kulturelle Angebote, die Ihren Alltag bereichern werden.
Im Hamburger Stadtteil Schnelsen gelegen, profitieren Sie von der ruhigen und dennoch zentralen Lage mit hervorragender Infrastruktur.
Sonstige Angaben
Der hier angegebene Wert zur zu zahlenden Grunderwerbsteuer ist ein vom Portalbetreiber automatisierter Wert, der nicht der Realität entspricht, da die Grunderwerbsteuer nur auf den im Gesamtangebot einberechneten Grundstückswert berechnet wird.
Inkl. PV - Anlage und Speicher für die eigene Stromversorgung
Auf Wunsch können alle Kriterien für eine KFN - QNG Förderung erfüllt werden.
Hausabbildungen mit Sonderwünschen
Grundrisse können individuell geändert und angepasst werden
Auf Wunsch ist ein Keller möglich.
Adresse
22457 Hamburg
Interessante Orte
Preis- und Lageinformationen
Preistrend für Bestandsimmobilien in Schnelsen