Diese elegante Stadtvilla aus dem Jahr 1905 befindet sich in einer der begehrtesten Lagen von Blankenese und verbindet historischen Altbaucharme mit großzügigen Wohnflächen und einer sonnigen Südausrichtung. Das Haus umfasst zwei Wohneinheiten, die gemeinsam oder separat genutzt werden können: eine 112 m² große Gartenwohnung im Hochparterre sowie eine 194 m² große Maisonette-Wohnung im ersten und zweiten Obergeschoss. Zusammen ergeben sie ein beeindruckendes Wohnensemble von insgesamt rund 306 m² Wohnfläche, das auch ideal als großes Familienhaus genutzt werden kann.
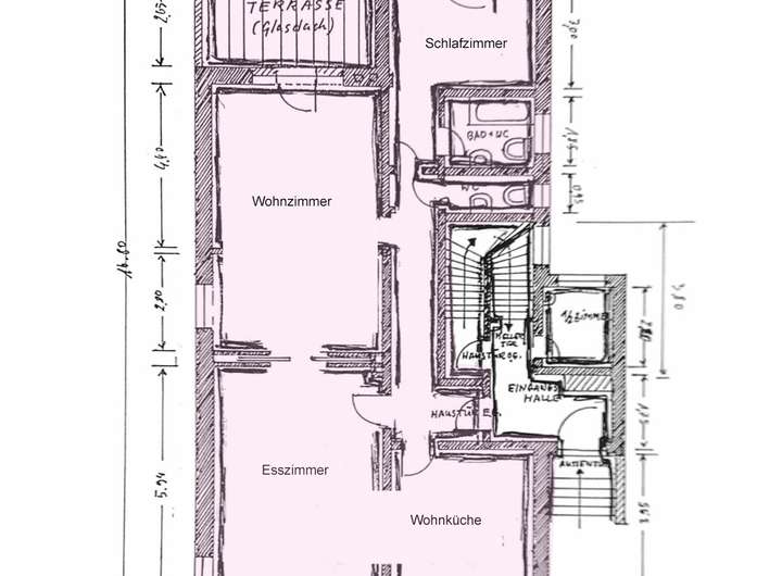
Die Gartenwohnung besticht durch ihre klassische Altbauatmosphäre, elegante Holzböden, hohe Decken und charmante Holzfenster. Das helle Wohn- und Esszimmer öffnet sich direkt zur sonnigen Südterrasse und dem Garten. Eine geräumige Wohnküche mit Platz für einen Esstisch, ein zum Garten ausgerichtetes Schlafzimmer mit zusätzlichem Ausgang ins Freie sowie ein modernes Duschbad sorgen für hohen Wohnkomfort. Ergänzt wird die Einheit durch ein weiteres Zimmer mit kleinem Duschbad im Souterrain, das sich ideal als Gästezimmer, Hobbyraum oder Homeoffice eignet und nicht in die Wohnfläche einberechnet wird. Ein 12 m² großer Kellerraum bietet zusätzlichen Stauraum. In den letzten Jahren wurden wichtige Modernisierungen durchgeführt, darunter die umfassende Sanierung der Wasserleitungen sowie eine Dichtheitsprüfung im Souterrain im Jahr 2024 und die Erneuerung großer Teile der Elektrik im Jahr 2017.
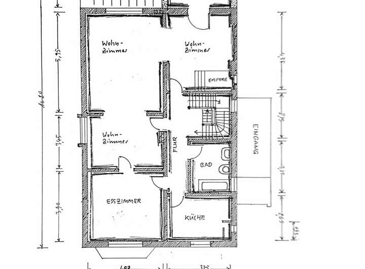
Die darüberliegende Maisonette-Wohnung erstreckt sich über zwei Etagen und beeindruckt durch großzügige, lichtdurchflutete Räume und hochwertige Ausstattungsdetails. Zwei miteinander verbundene Wohnzimmer mit Kamin öffnen sich zur weitläufigen Dachterrasse und schaffen ein außergewöhnliches Wohnambiente. Ergänzt werden sie durch ein elegantes Esszimmer, eine moderne, voll ausgestattete Wohnküche, ein repräsentatives Arbeitszimmer sowie ein stilvolles Vollbad aus Marmor. Im zweiten Obergeschoss befinden sich vier weitere Schlafzimmer und ein Duschbad mit Doppelwaschtisch, wodurch die Einheit optimal auf Familienbedürfnisse zugeschnitten ist.
Bei gemeinsamer Nutzung beider Wohnungen entsteht ein außergewöhnlich großes und flexibles Zuhause mit insgesamt bis zu sechs Schlafzimmern, mehreren Wohn- und Esszimmern, großzügigen Außenbereichen sowie vielfältigen Nutzungsmöglichkeiten für Familie, Gäste oder Homeoffice. Die Kombination aus historischer Architektur, hochwertiger Ausstattung und einer der besten Adressen Hamburgs macht diese Stadtvilla zu einem ausgesprochen attraktiven Angebot für anspruchsvolle Käufer, die Wert auf Stil, Raum und besondere Wohnqualität legen.
Stilvolle Stadtvilla mit Südausrichtung - Toplage mit Charme!
22587 Hamburg
Die vollständige Adresse der Immobilie erhalten Sie vom Anbieter.
Auf Karte anzeigen
Die vollständige Adresse der Immobilie erhalten Sie vom Anbieter.
Finanzierungszertifikat
In nur zwei Minuten zu Ihrem persönlichen Finanzierungszertifkat.
Infos
| Etagenzahl | 3 |
|---|---|
| Wohnfläche ca. | 306 m2 |
| Nutzfläche | 77 m2 |
| Grundstücksfläche | 589 m2 |
| Bezugsfrei ab | 13.12.2025 |
| Zimmer | 11 |
| Schlafzimmer | 6 |
| Badezimmer | 3 |
Kosten
| Kaufpreis |
2.490.000 € |
|---|---|
| Provision |
2,975% Käuferprovision inkl. gesetzl. MwSt., verdient und fällig mit Beurkundung des notariellen Kaufvertrages. Wir haben einen entgeltpflichtigen Maklervertrag über den gleichen Provisionssatz mit dem Verkäufer abgeschlossen. |
Finanzierungsrechner:
Kaufpreis:
600.000 €
Eigenkapital:
600.000 €
Monatliche Rate
0 €
Effektiver Jahreszins
0 %
Sollzinsbindung
10 Jahre
Bausubstanz & Energieausweis
| Baujahr | 1905 |
|---|---|
| Bauphase | Haus fertig gestellt |
| Qualität der Austattung | Luxus |
| Heizungsart | Gas-Heizung |
| Wesentliche Energieträger | Erdgas schwer |
| Energieausweis | liegt vor |
| Energieausweistyp | Verbrauchsausweis |
| Energieverbrauchskennwert | 336,0 kWh/(m²*a) |
Beschreibung des Objekts
Ausstattung
Die Ausstattung der Stadtvilla ist geprägt von klassischen Holzböden, teils in edlem Fischgrätparkett, die den Wohnräumen eine warme und hochwertige Anmutung verleihen. Hohe Decken unterstreichen den großzügigen Altbaucharakter. Die Bäder sind mit Marmor bzw. hochwertigen Fliesen ausgestattet und vermitteln ein elegantes, zeitloses Ambiente. Charmante Holz- und Sprossenfenster runden das stilvolle Gesamtbild ab und sorgen für eine helle, freundliche Wohnatmosphäre.
Lage
Blankenese gehört zu den traditionsreichsten Adressen im Westen Hamburgs – ein Stadtteil, der seine besondere Qualität aus dem Zusammenspiel von maritimem Flair, beeindruckender Architektur und einer außergewöhnlich grünen Umgebung gewinnt. Charakteristisch für Blankenese sind die großzügigen Grundstücke, historische Landhäuser und moderne Villen, die sich harmonisch in die hügelige Landschaft einfügen. Viele Straßen öffnen den Blick auf die Elbe, wodurch sich ein fast mediterranes Lebensgefühl einstellt. Der Ortskern wirkt wie ein eigenständiger kleiner Stadtteil im Stadtteil: entspannt, persönlich und geprägt von individuellen Geschäften, inhabergeführten Läden, Bäckereien und Feinkostadressen. Ergänzend dazu bietet der Süllberg mit seinem traditionsreichen gastronomischen Angebot einen der schönsten Aussichtspunkte Hamburgs. Auch die Nähe zum beliebten Falkensteiner Ufer, einem der naturbelassensten Elbstrände der Stadt, ist ein besonderes Highlight. Blankenese bietet vielfältige Freizeitmöglichkeiten – ob ausgedehnte Spaziergänge entlang der Elbhänge, Laufrunden durch den Baurs Park oder sportliche Aktivitäten in den umliegenden Clubs. Besonders geschätzt wird das aktive Vereinsleben: Segelvereine, Tennis- und Hockeyclubs sowie Reitmöglichkeiten im näheren Umland machen den Stadtteil für Familien und Naturliebhaber gleichermaßen attraktiv. Trotz seiner ruhigen, fast dörflichen Atmosphäre ist Blankenese hervorragend angebunden. Die S-Bahn sowie mehrere Buslinien ermöglichen eine unkomplizierte Verbindung in die Hamburger Innenstadt, und auch Altona oder Othmarschen sind in kurzer Zeit erreichbar. Die Infrastruktur mit Kitas, weiterführenden Schulen und medizinischer Versorgung ist umfassend und hochwertig. Blankenese verbindet damit auf besondere Weise exklusives Wohnen, ein hohes Maß an Privatsphäre und eine Umgebung, die sowohl Rückzug als auch Lebendigkeit ermöglicht – ein Stadtteil, der zu den begehrtesten Wohnlagen der Hansestadt zählt.
Grundriss
Hochparterre
>
>
Erste-Etage
>
>
Zweite-Etage
>
>
Souterrain
>
>
Adresse
22587 Hamburg
Interessante Orte
Preis- und Lageinformationen
Preistrend für Bestandsimmobilien in Blankenese