Sie sind auf der Suche nach einem Domizil in bevorzugter Lage, das nicht nur großzügigen Wohnraum für die ganze Familie, sondern auch Raum für individuelles Leben, produktives Arbeiten und persönliche Entfaltung bereithält? Sie legen dabei Wert auf hohe Lebensqualität, ein durchdachtes Wohnkonzept und eine erstklassige Ausstattung?
DANN SOLLTEN SIE DIESEM ANGEBOT IHRE VOLLE AUFMERKSAMKEIT WIDMEN!
Diese moderne und hochwertig ausgeführte Doppelhaushälfte im Bauhausstil, wurde im Jahr 2012 in massiver Bauweise, voll unterkellert auf einem 191 m² großen Grundstück in Top- Wohnlage von Rodgau errichtet. Neben den oben genannten Attributen verfügt das kfW-70 Niedrigenergiehaus zudem über eine nachhaltige Bauweise mit hoher Energieeffizienz.
Unter Verwendung von ausgesuchten Materialien gepaart mit vielen Highlights, entstand hier ein äußerst komfortables Schmuckstück. Lichtdurchflutete, attraktiv geschnittene Räume mit überwiegend bodentiefen, großen Fenstern und ein wohldurchdachtes Gesamt-Konzept auf drei Wohnetagen, plus ausgebautem Kellergeschoß, garantieren Wohnen auf hohem Niveau. Das Objekt ist prädestiniert als Wohntraum für die ganze Familie, auch Freiberufler und Selbstständige, die Wohnen und Arbeiten an einem Ort verbinden möchten, finden hier ideale Voraussetzungen. Ob kreatives Schaffen im Homeoffice, effizientes Remote Work oder sonstige digitale Geschäftsprozesse, mit einem leistungsstarken 250-Mbit-Internetanschluss und strukturierter CAT-6-Verkabelung im gesamten Haus, sind hier perfekte technische Grundlagen für modernes Arbeiten gegeben.
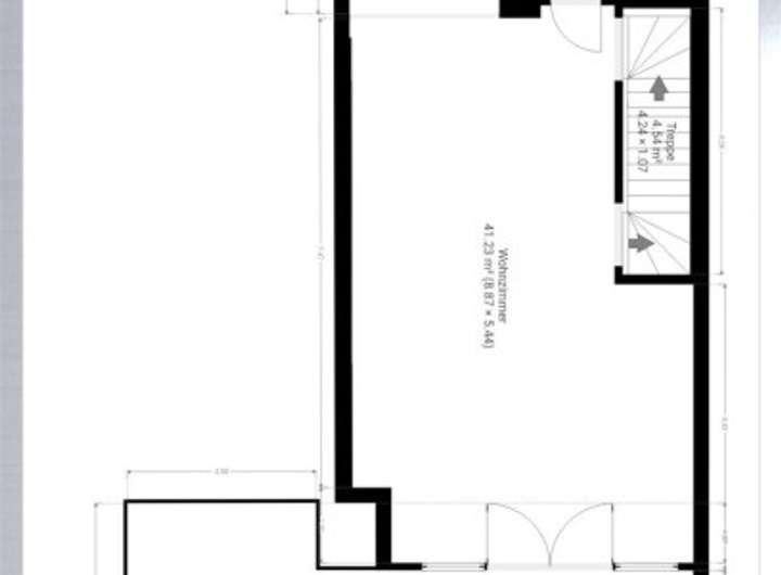
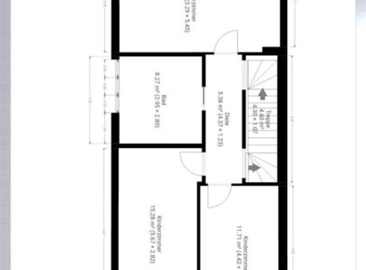
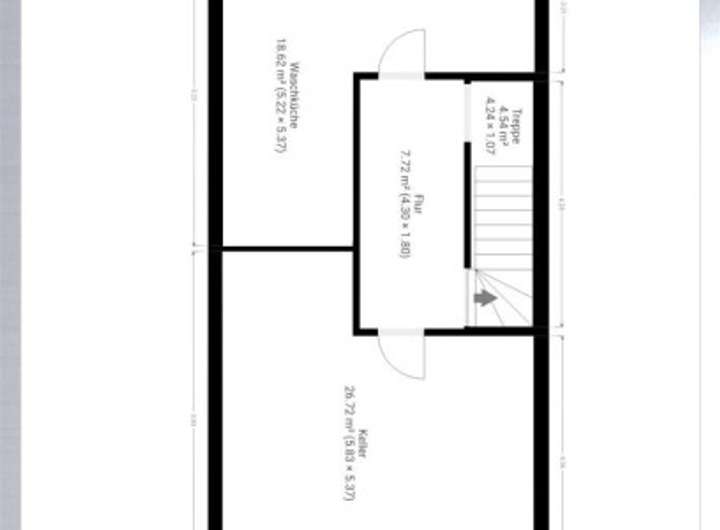
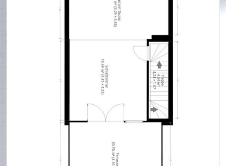
Die Immobilie verfügt mit insgesamt ca. 161 m² Gesamtwohnfläche, und 5 Zimmer auf 3 Wohnetagen über ein immenses Platzangebot mit bei toller Wohnatmosphäre. Zusätzlich hält das Untergeschoß, weitere, großzügige ca. 53 m² Nutzfläche bereit, inklusive einer ca. 27 m² großen, in Wohnqualität ausgebauten Räumlichkeit, die sich ideal als Homeoffice, Gästezimmer oder kreativer Rückzugsort für Hobby und Freizeit eignet.
Auf alle Gegebenheiten und Besonderheiten im Einzelnen einzugehen, würde den Rahmen dieses Exposés sprengen. Deshalb möchten wir hier auch auf den obligatorischen "Haus-Rundgang" verzichten. Die Raumaufteilung der einzelnen Geschosse sowie das Ausstattungsniveau sind aus den beigefügten Grundrissen und Fotobeispielen gut ersichtlich. Eine detaillierte Beschreibung zu den Ausstattungsmerkmalen finden Sie in der nachfolgenden Rubrik.
Ein absolutes Highlight und in jedem Fall erwähnenswert, ist das großzügige, voll ausgebaute, Dachstudio. Hier können Sie genussvolle SPA-Momente in Ihrer ganz privaten Wellness-Oase, ausgestattet mit hochwertiger Sauna, luxuriösem Whirlpool und direktem Zugang zur exklusiven Dachterrasse mit Bangkirai-Echtholzboden erleben, und haben gleichzeitig einen Rückzugsort der Extraklasse für Ihre persönliche Auszeit., hoch über den Dächern von Rodgau. Auch der kleine, pflegeleichte Garten mit Rasenfläche, blickdicht umgeben von Hecken und Zaun, bietet mit gemütlicher Terrasse und elektrisch ausfahrbaren Markise den idealen Rahmen für entspannte Stunden mit der Familie und gesellige Grillabende.
Dieses Objekt müssen Sie vor Ort erleben, eine Besichtigung sagt mehr als 1000 Worte!
***Erstklassige DHH mit vielen Extras in Topp Lage von Rodgau***
63110 Rodgau
Die vollständige Adresse der Immobilie erhalten Sie vom Anbieter.
Auf Karte anzeigen
Die vollständige Adresse der Immobilie erhalten Sie vom Anbieter.
Finanzierungszertifikat
In nur zwei Minuten zu Ihrem persönlichen Finanzierungszertifkat.
Infos
| Haustyp | Doppelhaushaelfte |
|---|---|
| Etagenzahl | 3 |
| Wohnfläche ca. | 161 m2 |
| Nutzfläche | 53 m2 |
| Grundstücksfläche | 191 m2 |
| Zimmer | 5 |
| Badezimmer | 2 |
| Garage/Stellplatz | Garage |
| Anzahl Garage/Stellplatz | 2 |
Kosten
| Kaufpreis |
729.000 € |
|---|---|
| Provision |
Käuferprovision 3,57 % inkl. MwSt. vom Kaufpreis. |
Finanzierungsrechner:
Kaufpreis:
600.000 €
Eigenkapital:
600.000 €
Monatliche Rate
0 €
Effektiver Jahreszins
0 %
Sollzinsbindung
10 Jahre
Bausubstanz & Energieausweis
| Baujahr | 2012 |
|---|---|
| Letzte Sanierung | 2020 |
| Objektzustand | Gepflegt |
| Qualität der Austattung | Gehoben |
| Wesentliche Energieträger | Fernwärme |
| Energieausweis | liegt vor |
| Energieausweistyp | Bedarfsausweis |
| Energieverbrauchskennwert | 83,7 kWh/(m²*a) |
| Energieeffizienzklasse | C |
83,7
kWh/(m²*a)
Energieeffizienzklasse C
- A+
- A
- B
- C
- D
- E
- F
- G
- H
- 0
- 25
- 50
- 75
- 100
- 125
- 150
- 175
- 200
- 225
- >250
Beschreibung des Objekts
Ausstattung
Die Immobilie überzeugt mit einer durchgehend hochwertigen Ausstattung und befindet sich in einem erstklassigen Zustand. Hier gilt "Einziehen und Wohlfühlen"!
Nachfolgend einige Merkmale im Überblick die Ihnen die Vorzüge dieses attraktiven Angebots schnell näherbringen werden:
• Bodenbeläge - Echtholzparkett in Wohnzimmer und Dachstudio,
hochwertiges Laminat in den Schlafzimmern, moderne Fliesen in Küche
und Bädern
• Offen gestaltete, große Wohnküche mit Kochinsel und hochwertigen
Siemens-Elektrogeräten
• Sämtliche Sanitärbereiche ausgestattet mit exklusiven Villeroy & Boch
Installationen: Tageslichtbad OG, mit Wanne und XXL- Familiendusche,
Tageslicht-Wannenbad im DG, Gäste-WC im EG
• Voll ausgebautes Dachstudio mit Wellness-Bereich inklusive Sauna und
Whirlpool - Dachterrasse mit Bangkirai-Echtholzboden und elegantem
Edelstahlgeländer
• Moderne Wärmeversorgung über zentrale Nahwärmestation im
Wohngebiet auf Basis moderner Pellets (Full-Service durch den
Energieanbieter)
• Dreifach verglaste Kunststofffenster, moderner Kamin, klassische
Heizkörper
• Garten mit Rasenfläche, edler Terrasse belegt mit italienischen
Granitplatten, Beschattung mit elektrischer Markise, Gartenhütte für
zusätzlichen Stauraum
• 250 Mbit Internetanschluss - Strukturierte CAT-6-Verkabelung im
gesamten Haus
• Voll ausgebautes Untergeschoss (53m²), Hobbyraum/Gästezimmer in Wohnqualität (27m²), großer Hauswirtschafts-/Lagerraum
Lage
Das Objekt liegt in begehrter, ruhiger Wohnlage von Rodgau-Dudenhofen, in einer verkehrsberuhigten Spielstraße innerhalb eines familienfreundlichen Wohngebiets. Hier können Ihre Kinder noch ungestört vor dem Haus spielen und in einem sicheren Umfeld unbeschwert aufwachsen.
Die Stadt Rodgau gehört insbesondere wegen der hervorragenden Infrastruktur zu den beliebtesten Wohnlagen des Rhein-Main-Gebietes. Eine Grundschule und zwei Kindergärten sind in wenigen Minuten fußläufig erreichbar, weiterführende Schulen aller Lernformen gut angebunden. Rodgau punktet mit einem echten Standortvorteil: Die besonders niedrigen Kindergartengebühren im Vergleich zu vielen anderen Städten, bieten jungen Familien einen spürbaren finanziellen Entlastungseffekt.
Direkt angrenzend laden weitläufige Wiesen, Felder und Wälder zu ausgedehnten Spaziergängen, Fahrradtouren, Joggingrunden oder Hundespaziergängen ein, auch der beliebte Badesee Nieder-Roden ist schnell erreicht. Sportbegeisterte profitieren von mehreren nahegelegenen Fitnessstudios, darüber hinaus bietet die Umgebung ein vielfältiges Freizeit- und Kulturangebot für alle Generationen.
Auch die Versorgung im Alltag ist optimal: Zwei große Einkaufszentren, alle gängigen Discounter sowie zahlreiche gastronomische Angebote befinden sich in unmittelbarer Nähe. Ärzte, Apotheken und weitere Einrichtungen des täglichen Bedarfs sind ebenfalls schnell erreichbar – kurze Wege für alle Erledigungen.
Zudem sind Sie Dank der verkehrsgünstigen Lage flexibel und schnell unterwegs, ob mit dem Auto, Bus oder Bahn. Der Standort verfügt mit schnell erreichbaren Autobahnanschlüssen (B45-A3) über eine hervorragende Anbindung zu den umliegenden Städten Frankfurt, Offenbach, Hanau, Darmstadt und Aschaffenburg, dem Rhein-Main-Flughafen und weiteren Fernzielen. Gleichwohl ist auch ohne PKW aufgrund des gut strukturierten, öffentlichen Personennahverkehrs mit der S-Bahnlinie (S1) und diversen Busverbindungen ein sehr gutes Fortkommen in der Region garantiert.
Sonstige Angaben
Auch für Ihre Fahrzeuge ist mit einer großzügigen Garage mit zusätzlichem Stauraum und einem weiteren Außenstellplatz direkt am Haus bestens gesorgt. Mit der Immobilie erwerben Sie einen Anteil an der Privatstraße und werden Eigentümer einer Bruchteilsgemeinschaft.
Des Weiteren kann auf Wunsch ein professionelles Multi-Funktionstrainingsgerät auf Profisport Niveau im UG übernommen werden.
Alle Angaben beruhen auf Aussage des Verkäufers, eine Garantie kann nicht übernommen werden.
Hier finden Sie unsere Datenschutzerklärung:
https://www.junker-immobilien.net/index.php/datenschutz
Käuferprovision 3,57 % inkl. MwSt. vom Kaufpreis.
Adresse
63110 Rodgau
Interessante Orte
Preis- und Lageinformationen
Preistrend für Bestandsimmobilien in Rodgau