Dieses moderne Doppelhaus vereint elegantes Design, hochwertige Ausstattung und zukunftssichere Technik – perfekt für alle, die Wert auf Stil, Komfort und Energieeffizienz legen.
Jede Haushälfte bietet ca. 112 m² Wohnfläche auf Erd- und Obergeschoss sowie zusätzlich ca. 64 m² Nutzfläche im hellen Keller mit Lichtschächten.
Highlights auf einen Blick:
-Energieeffiziente Bauweise (Niedrigenergiehaus)
-Luft-Wasser-Wärmepumpe & Fußbodenheizung
-Designboden und offene Küche mit Marken-Einbaugeräten
-3-fach verglaste, bodentiefe Fenster & elektrische Außenrollläden
-Heller, vielseitig nutzbarer Keller
-Eine Hälfte frei – eine Hälfte vermietet (2.690 €/Monat)
Die linke Haushälfte ist frei verfügbar und eignet sich ideal für Eigennutzer, die modernes Wohnen in ruhiger Lage suchen.
Die rechte Haushälfte ist für 2.690 € monatlich vermietet – ein attraktives Plus für Kapitalanleger oder Käufer, die Wohnen und Rendite kombinieren möchten.
Der Gesamtpreis für das Doppelhaus beträgt 1.740.000 €, der Erwerb einer einzelnen, freien Hälfte ist ebenfalls möglich.
175 qm Neubau in gefragter Lage
22397 Hamburg
Die vollständige Adresse der Immobilie erhalten Sie vom Anbieter.
Auf Karte anzeigen
Die vollständige Adresse der Immobilie erhalten Sie vom Anbieter.
Finanzierungszertifikat
In nur zwei Minuten zu Ihrem persönlichen Finanzierungszertifkat.
Infos
| Etagenzahl | 3 |
|---|---|
| Wohnfläche ca. | 112 m2 |
| Grundstücksfläche | 405 m2 |
| Zimmer | 4 |
| Schlafzimmer | 3 |
| Badezimmer | 2 |
| Anzahl Garage/Stellplatz | 2 |
Kosten
| Kaufpreis |
870.000 € |
|---|---|
| Provision |
2,00% inkl. 19.00% MwSt. |
Finanzierungsrechner:
Kaufpreis:
600.000 €
Eigenkapital:
600.000 €
Monatliche Rate
0 €
Effektiver Jahreszins
0 %
Sollzinsbindung
10 Jahre
Bausubstanz & Energieausweis
| Baujahr | 2024 |
|---|---|
| Objektzustand | Neuwertig |
| Heizungsart | Wärmepumpe |
| Energieausweis | liegt vor |
| Energieausweistyp | Bedarfsausweis |
| Energieverbrauchskennwert | 16,0 kWh/(m²*a) |
| Energieeffizienzklasse | A+ |
16,0
kWh/(m²*a)
Energieeffizienzklasse A+
- A+
- A
- B
- C
- D
- E
- F
- G
- H
- 0
- 25
- 50
- 75
- 100
- 125
- 150
- 175
- 200
- 225
- >250
Beschreibung des Objekts
Lage
Idyllisch wohnen im grünen Alstertal – Lemsahl-Mellingstedt
Die Lemsahler Landstraße liegt in bevorzugter, naturnaher Lage im beliebten Hamburger Stadtteil Lemsahl-Mellingstedt. Umgeben von Wiesen, Wäldern und der nahen Alster bietet das Umfeld eine hohe Lebensqualität und Ruhe – ideal für Familien, Paare oder naturverbundene Stadtmenschen.
Einkaufsmöglichkeiten, Schulen und Kitas befinden sich in kurzer Entfernung, das Alstertal-Einkaufszentrum (AEZ) und der S-Bahnhof Poppenbüttel sind in ca. 10–15 Minuten erreichbar.
-Die Busstation 176 und 276 sind 4 min. zu Fuß erreichbar
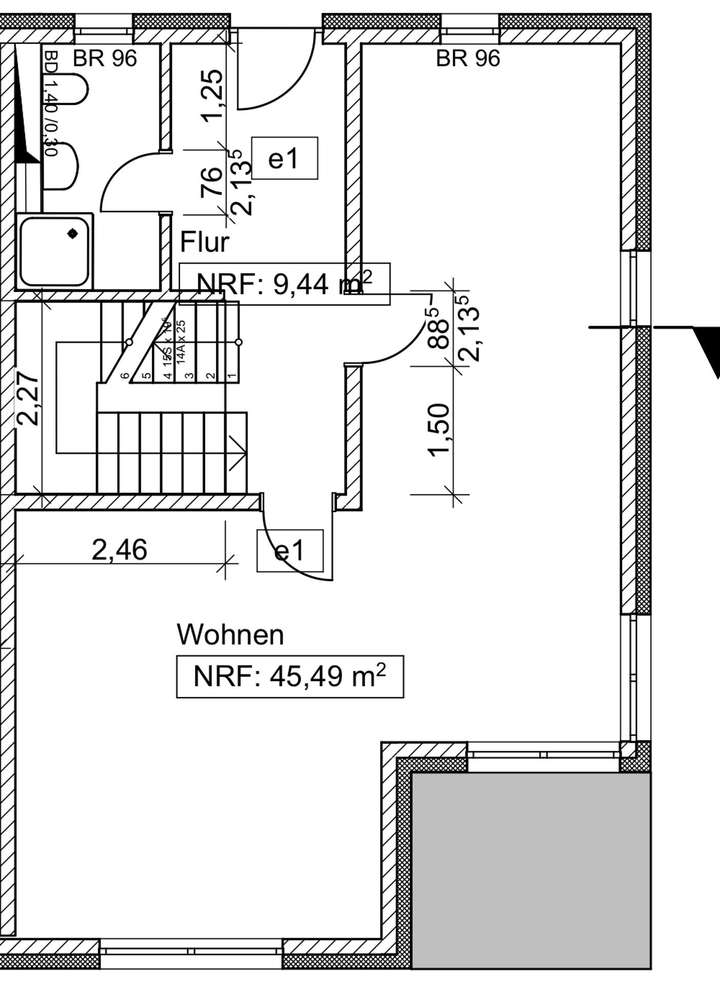
Grundriss
Erdgeschoss
>
>
Obergeschoss
>
>
Kellergeschoss
>
>
Adresse
22397 Hamburg
Interessante Orte
Preis- und Lageinformationen
Preistrend für Bestandsimmobilien in Lemsahl-Mellingstedt