Objektnr: 1064992
Dieses charmante Mehrfamilienhaus im grünen Langgönser Ortsteil Espa bietet vor allem Eigennutzern eine seltene Kombination: großzügiges Wohnen in ruhiger Lage – und gleichzeitig die Möglichkeit, durch eine zusätzliche Wohneinheit fortlaufende Mieteinnahmen zu erzielen oder Wohnraum für Familie, Gäste oder Homeoffice bereitzustellen.
Das Haus wurde 1889 errichtet, 1973 erweitert und über die Jahre fortlaufend gepflegt. Auf insgesamt ca. 208 m² Wohnfläche verteilen sich zwei getrennt nutzbare Wohneinheiten mit insgesamt sieben Zimmern. Ideal für alle, die flexibel bleiben möchten. Die solide Bausubstanz, der funktionale Grundriss und die gepflegte Ausstattung schaffen eine angenehme Wohnatmosphäre. Highlights wie eine Einbauküche, ein Kaminofen, Fußbodenheizung im Bad sowie ein hochwertiger Bodenbelag im Obergeschoss sorgen für Komfort im Alltag. Gleichzeitig überzeugen die Räume durch klare Strukturen, sodass sich viele Modernisierungs- oder Gestaltungsideen unkompliziert umsetzen lassen.
Das pflegeleichte 560 m² große Grundstück bietet mit Terrasse und Balkon schöne Rückzugsmöglichkeiten im Freien. Praktische Extras wie eine Garage, eine kleine Scheune mit direktem Gartenzugang sowie zusätzliche Stauflächen im Untergeschoss erweitern die Nutzbarkeit deutlich – sei es für Hobbys, Werkstatt oder Lager. Die ruhige Nebenstraße, das naturnahe Umfeld und die familienfreundliche Lage machen das Leben hier besonders angenehm. Gleichzeitig bieten diese Faktoren beste Voraussetzungen, falls Sie eine Wohneinheit vermieten möchten. Ein ideales Zuhause für alle, die großzügig wohnen möchten – und zugleich die Option schätzen, durch Vermietung zusätzliche finanzielle Flexibilität zu gewinnen.
Ihr neues Zuhause mit Vermietungspotenzial – Wohnen & Erträge unter einem Dach
35428 Langgöns
Die vollständige Adresse der Immobilie erhalten Sie vom Anbieter.
Auf Karte anzeigen
Die vollständige Adresse der Immobilie erhalten Sie vom Anbieter.
Finanzierungszertifikat
In nur zwei Minuten zu Ihrem persönlichen Finanzierungszertifkat.
Infos
| Haustyp | Mehrfamilienhaus |
|---|---|
| Etagenzahl | 2 |
| Wohnfläche ca. | 208 m2 |
| Grundstücksfläche | 560,17 m2 |
| Bezugsfrei ab | ab sofort |
| Zimmer | 7 |
| Schlafzimmer | 4 |
| Badezimmer | 2 |
| Garage/Stellplatz | Garage |
| Anzahl Garage/Stellplatz | 2 |
Kosten
| Kaufpreis |
299.000 € |
|---|---|
| Provision |
5,95 % Die Provision i.H.v. 5,95 % inkl. MwSt. ist mit Kaufvertragsbeurkundung fällig, sofern der Verkaufspreis über 83.000,00 € liegt. Liegt der Verkaufspreis dagegen bei/unter 83.000,00 €, ist die fest vereinbarte Mindestprovision i.H.v. mind. 5.950,00 € inkl. MwSt. mit Kaufvertragsbeurkundung fällig. Die Mindestprovision fällt insg. nur einmal an, wodurch Verkäufer und Käufer die Mindestprovision dann jeweils mit 2.975,00 € inkl. MwSt. tragen. |
Finanzierungsrechner:
Kaufpreis:
600.000 €
Eigenkapital:
600.000 €
Monatliche Rate
0 €
Effektiver Jahreszins
0 %
Sollzinsbindung
10 Jahre
Bausubstanz & Energieausweis
| Baujahr | 1889 |
|---|---|
| Bauphase | Haus fertig gestellt |
| Objektzustand | Gepflegt |
| Qualität der Austattung | Normal |
| Heizungsart | Gas-Heizung |
| Wesentliche Energieträger | Gas |
| Energieausweis | liegt vor |
| Energieausweistyp | Verbrauchsausweis |
| Energieverbrauchskennwert | 73,1 kWh/(m²*a) |
| Energieeffizienzklasse | B |
73,1
kWh/(m²*a)
Energieeffizienzklasse B
- A+
- A
- B
- C
- D
- E
- F
- G
- H
- 0
- 25
- 50
- 75
- 100
- 125
- 150
- 175
- 200
- 225
- >250
Beschreibung des Objekts
Ausstattung
+ Mehrfamilienhaus in attraktiver Lage von Langgöns Ortsteil Espa, perfekt zur Vermietung
+ Hohes Rendite- und Vermietungspotenzial
+ Das Objekt präsentiert sich in einem guten Zustand
+ Komfort entsteht durch eine solide Ausstattung des Hauses, welche eine Einbauküche, einen Kaminofen, Parkett- und Echtsteinböden umfasst
+ Der Außenbereich umfasst einen Garten und eine Scheune; ein Dachatelier, ein Kellerraum sowie eine Garage bieten weiteren Komfort
Lage
Lage: Die naturnahe Lage bietet viele Naherholungsmöglichkeiten für Ihre zukünftigen Mieter
Bildung und Betreuung: Schulen und Kindergärten in ca. 9 km Entfernung
Nahversorgung: Supermärkte, Apotheken, Postfilialen und Bankfilialen in einem Radius von max. 9 km
Anbindung: Bushaltestelle fußläufig, Bahnhof und Autobahn komfortabel erreichbar
Sonstige Angaben
Vereinbaren Sie noch heute einen Besichtigungstermin!
_____________________________________________________
Alle Angaben sind ohne Gewähr und basieren ausschließlich auf Informationen, die uns von unserem Auftraggeber zur Verfügung gestellt wurden. Wir übernehmen keine Gewähr für die Vollständigkeit, Richtigkeit und Aktualität der Angaben.
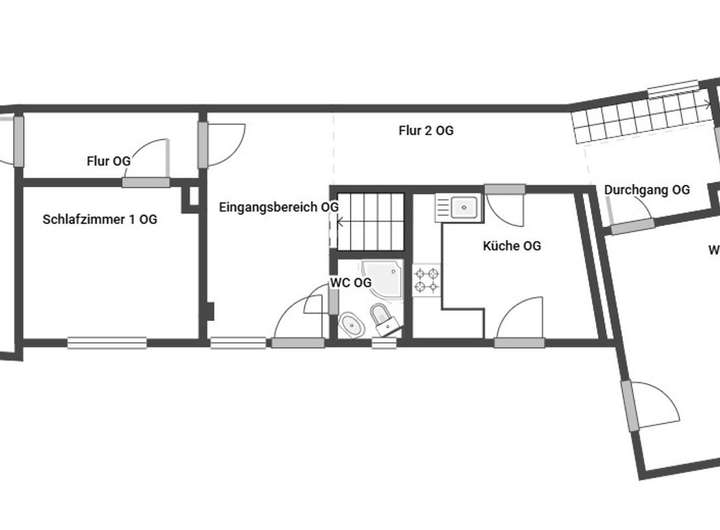
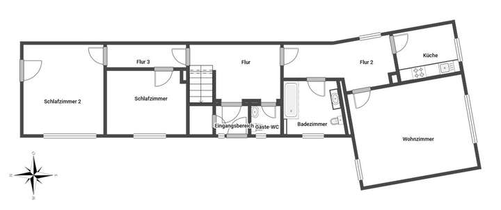
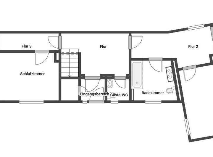
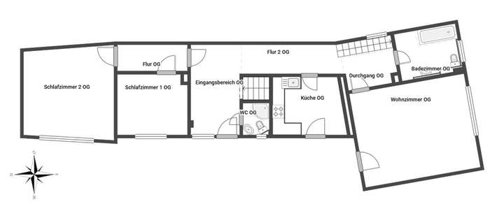
Grundriss
Grundriss Skizze EG
>
>
Grundriss Skizze 1. Etage
>
>
Grundriss Skizze 2. Etage
>
>
Adresse
35428 Langgöns
Interessante Orte
Preis- und Lageinformationen
Preistrend für Bestandsimmobilien in Langgöns