Willkommen in Ihrer neuen Doppelhaushälfte in Langen! Dieses projektiertes Zuhause erfüllt all Ihre Wünsche und Vorstellungen, sodass Sie ein Eigenheim erhalten, das perfekt auf Ihre Bedürfnisse abgestimmt ist. Genießen Sie die großzügige Wohnfläche von 129,80 m² auf zwei Etagen, die Ihnen und Ihrer Familie ausreichend Platz für gemeinschaftliche und ruhige Momente bietet. Mit insgesamt 4 Zimmern, darunter drei Schlafzimmer, einem Badezimmer sowie einem zusätzlichen Gäste-WC, ist dieses Haus ideal für Familien oder Paare, die Wert auf Raum und Komfort legen.
Das durchdachte Bau-Konzept verbindet Funktionalität mit einem modernen Design. Ihre Doppelhaushälfte wird auf einem ansprechenden Grundstück von 390 m² errichtet und entspricht dem KFW55 Standard, was Ihnen nicht nur ein angenehmes Wohnklima, sondern auch niedrige Energiekosten garantiert. Die hochwertige Ausstattung und die durchdachte Raumaufteilung sorgen für ein Wohlfühlambiente, das Sie jeden Tag aufs Neue genießen können.
Ihr Traumhaus in Langen: Doppelhaushälfte inkl. Bodenplatte und Grundstück!
63225 Langen (Hessen)
Die vollständige Adresse der Immobilie erhalten Sie vom Anbieter.
Auf Karte anzeigen
Die vollständige Adresse der Immobilie erhalten Sie vom Anbieter.
Finanzierungszertifikat
In nur zwei Minuten zu Ihrem persönlichen Finanzierungszertifkat.
Infos
| Haustyp | Doppelhaushaelfte |
|---|---|
| Etagenzahl | 2 |
| Wohnfläche ca. | 129 m2 |
| Grundstücksfläche | 390 m2 |
| Zimmer | 4 |
| Schlafzimmer | 3 |
| Badezimmer | 1 |
Kosten
| Kaufpreis |
778.000 € |
|---|
Finanzierungsrechner:
Kaufpreis:
600.000 €
Eigenkapital:
600.000 €
Monatliche Rate
0 €
Effektiver Jahreszins
0 %
Sollzinsbindung
10 Jahre
Bausubstanz & Energieausweis
| Baujahr | 2026 |
|---|---|
| Bauphase | Haus in Planung (projektiert) |
| Qualität der Austattung | Gehoben |
| Heizungsart | Wärmepumpe |
Beschreibung des Objekts
Ausstattung
Das Haus wird als technikfertig angeboten. Das Material zur Fertigstellung ist bereits im Preis komplett enthalten.
Gerne bauen wir das Haus, gegen Aufpreis, weiter aus.
Inklusiv-Leistungen:
- Architektenleistung
- Bau-Sicherheitspaket
- Heizungsanlage- und Elektropaket
- Dreifach verglaste Fenster inkl. Aluminiumrollläden
- Luft-Wasser-Wärmepumpe
- Echtholztreppe
- Bodenbeläge und Tapeten
- Luftdichtigkeitsmessung
- Lichte Raumhöhe von 2,75 m
- Dämm- und Beplankungspaket
- Haustechnik inkl. Rohrleitungen
- Kontrollierte Be- und Entlüftungsanlage mit Wärmerückgewinnung
- Sanitärobjekte
- Innentüren, Zargen und Fliesen
- Steckdosen
Alle Einzelheiten sind in unserer Baubeschreibung nachzulesen.
Lage
Das Haus ist auf einem realen Baugrundstück geplant oder auf einem Grundstück in einer Planungsphase. Das Grundstück erwerben Sie direkt vom Eigentümer. Bitte haben Sie Verständnis, dass wir ohne ein persönliches Gespräch keine Grundstücksdaten weiterleiten. Gern sind wir bei der Wahl Ihres Traumgrundstückes behilflich.
Natürlich können wir Ihren Haustraum auch auf einem anderen Grundstück realisieren, lassen Sie sich dazu in einem unverbindlichen Gespräch zu Ihrem Bauvorhaben beraten.
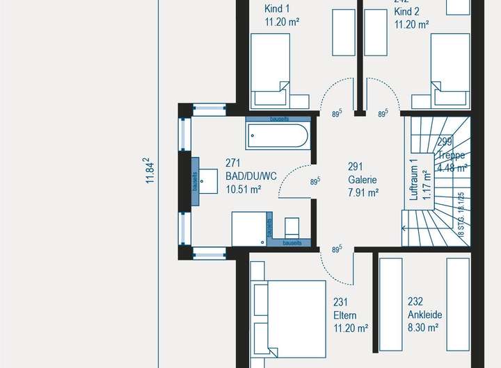
Grundriss
Grundriss
>
>
Grundriss
>
>
Adresse
63225 Langen (Hessen)
Interessante Orte
Preis- und Lageinformationen
Preistrend für Bestandsimmobilien in Langen (Hessen)