Dieses moderne Fertighaus von Livinghouse präsentiert sich als modernes Zuhause, das zeitgemäße Architektur mit einem anspruchsvollen Wohnambiente vereint. Dank der stilvollen Ausstattung und der fortschrittlichen Haustechnik ist der Innenbereich sofort bezugsbereit – einziehen, auspacken und wohlfühlen.
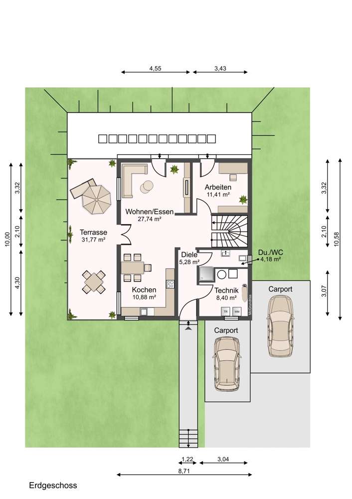
Im Erdgeschoss bildet die hochwertige Einbauküche das Herzstück: Sie bietet großzügige Arbeitsfläche, hohen Komfort und viel Raum für kulinarische Momente.
Der offene Wohn- und Essbereich mit direktem Zugang in den Garten schafft eine Atmosphäre, die Geselligkeit und Wärme ausstrahlt. Ergänzt wird diese Ebene durch ein Duschbad und ein weiteres Zimmer, das zusätzlich Nutzungsmöglichkeiten eröffnet.
Während das Erdgeschoss auf ein lebendiges Miteinander im Familienalltag ausgerichtet ist, bietet das Obergeschoss Ruhe und Privatsphäre. Das Elternschlafzimmer mit separater Ankleide sowie zwei helle, vielseitig nutzbare Zimmer lassen individuelle Gestaltungswünsche zu – ganz gleich, ob Kinderzimmer, Homeoffice oder Hobbyraum. Das moderne Familienbad fügt sich mit klaren Linien harmonisch ein.
Der Außenbereich ist noch fast unberührt und verfügt über Gestaltungsspielraum. Hier entscheiden Sie, wie Garten und Hof am Ende aussehen sollen – Ihre Vorstellungen und Wünsche geben hier den Ton an.
***Willkommen im Familienglück***
56357 Oelsberg
Die vollständige Adresse der Immobilie erhalten Sie vom Anbieter.
Auf Karte anzeigen
Die vollständige Adresse der Immobilie erhalten Sie vom Anbieter.
Finanzierungszertifikat
In nur zwei Minuten zu Ihrem persönlichen Finanzierungszertifkat.
Infos
| Haustyp | Einfamilienhaus |
|---|---|
| Etagenzahl | 2 |
| Wohnfläche ca. | 134 m2 |
| Grundstücksfläche | 615 m2 |
| Zimmer | 6 |
| Badezimmer | 2 |
Kosten
| Kaufpreis |
425.000 € |
|---|---|
| Provision |
3,57% inkl. MwSt.
Käuferprovision |
Finanzierungsrechner:
Kaufpreis:
600.000 €
Eigenkapital:
600.000 €
Monatliche Rate
0 €
Effektiver Jahreszins
0 %
Sollzinsbindung
10 Jahre
Bausubstanz & Energieausweis
| Baujahr | 2021 |
|---|---|
| Heizungsart | Wärmepumpe |
| Wesentliche Energieträger | Strom |
| Energieausweis | liegt vor |
| Energieausweistyp | Bedarfsausweis |
| Energieverbrauchskennwert | 23,0 kWh/(m²*a) |
| Energieeffizienzklasse | A+ |
23,0
kWh/(m²*a)
Energieeffizienzklasse A+
- A+
- A
- B
- C
- D
- E
- F
- G
- H
- 0
- 25
- 50
- 75
- 100
- 125
- 150
- 175
- 200
- 225
- >250
Beschreibung des Objekts
Ausstattung
-Fertighaus von Livinghouse
-Kunststofffenster 3-fach verglast
-Luft-Wärmepumpe aus 2021 von Nibe
-Fußbodenheizung
-Wäscheschacht
-Garage mit Zugang zum Garten
-Zisterne
-Vorrichtung für die Installation einer Photovoltaikanlage vorhanden
Lage
Das Anwesen befindet sich in dem Neubaugebiet der Gemeinde Oelsberg.
Als Nachbargemeinde des Mittelzentrums Nastätten, mit kurzem Fahrweg zur Innenstadt, ist für eine gute Infrastruktur gesorgt. Der Busverkehr ist gut ausgebaut und verbindet Oelsberg mit St. Goarshausen (Bahnanschluss), Wiesbaden und Limburg (ICE-Anschluss).
Das Mittelzentrum Nastätten bietet alle wichtigen Versorgungsmöglichkeiten über Lebensmittelmärkte bis hin zu Fachärzten und einem Krankenhaus.
Die Kindergärten, Grundschule und weiterführende Schulen bis hin zum Abitur sind in Nastätten ansässig, auch das nahe St. Goarshausen bietet ein Gymnasium.
Sonstige Angaben
Gefällt Ihnen unser Angebot? Dann zögern Sie nicht und melden sich bei uns.
Wir zeigen Ihnen das Anwesen in einem gemeinsamen Termin vor Ort und begleiten Sie bei den folgenden Schritten zum Kauf Ihres eigenen Zuhauses.
Sie haben Fragen zur Finanzierung oder suchen einen Finanzierungspartner? Auch hier stehen wir Ihnen gerne zur Seite.
Oder haben Sie gleichzeitig eine Immobilie zum Verkauf? Wir kümmern uns darum!
Wir haben dieses Exposé mit Sorgfalt und nach bestem Wissen erstellt. Das Angebot erfolgt freibleibend, alle Angaben beruhen auf uns erteilten Informationen von Dritten.
Zwischenverkauf und Irrtum bleiben vorbehalten.
Wir weisen darauf hin, dass vorhandene Grundrisse nicht maßstabsgetreu sind, Maße, Angaben und Details abweichen können. Für die Richtigkeit, Vollständigkeit und Aktualität der Angaben können wir keine Gewähr übernehmen, auch nicht für mögliche Folgenutzungen der Immobilie.
Die Funktionsfähigkeit der technischen Anlagen haben wir bestmöglich erfragt, können jedoch im Einzelfall hierfür keine Gewähr übernehmen.
Selbstverständlich erhalten Sie bei näherem Interesse die Möglichkeit, das Haus durch Experten Ihrer Wahl ausführlich prüfen und begutachten zu lassen. Für die Klärung Ihrer offenen Fragen stehen wir Ihnen gerne zur Verfügung.
Doch nicht die richtige Immobilie? Dann schauen Sie sich unser weiteres Angebot an: www.zimmermann-immobilien.eu
Grundriss
45105_761423_2001791_106-1183_
>
>
45105_761423_2001790_106-1183_
>
>
Adresse
56357 Oelsberg
Interessante Orte
Preis- und Lageinformationen
Preistrend für Bestandsimmobilien in Oelsberg