In ruhiger Lage. nicht weit von Wald und Feld, in einem Ortsteil von Weilrod, befindet sich dieses gepflegte Familiendomizil. Ob Sie allein oder mit zwei Parteien hier leben möchten - beides ist möglich!
Gute Einkaufsmöglichkeiten sind in wenigen Autominuten in Weilrod oder in Usingen erreichbar. Die Bushaltestelle für den Schulbus und für die Busverbindung nach Grävenwiesbach und die weiteren Weilroder Ortsteile befindet sich nur circa 2-3 Gehminuten entfernt.
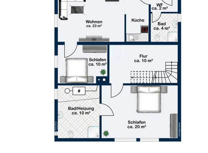
Das Haus ist ein wahres Platzwunder und bietet auf einer Wohnfläche von ca. 151 m², zuzüglich des Untergeschosses mit weiteren 78 m² Fläche, insgesamt 7 Zimmer und insgesamt 4 Bäder. Die Nutzungsmöglichkeiten sind vielfältig - zum komfortablen Wohnen mit mehreren Kindern, als Mehrgenerationenhaus oder zum Wohnen und Arbeiten unter einem Dach. Selbstbezug und Teilvermietung bieten Ihnen zudem attraktive Finanzierungsmöglichkeiten!
Das Erdgeschoss und Teile des Untergeschosses werden derzeit von den Eigentümern selbst bewohnt. Das Dachgeschoss ist als 2-Zimmerwohnung und im Untergeschoss 2 Räume innerhalb der Familie vermietet
Die Hauptwohnung im Erdgeschoss bietet eine geräumige Küche mit angrenzendem Hauswirtschaftsraum und einer zusätzlichen Speisekammer. Der großzügige Wohn-Essbereich wird durch den Zugang auf die überdachte Terrasse und die Sonnenterrasse zum Garten hin erweitert. Im Wohnzimmer sorgt zudem ein großer, heller Kachelofen für behagliche Wärme.
Das Haus wurde seit der Erbauung durch die Eigentümer fortlaufend gehegt und gepflegt und präsentiert sich insgesamt in einem absolut gepflegten Zustand. Zuletzt wurden 2022 die Terrasse am Wohnzimmer sowie das Tor zur Straße erneuert . Der Kachelofen im Wohnzimmer erhielt einen neuen Einsatz und ist somit unbedenklich weiterhin nutzbar. Die Küche wurde erst 2016 komplett erneuert.
Die Raumaufteilung ist optimal gestaltet und ermöglicht eine flexible Nutzung der vorhandenen Zimmer. Der Balkon im Dachgeschoss, die überdachte Terrasse im Erdgeschoss sowie der großzügige Garten bieten tolle Möglichkeiten, Zeit im Freien zu genießen.
Der schön angelegte Garten mit diversen Obstbäumen, großer Rasenfläche und einem Gartenhäuschen bietet Hobbygärtnern viele weitere Gestaltungsmöglichkeiten. Auch das bei Kinder allseits beliebte Trampolin oder ein Sandkasten finden hier reichlich Platz. Außerdem ist im Garten ein Wohnmobilstellplatz integriert.
Darüber hinaus gibt es auf der anderen Seite des Hauses einen ca. 50m² großen Carport mit integriertem Geräteschuppen sowie drei weitere Stellplätze.
Die Immobilie ist ab 01.11.2025 verfügbar.
Verpassen Sie nicht die Chance, in diesem besonders bei Familien beliebten Ortsteil sesshaft zu werden und vereinbaren Sie noch heute einen Besichtigungstermin mit uns.
Viel Platz für die Familie, idyllisch im Grünen mit moderner EBK, großem Carport und schönem Garten
61276 Weilrod
Die vollständige Adresse der Immobilie erhalten Sie vom Anbieter.
Auf Karte anzeigen
Die vollständige Adresse der Immobilie erhalten Sie vom Anbieter.
Finanzierungszertifikat
In nur zwei Minuten zu Ihrem persönlichen Finanzierungszertifkat.
Infos
| Haustyp | Einfamilienhaus |
|---|---|
| Etagenzahl | 3 |
| Wohnfläche ca. | 151 m2 |
| Nutzfläche | 78 m2 |
| Grundstücksfläche | 639 m2 |
| Bezugsfrei ab | 12.12.2025 |
| Zimmer | 7 |
| Schlafzimmer | 5 |
| Badezimmer | 4 |
| Garage/Stellplatz | Carport |
| Anzahl Garage/Stellplatz | 3 |
Kosten
| Kaufpreis |
399.000 € |
|---|---|
| Provision |
Käuferprovision beträgt 3,57 % (inkl. MwSt.) des beurkundeten Kaufpreises |
Finanzierungsrechner:
Kaufpreis:
600.000 €
Eigenkapital:
600.000 €
Monatliche Rate
0 €
Effektiver Jahreszins
0 %
Sollzinsbindung
10 Jahre
Bausubstanz & Energieausweis
| Baujahr | 1993 |
|---|---|
| Letzte Sanierung | 2022 |
| Bauphase | Haus fertig gestellt |
| Objektzustand | Gepflegt |
| Qualität der Austattung | Normal |
| Heizungsart | Zentralheizung |
| Wesentliche Energieträger | Öl |
| Energieausweis | liegt vor |
| Energieausweistyp | Verbrauchsausweis |
| Energieverbrauchskennwert | 109,4 kWh/(m²*a) |
| Energieeffizienzklasse | D |
109,4
kWh/(m²*a)
Energieeffizienzklasse D
- A+
- A
- B
- C
- D
- E
- F
- G
- H
- 0
- 25
- 50
- 75
- 100
- 125
- 150
- 175
- 200
- 225
- >250
Beschreibung des Objekts
Ausstattung
- Fertigbauweise
- aktuell 3 Wohneinheiten mit 7 Zimmern, davon 5 Schlafzimmer und 4 Bäder
- moderne Einbauküche im Erdgeschoss mit separatem Hauswirtschaftsraum plus Speisekammer
- überwiegend heller Fliesenboden im Erdgeschoss
- Kachelofen im Erdgeschoss mit neuem Einsatz
- 2-fach verglaste Holzfenster
- manuelle Rollläden
- überdachte Terrasse am Wohnzimmer im Erdgeschoss
- Balkon im Dachgeschoss
- schön angelegter, gepflegter Garten
- Gartenhäuschen
- 2000 l Zisterne zur Gartenbewässerung
- ca. 50m² großer Carport mit Gerätehaus für 3 Fahrzeuge (auch für Wohnwagen geeignet) und drei weitere Stellplätze
- Wohnmobilstellplatz im Garten
Lage
Die Gemeinde Weilrod befindet sich im Weiltal inmitten des Naturparks Hochtaunus.
Eine idyllischere und erholsamere Lage findet sich kaum und die Freitzeitmöglichkeiten sind überaus vielfältig.
Beliebt bei Radfahrern, Joggern und Spaziergängern ist das malerische Weiltal, welches auch durch den Weiltal-Marathon in der Laufszene bestens bekannt ist.
Tennis- und Reitplätze, der Golfplatz, zahlreiche Wander-, Rad- und Reitwege und ein reges Vereinsleben kennzeichnen den Standort Weilrod.
Kindergärten und verschiedene schulische Angebote befinden sich vor Ort. Darüber hinaus gibt es sehr gute Busverbindungen in Richtung Schmitten, Königstein und Usingen.
Im nur wenige Kilometer entfernten Usingen befinden sich ein Hallenbad sowie der Hattsteinweiher, im Sommer neben dem Waldschwimmbad in Neu-Anspach eine beliebte Anlaufstelle - für Familien mit Kindern ebenso wie für ambitionierte Schwimmer. Voraussichtlich wird die S-Bahn-Verbindung im Jahre 2020 Richtung Usingen ausgebaut.
Ebenfalls nur ca. 10-15km entfernt befinden sich die Städte Bad Camberg, Idstein, Weilburg und Limburg, die nicht nur mit zahlreichen Sehenswürdigkeiten aufwarten, sondern auch mit einer vielfältigen Infrastruktur und Freizeitmöglichkeiten begeistern. Zahlreiche Weilroder Kinder besuchen bspw. die dortigen Schulen oder auch das akademische Weiterbildungsangebot der Hochschule Fresenius in Idstein.
Sonstige Angaben
GELDWÄSCHE: Als Immobilienmaklerunternehmen ist die von Poll Immobilien GmbH nach § 2 Abs. 1 Nr. 14 und § 11 Abs. 1, 2 Geldwäschegesetz (GwG) dazu verpflichtet, bei der Begründung einer Geschäftsbeziehung die Identität des Vertragspartners festzustellen und zu überprüfen, bzw. sobald ein ernsthaftes Interesse an der Durchführung des Immobilienkaufvertrages besteht. Hierzu ist es erforderlich, dass wir nach § 11 Abs. 4 GwG die relevanten Daten Ihres Personalausweises festhalten (wenn Sie als natürliche Person handeln) – beispielsweise mittels einer Kopie. Bei einer juristischen Person benötigen wir eine Kopie des Handelsregisterauszugs, aus welchem der wirtschaftlich Berechtigte hervorgeht. Das Geldwäschegesetz sieht vor, dass der Makler die Kopien bzw. Unterlagen fünf Jahre aufbewahren muss. Als unser Vertragspartner haben Sie auch eine Mitwirkungspflicht nach § 11 Abs. 6 GwG.
HAFTUNG: Wir weisen darauf hin, dass die von uns weitergegebenen Objektinformationen, Unterlagen, Pläne etc. vom Verkäufer bzw. Vermieter stammen. Eine Haftung für die Richtigkeit oder Vollständigkeit der Angaben übernehmen wir daher nicht. Es obliegt daher unseren Kunden, die darin enthaltenen Objektinformationen und Angaben auf ihre Richtigkeit hin zu überprüfen. Alle Immobilienangebote sind freibleibend und vorbehaltlich Irrtümer, Zwischenverkauf- und Vermietung oder sonstiger Zwischenverwertung.
UNSER SERVICE FÜR SIE ALS EIGENTÜMER:
Planen Sie den Verkauf oder die Vermietung Ihrer Immobilie, so ist es für Sie wichtig, deren Marktwert zu kennen. Lassen Sie kostenfrei und unverbindlich den aktuellen Wert Ihrer Immobilie professionell durch einen unserer Immobilienspezialisten einschätzen. Unser bundesweites und internationales Netzwerk ermöglicht es uns, Verkäufer bzw. Vermieter und Interessenten bestmöglich zusammenzuführen.
Grundriss
Erdgeschoss
>
>
Dachgeschoss
>
>
Untergeschoss
>
>
Adresse
61276 Weilrod
Interessante Orte
Preis- und Lageinformationen
Preistrend für Bestandsimmobilien in Weilrod