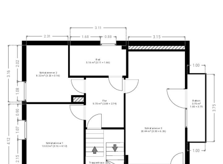
Wir freuen uns, Ihnen ein charmantes Einfamilienhaus aus dem Jahr 1953 präsentieren zu dürfen, das durch seine attraktive Architektur und sein großzügiges Raumangebot besticht. Mit ca. 123 m² Wohnfläche, verteilt auf zwei Stockwerke, bietet es ausreichend Platz für die ganze Familie. Der durchdachte Grundriss umfasst fünf Zimmer, ein Tageslichtbad sowie eine separate Gästetoilette.
Der gepflegte Garten mit altem Baumbestand bietet Privatsphäre und angenehme Kühle in den Sommermonaten. Der geschützte Außenbereich mit Freisitz, Balkon und Terrasse lädt zum Entspannen im Freien ein. Ein zusätzlich beheizter Wintergarten erweitert den Wohnbereich und schafft einen gemütlichen Rückzugsort für jede Jahreszeit.
Im Kellergeschoss erwartet Sie eine hochwertig eingebaute Sauna der Marke KLAFS – perfekt für entspannende Stunden zuhause. Des Weiteren besteht hier die Möglichkeit, eine eigenständige Wohneinheit zu realisieren, was sich ideal für Mehrgenerationenwohnen oder als separater Gästebereich eignet. Beachten Sie bitte, dass hierfür gegebenenfalls eine Nutzungsänderung erforderlich ist.
Das Haus ist derzeit mit einer älteren Elektroheizung ausgestattet, deren Austausch zur Steigerung der Energieeffizienz empfehlenswert ist. Umfangreiche Sanierungsmaßnahmen, insbesondere zur Verbesserung des energetischen Standards und zur geschmacklichen Modernisierung, sind einzuplanen. Dies bietet Ihnen die einzigartige Gelegenheit, das Objekt ganz nach Ihren persönlichen Vorstellungen und Bedürfnissen zu gestalten.
Dieses Einfamilienhaus stellt eine einmalige Gelegenheit für alle dar, die ein zu Hause mit Charakter und großem Entwicklungspotenzial in begehrter Lage suchen. Mit kreativen Ideen und der passenden Modernisierung können Sie hier Ihr persönliches Traumhaus verwirklichen.
Attraktives Einfamilienhaus mit Erweiterungspotenzial - Bereit für Ihren Neuanfang!
64297 Darmstadt
Die vollständige Adresse der Immobilie erhalten Sie vom Anbieter.
Auf Karte anzeigen
Die vollständige Adresse der Immobilie erhalten Sie vom Anbieter.
Finanzierungszertifikat
In nur zwei Minuten zu Ihrem persönlichen Finanzierungszertifkat.
Infos
| Haustyp | Einfamilienhaus |
|---|---|
| Etagenzahl | 3 |
| Wohnfläche ca. | 122 m2 |
| Nutzfläche | 80 m2 |
| Grundstücksfläche | 453 m2 |
| Zimmer | 5 |
| Badezimmer | 2 |
| Anzahl Garage/Stellplatz | 3 |
Kosten
| Kaufpreis |
725.900 € |
|---|---|
| Provision |
3.57 % inkl. gesetzl. MwSt. |
Finanzierungsrechner:
Kaufpreis:
600.000 €
Eigenkapital:
600.000 €
Monatliche Rate
0 €
Effektiver Jahreszins
0 %
Sollzinsbindung
10 Jahre
Bausubstanz & Energieausweis
| Baujahr | 1953 |
|---|---|
| Objektzustand | Renovierungsbedürftig |
| Wesentliche Energieträger | Strom |
| Energieausweis | liegt vor |
| Energieausweistyp | Bedarfsausweis |
| Energieverbrauchskennwert | 292,2 kWh/(m²*a) |
| Energieeffizienzklasse | H |
292,2
kWh/(m²*a)
Energieeffizienzklasse H
- A+
- A
- B
- C
- D
- E
- F
- G
- H
- 0
- 25
- 50
- 75
- 100
- 125
- 150
- 175
- 200
- 225
- >250
Beschreibung des Objekts
Ausstattung
Getrennte Sanitäranlagen
Vollunterkellert
Lage
Das Haus befindet sich in einer etablierten und ruhigen Wohngegend in Darmstadt, einer der begehrtesten Lagen dieser lebendigen Stadt. Es liegt auch in unmittelbarer Nähe zur Bergstraße, einem beliebten Naherholungsgebiet mit vielfältigen Freizeitmöglichkeiten. Einkaufsmöglichkeiten, Schulen und öffentliche Verkehrsmittel sind ebenfalls gut erreichbar.
Die Umgebung ist ideal für alle, die sowohl die Nähe zur Natur als auch die Vorteile einer gut entwickelten Stadt schätzen. Darmstadt ist bekannt für seine erstklassige Infrastruktur, die eine nahtlose Anbindung nach Frankfurt am Main und dem internationalen Flughafen Frankfurt am Main ermöglicht, der nur etwa 30 Autominuten entfernt ist. Die hervorragende Anbindung an das öffentliche Verkehrsnetz sorgt dafür, dass Sie das Stadtzentrum von Darmstadt in nur rund 15 Minuten erreichen können.
Die Region bietet eine Vielzahl von Freizeitaktivitäten, darunter Spaziergänge im nahegelegenen Odenwald oder kulturelle Entdeckungen auf der Mathildenhöhe, einem UNESCO-Weltkulturerbe, das nur 20 Autominuten entfernt liegt. Die Gegend besticht durch ihre besondere Mischung aus historischen Sehenswürdigkeiten und modernen Annehmlichkeiten, die ein vielfältiges Freizeitangebot gewährleisten.
Ein besonderes Merkmal der Lage ist die Nähe zu renommierten Bildungs- und Forschungseinrichtungen, was sie zu einem bevorzugten Standort für Akademiker und Fachleute macht. Die lebendige Kulturszene und die zahlreichen Einkaufsmöglichkeiten tragen zur Attraktivität der Umgebung bei.
Sonstige Angaben
Der Makler-Vertrag mit uns und/oder unserem Beauftragten kommt durch die Beauftragung der Maklertätigkeit in Textform (z.B. E-Mail mit Bestätigung der gewollten Inanspruchnahme) zustande. Die Höhe der Courtage richtet sich nach den ab dem 23.12.2020 in Kraft getretenen gesetzlichen Regelungen zur Teilung der Maklercourtage. Hiernach wird die Courtage regelmäßig für beide Parteien (Eigentümer und Käufer) jeweils in Höhe von 3 % zuzüglich Umsatzsteuer in jeweils geltender Höhe, derzeit also insgesamt 3,57 % des Kaufpreises einschließlich Umsatzsteuer bei notariellem Vertragsabschluss verdient und fällig. Die Höhe der Bruttocourtage unterliegt einer Anpassung bei Steuersatzänderung, Grunderwerbssteuer, Notar- und Gerichtskosten trägt der Käufer.
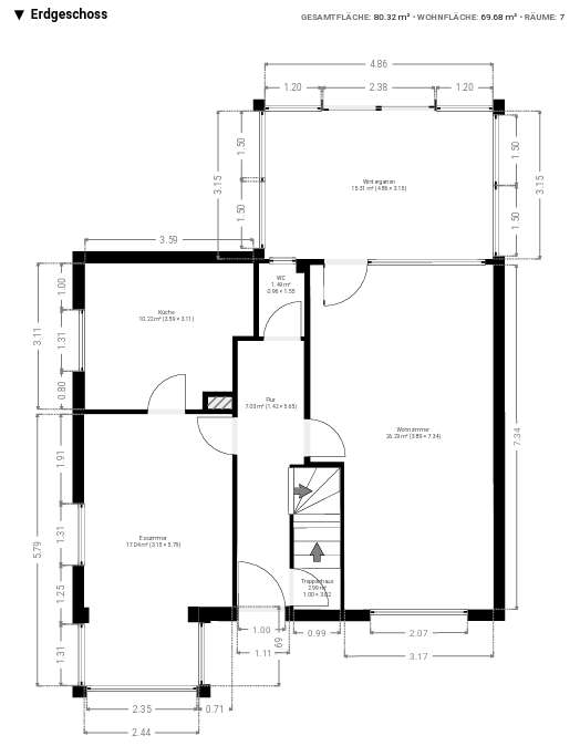
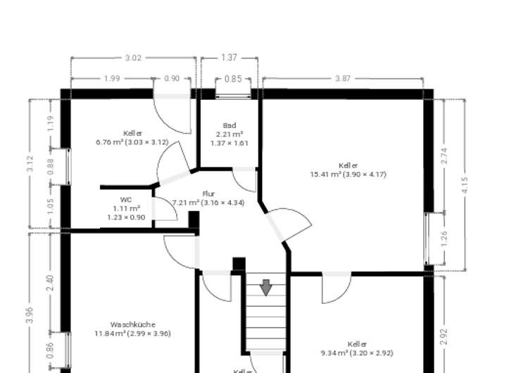
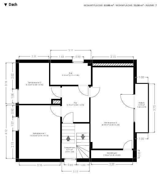
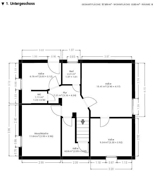
Grundriss
Erdgeschoss
>
>
1. OG
>
>
Keller
>
>
Adresse
64297 Darmstadt
Interessante Orte
Preis- und Lageinformationen
Preistrend für Bestandsimmobilien in Eberstadt