Dieses traumhafte Reihenmittelhaus steht auf einem Grundstück mit 225 Quadratmetern.
Hinzu kommen 48,6 Quadratmeter Anteil an gemeinschaftlichen Garagenflächen und
Zuwegen. Eine geräumige Garage gehört mit zu dem Haus, wobei Sie auch zu jeder Tageszeit direkt vor der Häuserzeile sehr gute Parkmöglichkeiten finden, u.a. auch 5 Elektro-Parkplätze.
Vor dem Hausliegt ein ca. 25 Quadratmeter großer Vorgarten, der mit neuem
Rollrasen und Bambus einladend gestaltet wurde.
Im Inneren des Hauses öffnet sich der Eingangsbereich in eine große offene Küche mit Essplatz. Ein modernes, neues Gäste-Bad mit weißen, zeitlosen Fliesen und Hänge-WC befindet sich ebenfalls im vorderen Teil des Hauses. Die offene Küche samt Essplatz geht nahtlos in das lichtdurchflutete Wohnzimmer mit großen Glasfronten über.
Von hier betreten Sie die neue, einladende WPC-Terrasse mit Blick in den hübsch gestalteten Garten mit Südausrichtung. Neue Sichtschutzwände und eine Hecke schaffen Privatsphäre. Auch im hinteren Garten wurde kürzlich neuer Rollrasen verlegt und ein Steingarten liebevoll angelegt.
Das Obergeschoss bietet Ihnen ein großes Vollbad mit freistehender Badewanne, Walk-In-Dusche, hochwertigen Fliesen, Doppelwaschplatz, Designer-LED-Spiegel und hochwertigen Armaturen von Grohe. 3 weitere Zimmer, die als Schlaf-, Gäste-, Kinderzimmer oder als Home Office genutzt werden können, befinden sich ebenfalls auf der oberen Etage. Das große Schlafzimmer besitzt zusätzlich noch einen nach Süden ausgerichteten Balkon. Der Dachboden bietet noch eine beachtliche Ausbaureserve mit ca. 30 Quadratmetern Wohnfläche und ist vor kurzem nachträglich gedämmt worden.
Alle Fensterrahmen bestehen aus weißem Kunststoff, die Fenster sind isolierverglast. Einige Fenster und die Haustür wurden gerade erneuert.
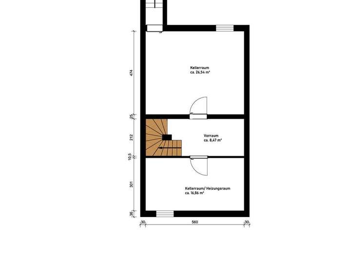
Das Haus ist außerdem voll unterkellert, so dass Sie genügend zusätzlichen Platz für Ihre
Haushaltsgeräte, Werkzeuge und andere Gegenstände haben. Vielleicht möchten Sie sich hier sogar einen Spa-Bereich mit Sauna oder einen Partykeller einrichten? Außerdem befinden sich im Keller der Fernwärmeanschluss inkl. Warmwasserspeicher und der neue Sicherungskasten. Eine Außentreppe führt von hier zum Garten.
Die Wände wurden glatt verputzt und erstrahlen in modernem Weiß mit passenden Schaltern, Steckdosen und neuen Designtüren.
Der neue Boden besteht aus einem pflegeleichten und freundlichen Vinyl in gekalkter
Weißeichenoptik und wurde (bis auf das Vollbad) durchgehend im ganzen Haus verlegt.
Das Gäste-Bad im Erdgeschoss und das Vollbad im Obergeschoss wurden kürzlich
umfangreich saniert, hier wurden auch sämtliche Leitungen erneuert.
Die Nachbarschaft zeichnet sich durch ein äußerst freundliches Miteinander aus.
Kurzum: Dieses schöne Reihenhaus ist etwas ganz Besonderes und wartet mit seinen vielen
Highlights darauf, Ihr neues Zuhause zu werden!
Modernes Reihenhaus, bezugsfertig und provisionsfrei
22359 Hamburg
Die vollständige Adresse der Immobilie erhalten Sie vom Anbieter.
Auf Karte anzeigen
Die vollständige Adresse der Immobilie erhalten Sie vom Anbieter.
Finanzierungszertifikat
In nur zwei Minuten zu Ihrem persönlichen Finanzierungszertifkat.
Infos
| Haustyp | Reihenmittelhaus |
|---|---|
| Etagenzahl | 2 |
| Wohnfläche ca. | 116 m2 |
| Nutzfläche | 80 m2 |
| Grundstücksfläche | 224 m2 |
| Bezugsfrei ab | sofort |
| Zimmer | 4 |
| Schlafzimmer | 3 |
| Badezimmer | 2 |
| Garage/Stellplatz | Garage |
| Anzahl Garage/Stellplatz | 1 |
Kosten
| Kaufpreis |
549.990 € |
|---|---|
| Provision | Nein |
Finanzierungsrechner:
Kaufpreis:
600.000 €
Eigenkapital:
600.000 €
Monatliche Rate
0 €
Effektiver Jahreszins
0 %
Sollzinsbindung
10 Jahre
Bausubstanz & Energieausweis
| Baujahr | 1968 |
|---|---|
| Bauphase | Haus fertig gestellt |
| Objektzustand | Gepflegt |
| Heizungsart | Zentralheizung |
| Wesentliche Energieträger | Fernwärme |
| Energieausweis | liegt vor |
| Energieausweistyp | Bedarfsausweis |
| Energieverbrauchskennwert | 105,4 kWh/(m²*a) |
| Energieeffizienzklasse | D |
105,4
kWh/(m²*a)
Energieeffizienzklasse D
- A+
- A
- B
- C
- D
- E
- F
- G
- H
- 0
- 25
- 50
- 75
- 100
- 125
- 150
- 175
- 200
- 225
- >250
Beschreibung des Objekts
Ausstattung
Balkon, Terrasse, Garten, Keller, Vollbad, Gäste-WC, Fliesen
Bemerkungen:
- Garage
- weitere Parkmöglichkeiten an der Straße
- Fernwärme
- isolierverglaste, weiße Kunstststofffenster, teilweise neu
- neue Eingangstür
- voll unterkellert
- offene Küche mit Essbereich
- zusätzliche Ausbaureserve im Dachgeschoss
- neue Schalter und Steckdosen
- neuer Sicherungskasten inkl. E-Check
- neuer Vinylboden in modernem Eichen-Design
- frisch sanierte Bäder
- 3 Schlafzimmer/Homeoffice/Gästezimmer
- neue WPC-Terrasse mit Sichtschutz und Südausrichtung
- Bad mit freistehender Badewanne und Walk-In-Dusche
- Grohe-Armaturen
- toller Garten mit neuem Rollrasen und Steinbeet
Lage
Das Reihenmittelhaus in der begehrter Lage in Bergstedt bietet eine ideale
Kombination aus ruhiger Wohngegend und guter Anbindung an die umliegenden
Einrichtungen. Die Straße besticht durch ihre ruhige Atmosphäre und die
angenehme Nachbarschaft, die ein harmonisches Zusammenleben garantiert.
In unmittelbarer Nähe befinden sich zahlreiche Einkaufsmöglichkeiten für den täglichen
Bedarf, wie Supermärkte, Bäckereien und Apotheken. Auch Schulen, Kindergärten,
Spielplätze und ein italienisches Restaurant sind fußläufig erreichbar, was die Lage besonders attraktiv für Familien macht.
Die Anbindung an den öffentlichen Nahverkehr ist ausgezeichnet, mit Bushaltestellen in der
Nähe, die eine bequeme Verbindung in die umliegenden Stadtteile und ins Zentrum Hamburgs ermöglichen. Zudem ist die Autobahn A7 in wenigen Fahrminuten erreichbar, was für Pendler eine schnelle Anbindung an die Arbeitsstätten in der Region bietet.
Die Umgebung ist geprägt von viel Grün und Natur, ideal für Spaziergänge und Fahrradtouren. Der nahegelegene Wald lädt zu erholsamen Ausflügen ein und bietet eine idyllische Kulisse für Freizeitaktivitäten im Freien.
Insgesamt bietet das Reihenmittelhaus in Bergstedt eine erstklassige Wohnlage, die sowohl die Vorzüge einer ruhigen Wohngegend als auch die Annehmlichkeiten einer guten Infrastruktur vereint. Ein ideales Zuhause für Familien, die eine harmonische
Umgebung mit einer optimalen Anbindung an alle wichtigen Einrichtungen suchen.
Infrastruktur (im Umkreis von 5 km):
Apotheke, Lebensmittel-Discount, Allgemeinmediziner, Kindergarten, Grundschule, Hauptschule, Realschule, Gymnasium, Gesamtschule, Öffentliche Verkehrsmittel
Sonstige Angaben
Heizungsart: Zentralheizung
Energieträger: Fernwärme
Makleranfragen nicht erwünscht. Nach § 7 UWG sind unaufgeforderte Kontaktaufnahmen durch Makler ohne ausdrückliche Einwilligung des Empfängers verboten!
ohne-makler (OM) ist weder Anbieter noch Vermittler der Immobilie. OM betreibt eine Plattform für Immobilieneigentümer, die unter anderem die gleichzeitige Veröffentlichung einzelner Inserate auf mehreren Immobilienportalen ermöglicht. Die Inhalte dieser Inserate werden ausschließlich von Dritten verantwortet. Für die Richtigkeit, Vollständigkeit oder Rechtmäßigkeit der Angaben übernimmt OM keine Haftung. Hinweise auf mögliche Rechtsverstöße können jederzeit gemeldet werden und werden nach Prüfung umgehend bearbeitet.
Grundriss
Erdgeschoss
>
>
Obergeschoss
>
>
Keller
>
>
Adresse
22359 Hamburg
Interessante Orte
Preis- und Lageinformationen
Preistrend für Bestandsimmobilien in Bergstedt