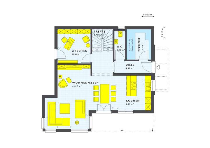
Dieses projektiertes Fertighaus von LivingHaus vereint modernes Design mit individuellen Wünschen und Vorstellungen. Mit einer Gesamtwohnfläche von 145,38 m² und einer Grundstücksgröße von 501 m² bietet dir diese Stadtvilla alles, was du für dein zukünftiges Zuhause benötigst. Das coole Walmdach sorgt nicht nur für eine ansprechende Optik, sondern ermöglicht dir auch die volle Deckenhöhe im Obergeschoss. Hier hast du Zugang zu einem großzügigen Balkon, der als Überdachung für den Freisitz fungiert. Der Balkon ist harmonisch in den Übereck-Erker integriert, wodurch der Wohn- und Essbereich im Erdgeschoss auf über 43 Quadratmeter vergrößert wird und viel Raum für gemeinsame Stunden mit Freunden und Familie bietet.
LivingHaus bietet dir zahlreiche zusätzliche Leistungen, die dein Zuhause noch individueller gestalten. Die hochwertige Traumküche wird genau auf deinen Grundriss angepasst und kommt mit modernster Technik, cleveren Stauraumlösungen und einem ästhetischen Design. Du erhältst sie rechtzeitig zum Einzug, sodass du sofort loslegen kannst. Mit der Living Haus Bau-App behältst du den Überblick über dein Bauprojekt - alle Informationen sind digital und schnell abrufbar, was dir ein stressfreies Bauen ermöglicht.
Das I-KON Konzept verbindet nachhaltiges Bauen mit modernster Technik. Dein neues Zuhause wird energieeffizient und umweltfreundlich sein, denn es benötigt nur 55% der Energie eines Standardhauses. Mit dem Zuhause-Darlehen profitierst du von exklusiven finanziellen Vorteilen und kannst dein Traumhaus zu einem besonders günstigen Zinssatz finanzieren. Das Zuhause-Paket sorgt dafür, dass du eine hochwertige Grundausstattung erhältst - von modernen Böden über edle Türen bis hin zu stilvollen Sanitäranlagen, alles optimal aufeinander abgestimmt.
Wenn du selbst Hand anlegen möchtest, ist das DIY-Ausbau-Coaching genau das Richtige für dich. In nur drei Tagen zeigen dir Experten, wie du den Innenausbau selbst meisterst und dir somit eine individuelle Note verleihen kannst. LivingHaus bietet dir ein durchdachtes Gesamtkonzept, das von der Finanzierung über die Planung bis hin zur individuellen Ausgestaltung reicht - damit dein Traumhaus so sicher und passend wie möglich verwirklicht wird.
Dein individuelles Traumhaus in Salzgitter - Wohnen, wie du es willst!
38239 Salzgitter
Die vollständige Adresse der Immobilie erhalten Sie vom Anbieter.
Auf Karte anzeigen
Die vollständige Adresse der Immobilie erhalten Sie vom Anbieter.
Finanzierungszertifikat
In nur zwei Minuten zu Ihrem persönlichen Finanzierungszertifkat.
Infos
| Haustyp | Einfamilienhaus |
|---|---|
| Etagenzahl | 2 |
| Wohnfläche ca. | 145 m2 |
| Nutzfläche | 145,38 m2 |
| Grundstücksfläche | 501 m2 |
| Zimmer | 6 |
| Schlafzimmer | 3 |
| Badezimmer | 1 |
Kosten
| Kaufpreis |
534.233 € |
|---|
Finanzierungsrechner:
Kaufpreis:
600.000 €
Eigenkapital:
600.000 €
Monatliche Rate
0 €
Effektiver Jahreszins
0 %
Sollzinsbindung
10 Jahre
Bausubstanz & Energieausweis
| Baujahr | 2026 |
|---|---|
| Bauphase | Haus in Planung (projektiert) |
| Qualität der Austattung | Gehoben |
| Energieausweis | liegt vor |
| Energieausweistyp | Bedarfsausweis |
| Energieverbrauchskennwert | 18,0 kWh/(m²*a) |
| Energieeffizienzklasse | A+ |
18,0
kWh/(m²*a)
Energieeffizienzklasse A+
- A+
- A
- B
- C
- D
- E
- F
- G
- H
- 0
- 25
- 50
- 75
- 100
- 125
- 150
- 175
- 200
- 225
- >250
Beschreibung des Objekts
Ausstattung
Dein Fertighaus von LivingHaus bietet dir eine hochwertige Grundausstattung, die keine Wünsche offenlässt. Du erhältst moderne Böden, edle Türen und stilvolle Sanitäranlagen, die perfekt aufeinander abgestimmt sind. Die Küche ist individuell geplant und wird ohne unverbindliche Gutscheine geliefert, sodass du gleich starten kannst. Der hohe Vorfertigungsgrad mit geschlossenen Wänden sorgt für einen effizienten Bauprozess, und die komplette Bauantragsplanung wird durch erfahrene Architekten übernommen. Du profitierst von einem umfangreichen Leistungspaket, das auch Bauversicherungen und eine 18-monatige Festpreisgarantie umfasst. Darüber hinaus sind die Innenausbaumaterialien für das gesamte Erdgeschoss bereits enthalten, inklusive Fliesen und bodengleichen Duschen mit Echtglasabtrennung. Die moderne Wärmepumpentechnik sorgt für ein angenehmes Raumklima, während aluminiumgeschäumte Rollläden für optimalen Hitzeschutz sorgen. Dein zukünftiges Zuhause wird also genau so, wie du es willst.
Lage
Salzgitter bietet dir eine hervorragende Infrastruktur mit zahlreichen Bildungseinrichtungen, Gesundheitsangeboten und Einkaufsmöglichkeiten. In unmittelbarer Nähe findest du mehrere Schulen, darunter die Grundschule Salzgitter-Bad, die eine sehr gute Bewertung für ihre engagierten Lehrer und das Lernumfeld hat. Für die Kleinsten gibt es mehrere Kindergärten, die alle gut erreichbar sind und eine familiäre Atmosphäre bieten.
Supermärkte wie REWE und EDEKA sind in wenigen Minuten erreichbar und decken deinen täglichen Einkaufsbedarf. Zudem gibt es in der Umgebung zahlreiche Ärzte und Gesundheitszentren, die eine umfassende medizinische Versorgung garantieren.
Freizeitangebote sind in Salzgitter ebenfalls reichlich vorhanden. Vom Salzgittersee, ideal für Wassersport und Erholung, bis hin zu zahlreichen Wander- und Radwegen in der Umgebung - hier findest du zahlreiche Möglichkeiten, die Natur zu genießen. Die Anbindung an den öffentlichen Nahverkehr und die Autobahn ist ebenfalls hervorragend, sodass Pendler schnell in die benachbarten Städte wie Braunschweig oder Hannover gelangen können. Salzgitter ist somit der optimale Wohnort für Familien, Naturliebhaber und Berufstätige gleichermaßen.
Grundriss
Gestaltungsbeispiel EG
>
>
Gestaltungsbeispiel DG
>
>
Adresse
38239 Salzgitter
Interessante Orte
Preis- und Lageinformationen
Preistrend für Bestandsimmobilien in Thiede