YOUR FAMILY'S FOREVER HOME.
Ein Zuhause ist nicht nur ein Ort – es ist ein Gefühl.
Es bedeutet Freiheit, Sicherheit und eine Zukunft, die du selbst gestalten kannst.
Mit White&Black bekommst du mehr als ein Haus – du bekommst einen Lebensraum, der mit dir wächst.
Stell dir vor:
Ein lichtdurchflutetes Wohnzimmer, in dem du mit Freunden und Familie lachst.
Ein Garten, der Platz für Sommerabende, Kinderlachen oder deine Ruheoase bietet.
Ein Zuhause, das dir gehört – ohne steigende Mieten, ohne Unsicherheiten.
BUILD YOUR WAY. OWN YOUR SPACE.
Von der individuellen Finanzierungsberatung über die Grundstückssuche bis zur perfekten Hauslösung – wir stehen an deiner Seite.
FEELS LIKE HOME.
Dein Stil, dein Design, dein Zuhause.
MORE HOME. LESS WORRY.
Klare Prozesse, stressfreie Planung, einfaches Bauen.
SIMPLE IS THE NEW LUXURY.
Durchdachte Architektur, hochwertige Ausstattung, smarte Technologien.
Es gibt nie den perfekten Moment – aber den richtigen Schritt. Dein Zuhause ist näher, als du denkst.
START YOUR HOME JOURNEY TODAY.
Mach aus deiner Miete Wohneigentum!
39638 Gardelegen
Die vollständige Adresse der Immobilie erhalten Sie vom Anbieter.
Auf Karte anzeigen
Die vollständige Adresse der Immobilie erhalten Sie vom Anbieter.
Finanzierungszertifikat
In nur zwei Minuten zu Ihrem persönlichen Finanzierungszertifkat.
Infos
| Haustyp | Einfamilienhaus |
|---|---|
| Wohnfläche ca. | 119 m2 |
| Nutzfläche | 0 m2 |
| Grundstücksfläche | 800 m2 |
| Zimmer | 4 |
| Schlafzimmer | 3 |
| Badezimmer | 1 |
| Anzahl Garage/Stellplatz | 0 |
Kosten
| Kaufpreis |
366.280 € |
|---|---|
| Provision | Nein |
Finanzierungsrechner:
Kaufpreis:
600.000 €
Eigenkapital:
600.000 €
Monatliche Rate
0 €
Effektiver Jahreszins
0 %
Sollzinsbindung
10 Jahre
Bausubstanz & Energieausweis
| Baujahr | 2026 |
|---|---|
| Bauphase | Haus in Planung (projektiert) |
| Qualität der Austattung | Gehoben |
| Heizungsart | Wärmepumpe |
Beschreibung des Objekts
Ausstattung
THINK BLACK – All in.
- Schlüsselfertig & sofort bezugsbereit – ohne zusätzlichen Aufwand
- Kompletter Innenausbau – keine Handwerkersuche, kein Planungsstress
- Durchdachte Raumaufteilung – moderne Wohnkonzepte für jede Lebensphase
- Innovative Haustechnik – zukunftssicheres Wohnen mit höchster Effizienz
- Maximaler Komfort – alles fertig, alles drin
Für alle, die einfach einziehen und losleben wollen!
Lage
Das Grundstück befindet sich in einer ruhigen und dennoch gut angebundenen Lage in der Stadt Gardelegen, im westlichen Teil des Landkreises Altmarkkreis Salzwedel, mit direkter Erreichbarkeit zu diversen Einrichtungen und Angeboten des täglichen Lebens.
Einkaufsmöglichkeiten sind im näheren Umkreis zahlreich vorhanden. In Gardelegen finden sich Supermärkte, Discounter und Einzelhändler, die den täglichen Bedarf abdecken. Zudem bietet das Stadtzentrum verschiedene Fachgeschäfte und Wochenmärkte, auf denen frische Lebensmittel und regionale Produkte angeboten werden. Für größere Einkäufe oder spezialisierte Produkte ist die nahegelegene Stadt Salzwedel ein attraktives Ziel, das in kurzer Fahrzeit erreichbar ist.
Der öffentliche Personennahverkehr (ÖPNV) sorgt für eine ausgezeichnete Anbindung an Gardelegen und die umliegenden Orte. In der Nähe des Grundstücks befinden sich Haltestellen für Busse, die regelmäßig Verbindungen zu weiteren Städten und Gemeinden in der Region bieten. Auch die Bahnhöfe in Gardelegen und Salzwedel sind innerhalb kurzer Zeit erreichbar und ermöglichen eine bequeme Anreise zu größeren Städten, wie Magdeburg oder Wolfsburg. Die Anbindung an das überregionale Verkehrsnetz ist somit hervorragend.
Für Familien und Bildungsinteressierte ist die Lage ebenfalls vorteilhaft. In Gardelegen befinden sich mehrere Schulen, darunter Grundschulen sowie eine weiterführende Schule. Diese sind sowohl zu Fuß als auch mit dem Fahrrad oder dem ÖPNV gut erreichbar. Darüber hinaus gibt es in der Umgebung diverse Kindergärten und Einrichtungen der frühkindlichen Betreuung, die eine familienfreundliche Struktur der Region unterstreichen.
Freizeitmöglichkeiten sind in der Umgebung ebenfalls vielfältig. Die naturnahe Lage ermöglicht zahlreiche Outdoor-Aktivitäten, sei es beim Wandern, Radfahren oder Angeln in den benachbarten Gewässern. In Gardelegen selbst und den umliegenden Dörfern finden regelmäßig kulturelle Veranstaltungen und Feste statt. Zudem sorgen Sportvereine für Angebote im Bereich Fußball, Handball und weiteren Freizeitaktivitäten. In Salzwedel und Gardelegen selbst gibt es Schwimmbäder, Sporthallen und Einrichtungen für Fitness und Wellness, sodass eine breite Palette an Freizeitgestaltungen zur Verfügung steht.
Die Nähe zu größeren Städten wie Magdeburg (ca. 100 km), Wolfsburg (ca. 80 km) und Braunschweig (ca. 120 km) eröffnet zudem vielfältige Möglichkeiten für berufliche und private Aktivitäten. Diese Städte bieten eine Vielzahl an Arbeitsplätzen, Bildungseinrichtungen sowie kulturellen und gastronomischen Angeboten. Besonders die Anbindung an die Autobahnen A2 und A39 sorgt für eine schnelle Erreichbarkeit dieser urbanen Zentren.
Zusammenfassend lässt sich sagen, dass das Grundstück in Gardelegen aufgrund seiner Lage in einer ruhigen, aber gut vernetzten Region hervorragende Möglichkeiten für Wohnen und Leben in einer ländlichen Umgebung mit urbaner Anbindung bietet.
Sonstige Angaben
Das Haus ist projektiert inkl. Grundstück. Das Grundstück wird in Kommission angeboten bzw. direkt von Dritten verkauft. Daher kann der genannte Preis aufgrund aktueller Marktsituationen schwanken.
Die Bauabwicklung kann kurzfristig nach Grundstückserwerb begonnen werden. Bilder zeigen möglicherweise Sonderausstattungen, die auf Wunsch gegen Aufspreis zusätzlich angeboten werden können.
Erhalte in deinem persönlichen Beratungsgespräch kostenlos alle wichtigen Informationen zu diesem Projekt, insbesondere: Lage und Bebauungsmöglichkeiten des Baugrundstücks, Baukosten-Kalkulation, Finanzierungs- u. Förderungsmöglichkeiten sowie detaillierte Architektur- uund Grundrissplanung.
Wir freuen uns darauf, dich beraten zu dürfen!
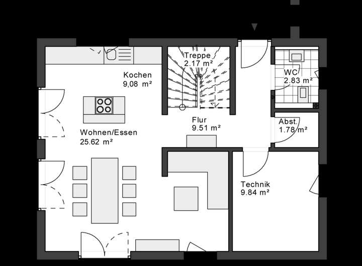
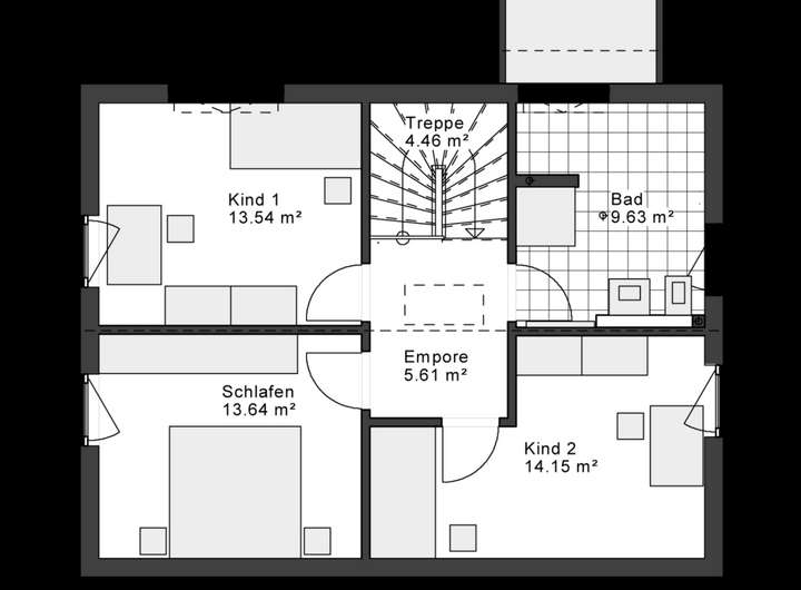
Grundriss
Grundriss EG
>
>
Grundriss OG
>
>
Adresse
39638 Gardelegen
Interessante Orte
Preis- und Lageinformationen
Preistrend für Bestandsimmobilien in Gardelegen